
随着闪存价格的走低,固态硬盘已经大面积普及,不仅成为电脑内部的基本配置,用于随身携带的移动固态硬盘价格也越来越便宜,西部数据旗下品牌闪迪就在近期为消费者带来了一款定位主流的移动存储产品——闪迪移动固态硬盘(E30)。


这款移动固态硬盘的体型非常小巧,“三围”分别只有96.9mm(长)×46.9mm(宽)×9.91mm(厚),从外观上看,它的体型比手机要小很多,从照片上的对比可以看到,其长度与宽度只与折叠后的数据线相当。同时,闪迪还在固态硬盘上设计了一个坚固的橡胶挂环,用户可以将硬盘系在腰带扣或书包上,便于户外摄影摄像用户、商务办公用户的携带。

▲闪迪移动固态硬盘(E30)附送一根Type-A数据线
考虑到户外使用的复杂环境,闪迪还为这款移动固态硬盘采用了坚固的外壳以及抗震跌落设计。根据闪迪官方指标,闪迪移动固态硬盘(E30)可经受两米的跌落考验、1500G的冲击。
技术规格方面,闪迪移动固态硬盘(E30)主要有两个指标,一是最大读取速度可达520MB/s,二是SSD采用USB 3.2 Gen 2接口设计。当然,我们知道USB 3.2 Gen 2的理论传输带宽为10Gbps,约合1250MB/s,因此移动固态硬盘(E30)的实际指标应更靠近USB 3.2 Gen 1,即理论传输带宽为625MB/s。我们从其技术指标可以推断出它内置的应该是SATA SSD,再通过SATA转USB桥接芯片来连接电脑,毕竟其最大传输速度在600MB/s以内,符合主流产品的定位。
移动固态硬盘(E30)目前为用户提供了480GB、1TB、2TB三种可选容量,闪迪还提供了时间为3年的免费质保服务。值得一提的是,目前对移动存储产品,闪迪并未标识TBW可写寿命指标(注:目前西部数据旗下大部分移动存储产品其实都只按照保修时间提供质保),也就意味着用户在这三年内如遇到产品质量问题,都可以要求闪迪提供售后服务,不需要再考虑写入量是否超过质保要求的问题。
接下来我们在基于酷睿i9-10900K、GeForce RTX 3060 Ti、16GB DDR4 4000内存的平台上对移动固态硬盘(E30)1TB产品进行了性能测试。首先从CrystalDiskMark 8.0测试来看,移动固态硬盘(E30)的表现的确不错,最高连续读取速度超过了其官方宣传指标,达到565.17MB/s,同时在AS SSD BENCHMARK测试中,它的连续读取速度也达到了520MB/s以上,有所不足的是,它的随机读写性能在SSD中稍低。

▲闪迪移动固态硬盘(E30)在基准测试中,连续读写速度有不错的表现。
接下来我们通过实际的文件传输应用,测试了它真实的文件传输性能。在传输31.5GB视频文件时,移动固态硬盘(E30)的读取性能仍然可以保持较高的传输性能,平均传输速度达到422.2MB/s。而在写入这31.5GB文件时,由于该SSD的SLC Cache不是太大,因此在缓存耗尽后,会直接写入在闪存上出现掉速,当然其平均写入速度也能保持在200MB/s以上。

值得一提的是,这款产品在实际应用中也有较好的表现,如在PCMark 8存储性能测试中,它的得分达到4500分以上,在完成After Effects图形视频软件读写任务的耗时为75.8s,而主流内置式SATA SSD在完成这一任务的耗时为72.6s左右;在完成Photoshop高负载读写任务时,移动固态硬盘(E30)的耗时为378s,主流内置式SATA SSD的耗时在369s左右,差距并不算大。因此这也意味着户外用户在进行图片、视频处理时,如空间不够,不仅可以把素材存放在移动SSD里,甚至也可以将软件安装在SSD中。

▲PCMark 8存储性能测试细节
此外在游戏应用中,移动固态硬盘(E30)载入《赛博朋克2077》关卡的时间为9.8s,启动《奇点灰烬:扩展版》的时间为25.27s,时间都不算长,相比机械硬盘还是有明显优势。

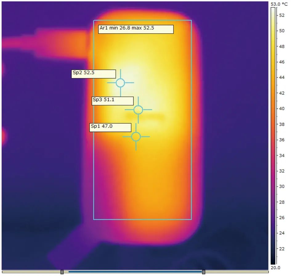
▲在连续写入全盘1TB数据后,固态硬盘外壳的最高温度在52.5℃左右。
最后,我们还通过HD Tune Pro测试了移动固态硬盘(E30)的全盘读写性能、发热情况。从读取测试来看,它的表现很稳健,全盘平均读取速度达到488.1MB/s;写入性能上,该产品的SLC Cache的确不大,开始全盘写入后,写入速度会迅速跌落,全盘平均写入速度保持在200MB/s以上。温度方面,从FLIR热成像仪观察来看,即便是连续写入全盘1TB数据,固态硬盘外壳的最高温度在52.5℃左右,有温热的触感,但不烫手。
此外需要提及的是,虽然移动固态硬盘(E30)定位主流,但闪迪也附送了SanDisk SecureAccess安全软件,该软件可以通过个人密码设置,对用户需要保护的文件进行128bit AES加密,即使固态硬盘丢失、被盗,存在里面的文件也不会被他人查看。

▲闪迪移动固态硬盘(E30)也提供了SecureAccess安全软件,可对文件进行128bit AES加密。
如果你需要一款能在户外使用、性价比较高的移动存储产品,那么这款闪迪移动固态硬盘(E30)就是一个值得考虑的选择。
基本参数
可选容量:480GB、1TB、2TB
防冲击:1500G
防震:5gRMS,10-2000Hz
接口:USB 3.2 Gen 2
尺寸:96.9mm(长)×46.9mm(宽)×9.91mm(厚)
工作温度:0℃~45℃
存储温度:-20℃~85℃
质保时间:3年
参考价格:849元(1TB)
优点:外形小巧、拥有防震、防冲击设计
缺点:随机性能表现一般