


日本株式会社日建设计成立于1900年,是日本最大的建筑设计事务所之一,目前在中国设有上海、北京、大连、成都共4处办公室,在中国的第一个复合开发项目为中国国际贸易中心(1990)。

日建设计是从事建筑设计监理、城市规划以及相关调查策划咨询业务的专业集团公司。作为全球知名品牌,日建精神" EXPERIENCE, INTEGRATED"不仅代表了日建集团的志向与信念,也表达了他们"以人为本,开拓全球社会环境设计前沿"的决心。

随着建筑城市社会环境问题的日益复杂,日建设计旨在将人的愿望和经验,与全面的专业知识以及广泛的经验相结合,为世界各地的人们带来更加丰富多彩的体验。

日建设计早在1978年就开始参与中国的设计项目,宝钢园区的规划是我们在中国改革开放后的第一个作品。20世纪80年代,我们完成了北京的国贸一期,这也可以说是中国最早的一个地铁城市综合体。

伴随着20世纪90年代上海的城市发展,我们在陆家嘴CBD先后设计了7、8栋超高层办公塔楼。后来随着21世纪市场需求的变化,我们的项目从单体塔楼向城市综合体转型,今天终于在TOD领域中取得了市场领先的地位。

在中国的一系列大型复杂的综合体项目的成功,使我们找到了目前发展的方向,也是我们决定面向全球进一步业务扩张的重要因素。
01、
株式会社日建设计
日本|二世古柏悦Chapel|婚礼教堂|2019|

作为滑雪胜地而闻名于世的二世古(Niseko,亦称新雪谷),亦是一个在春夏秋三季可以尽情享受远足和漂流等各种户外活动的度假胜地。

2020年1月,于二世古花园地区开业的二世古柏悦酒店,是一家可以全年享受当地自然风光的豪华度假村。主要用于婚礼仪式的Chapel(婚礼教堂)建筑需要具备外国游客所期待的日本元素,以及一年四季都能吸引客人的设计。

Chapel栋位于宴会厅区域的一角,远离酒店客房栋。为了营造出婚礼教堂的特殊氛围,该栋作为独立建筑,通过外部回廊与隔着中庭相望的L型宴会厅栋相连。

Chapel似浮现于水面的能剧(日本传统戏剧)舞台一般引人注目,中庭碧水如镜,由宴会厅栋一侧眺望教堂,倒映在水面的大屋顶的漂浮感格外突出。水池(Water feature)分为两个不同水深的区域,通过调整水池的范围,使中庭具有空间上的灵活可变性,可用作室外活动空间,亦或是音乐会的观众席空间。

日本建筑风格的大屋顶采用了20m的大跨悬挑,旨在营造外部空间贯通屋顶下的空间感。通过连接建筑前方的中庭水池和深处的原生白桦林,营造出与度假村相得益彰,融入自然的户外婚礼的独特氛围。

除婚礼外,该建筑还计划用于举办私人宴会、站立式餐会、研讨会、会议和音乐会等,因此建筑内部装修采用了温暖、优雅、宁静且折衷的设计。其结构可应对所设想的各种场景,像传统的日本建筑一样,通过隔扇实现空间定制。

三扇宽达10m的日式推拉门可以完全打开,内部和室外的舞台能够作为一个整体加以利用。门斗(挡风间)设计得比通常的要大,通过两扇宽4m的推拉门进行分隔,形成灵活可变的空间,既可作为举办活动时的门厅使用,还可用于扩大空间。

我们在分解成“八”字的人字形屋顶的缝隙处设置高侧窗,在山墙处安装花窗玻璃,如此一来,照射进室内的自然光会随着时间的变化改变着内部空间的表情。结构上采用大跨度的大梁架构,两面通过杆件(36φ)相连的斜屋顶固定在两端的钢筋混凝土墙上,长20m、宽12.5m的室内和屋檐下没有任何垂直结构,形成了一个非常开阔的空间。


为了让人们最大限度地享受被自然环抱的空间魅力,我们在设计中尽可能地降低了照明、音响和空调等必要设备的存在感。在连接两面斜屋顶的结构杆件中加入会议用照明灯具以确保照度,并在屋顶的缝隙内安装了夜间间接照明和照亮红毯(Virgin Road)的点光源照明。扬声器安装在仪式台两侧与墙砖同色的纱纶网(Jersey cross)后面,考虑到寒冷地区的热负荷,空调系统采用了地板下空调风室、窗侧格栅出风口和百叶窗匣的隐藏式回风结构。


项目名称:Niseko柏悦Chaple(婚礼教堂)
发包方:Harmony特定目的会社
项目位置:北海道虻田郡倶知安町岩尾別
占地面积:283.50185㎡
建筑面积:226.50185㎡
主体结构:钢结构、钢筋混凝土结构
建筑层数:地上1层
建筑高度:8.8m
02、
株式会社日建设计
京都丽思卡尔顿酒店,日本
由日建设计主持设计的京都丽思卡尔顿酒店位于鸭川之畔、可俯瞰东山三十六峰,周围环境十分优美。

01、在文化传承之地建设酒店
京都丽思卡尔顿酒店所在的鸭川沿岸一带,1000多年前,这里曾是平安时代的贵族们为赏东山之月而修建别墅的所在。该地块还是孕育了日本独特文化艺术的桃山时代(16世纪后期)富商角仓家修建据点,以及日本结束了闭关锁国,迈向现代化进程的明治时代男爵藤田传三郎的宅邸所在地。他们在各自的时代都曾扮演文化生产者的角色。这里正是京都最特別的文化传承之地。
▼项目鸭川沿岸的入口广场

业主在得到这块宝地后,相对于由日建设计主持设计,用来接待国宾的京都迎宾馆(2005年开业),迫切希望在这里建一座「民间迎宾馆」。另一方面,全球豪华酒店品牌之一的丽思卡尔顿也希望在日本这个独特的地方建一座独一无二的酒店。「日本还有这样一个富有魅力的地方、日本之美并不是华而不实的东西、美的精髓在京都」。想要游客感受到以上思绪,是所有酒店参建人员的共同想法。在设计阶段,我们凝练出“根植于此地多年”的传承当地文化的设计理念。
▼檐端的些微翘曲,赋予整体张力

02、展现清新空气的优美环境
我们相关设计人员想要传达出的一种日本之美,在于干净简洁端庄的日本清新的环境感。这是一种与其他度假区截然不同的氛围。这种清新的环境,在跨越建筑内外的边界处尤其突显。比如,建筑外缘栏杆的细度、混凝土制成的纤薄型檐下吊顶、屋檐边缘的些许翘曲等在维持细微张力的同时构成的一些细节。优秀的日本员工倾尽毕生技能,建造出这座日本独有的建筑。
▼屋顶的情趣是日本建筑不可或缺的元素

▼入口处 – 外缘栏杆的细度凸显出建筑内外的边界

03、传承此地独有的文化
如前所述,这里曾是平安贵族们赏东山之月的地方,而东山风景也正是京都文化的心脏所在。所以我们希望客人也能感受到此地独有的传统文化,能欣赏到随时间流逝而变化万千的东山风景。为此,我们将面对鸭川长达130m的地上建筑部分全部做成客房,并尽最大可能设置整片玻璃的大窗。通过将所有的宴会厅、餐厅和泳池等设施设在地下,得以在严格的高度限制内完成了整座建筑。该建筑通过将整体控制在一个较低的高度,从而实现了京都式的人性化尺度。即便在同一个日本,却是东京或大阪所没有的尺度感,这也是京都风格的体现。
▼入口大堂

▼大堂处的挑空

▼餐厅

04、代表京都和日本的酒店
建设这座酒店的并不是什么著名工匠,只是一些平时建造普通建筑的工匠和技术人员。这些人聚集在一起,在“传达日本之美”的默契下,打造了不同寻常的特別空间和氛围、和足以被称为「民间迎宾馆」的酒店。从设计到施工的各个阶段,参与工作的所有的工作人员的艰辛恐怕一言难尽。当然,其完成的快乐也难以用语言形容。
▼由室内看庭院

▼由阳台看周围环境

▼屋顶细部 – 不仅仅是装饰,支撑屋顶的薄薄的混凝土就势形成檐口顶棚

▼夜景


▼地下一层平面图

▼二层平面图

▼剖面图

项目名称:丽思卡尔顿京都所在地:京都府京都市主要用途:酒店业主:积水住宅株式会社设计·监理:日建设计、Ilya Corporation室内设计:Remedios Studio,Design Studio Spin庭园:野村勘治用地面积:5,937.28 m²建筑面积:24,682.89 m²层数:地下3层、地上4层高度:17.43 m建筑结构:RC
03、
株式会社日建设计
日光丽思卡尔顿酒店,日本
日光丽思卡尔顿酒店坐落于日本屈指可数的风景名胜地、被认定为国立公园的 “奥日光”。作为一家豪华酒店拥有94间宽敞舒适的客房、2个餐厅和温泉SPA。
▼项目概览


15000多年前火山活动造就的动态地形和丰富的自然景观是奥日光的一大特色。酒店面朝幽静辽阔、水天一色的中禅寺湖,西北两面分别伫立着白根山和高达2500m的男体山。
▼场地环境

▼酒店面朝中禅寺湖

奥日光有着大自然的鬼斧神工,自古以来便是山岳信仰的圣地,这里不仅有推动日本走向现代化的明治时期(1868年~)之后诞生的外宾专用酒店,亦是曾作为外交舞台的外国人别墅区。如何将蕴藏于此的历史记忆与时光流逝升华到空间设计,是本次的建筑主题。
▼客房露台立面

首先,我们面向三大美景(中禅寺湖、白根山、男体山)配置了三栋客房楼,尝试将建筑融合于周围环境之中。男体山作为山岳信仰的圣地,长久以来是只允许僧侣进入的修行之地。地块内几棵近20m高的日本冷杉,可以说是该处历史的见证者。
▼三栋客房楼融合于周围环境之中

建筑通过采用直线构成的设计,烘托出如今仍能感受到的神秘幽寒的土地氛围,并与充分利用了高大冷杉树的风景相映成趣。特别是在以三棵树形优美的地标级大树为中心轴的基础上,面向湖和山布置三栋建筑以避免砍伐树木,同时设计了似悬于湖面的餐厅楼与湖畔凉亭。

▼餐厅平台和内部


此外,更配合建筑群设计了多个不拘一格的特色庭院。景观设计作为体现日光地区多样的自然缩影,充分利用了这片土地上的树木、灌木、石材和地形。
▼庭院景观


附近有着日本屈指可数的铜矿,铜矿开采曾盛极一时。受此启发,我们采用铜板作为外部装饰材料,力求打造出绝无仅有的独特建筑。朝暮与四季并往间,风光物采几多变换,我们更期待其岁月增辉的未来。
▼建筑立面


走进室内,充溢着木质温暖的室内空间在欢迎宾客的入住。作为曾深受大使们喜爱的大使馆别墅区,室内设计充分体现了这片土地的独特魅力。外部设有各色庭院,对面是美丽的湖泊、山脉及河流风光,人们可随处感受到与盎然外界空间的联系。所有客房均配置了具有足够进深的露台,客人不仅能切身感受丰富的自然,还可从客房内肆意欣赏由雪松建材露台框绘出的如画风景,在静谧的环境中尽享恬淡美好时光。
▼酒店公区

▼休息区

▼客房内部

▼泳池

▼酒店夜景

▼场地平面图

▼场地剖面图

▼一层平面图

▼剖面图

项目名称:日光丽思卡尔顿酒店项目位置:栃木县日光市主要用途:酒店项目业主:东武铁道株式会社方案设计・施工图设计・监理:日建设计室内设计:LAYAN DESIGN、日建空间设计、STRICKLAND用地面积:18,982.97㎡建筑面积:14,215.03㎡建筑层数:地上5层最高高度:19.013m
04、
株式会社日建设计
中禅寺湖别墅,日本
01、概述
该项目位于日光中禅寺湖,很早以前湖边便林立着成排的外国大使馆别墅。这个项目是在拆除湖畔5层楼的企业疗养院后,新建一个低矮的亲水型别墅。
▼建筑外观

▼屋顶视角

两层建筑建在约7m宽的呈斜坡状的地块上,由于地势自道路向湖泊逐渐降低,因而采用了由高到低的动线设计,即由道路进入以迎宾餐厅为中心的二楼空间后,再沿着螺旋状空间徐徐下到配有卧室的一楼。拆除原有建筑和湖泊间的驳岸,将湖水引入位于一楼中心的中庭,横跨顶部的20m长大跨度屋盖框出一片如诗如画的湖景。
▼螺旋状空间动线

▼大跨度屋盖框出一片如诗如画的湖景


02、最大程度确保湖景的结构设计
二楼的门廊一直延伸到用餐空间,其上部架设有悬挑式的钢结构屋顶。充分考虑到1.2m的最大积雪量,通过在预先设计好倾角的钢梁前端以3m间隔配置撑杆(SUS13φ)持续增加张力,可缓解积雪产生的荷载并防止屋顶变形。由于这些撑杆的反作用力来自SRC反梁(为使一楼的屋檐看起来平整而设),所以同时具有减小大跨度平板变形的作用。
▼剖面图

由于解决了积雪导致屋顶变形的问题,从而能够采用无边框大幅玻璃以最大限度确保湖景视野。玻璃宽达10m,这已经是蜿蜒曲折的日光红叶坂(又称伊吕波山道)可以运输的最大尺寸。
▼二楼门廊

▼用餐空间


▼无边框大幅玻璃最大限度确保湖景视野

03、利用BIM模型进行的序列研究和热环境模拟
在设计过程中,我们将场地周围地形和山脉的数据输入到BIM模型中,以便找到可确保最佳景观视野的最优建筑布局。此外,还利用BIM模型按照沿建筑动线的视觉序列,对各房间的比例平衡及开口的形状与高度进行研究。进入施工图设计阶段后,更是具体到各处的细节和装饰材料乃至家具配置。
BIM模型还广泛应用于减轻积雪导致屋顶变形的结构验证、利用螺旋状连续空间的自然通风以及一楼酒吧壁炉的热环境模拟。
▼BIM模型

▼酒吧和休息室

▼屋顶平台


04、凉爽怡人气候中,畅享水畔生活的避暑别墅
静*坐静**落于湖畔的建筑,其入口到卧室被设计成螺旋状绵延的空间。得益于螺旋状的造型,可畅享随步履轻移而变化万千的水景。与此同时,随着距水面物理距离的不断变化,滨水带来的各种环境要素在螺旋状空间中接连不断地呈现,湖面上泛起的潺潺涟漪、反射的粼粼波光、湿度和热辐射等等。由于整个空间高低不一且形状较长,壁炉带来的热度和干燥空气并不能创造出均匀的室内环境,各个区域想必会呈现出不同的热环境。如此一来,各种环境重叠往复,形成既连续又多样化的空间。
▼滨水环境在螺旋状空间中接连不断地呈现


▼休闲室楼梯

▼客房浴室

▼随步履轻移而变化万千的水景

我们希望到访游客漫步在水滨带来的各种空间环境中时,能够找到适合自己的场所尽享其乐。即使在夏夜室内仍需部分暖气供应的自然环境中,部分到访者会停留于壁炉旁享受抚慰人心的温暖。另一方面,想必也有人会偏爱这里的宁静和凉意。入秋至开春,气候变得寒冷,周围的自然环境不再适合接待宾客,该建筑会“进入冬眠”闭门谢客,而绝不浪费能源破坏自然环境。我们设计的就是这种极具「款待之道」的度假别墅。
▼从中庭望向湖景

▼别墅夜景

▼场地平面图

▼一层和二层平面图

项目业主 个人设计团队 山梨知彦,恩田聪,青柳创项目位置 栃木县日光市用地面积 1,325.16 m²占地面积 640.50㎡建筑面积 751.92 m²最高高度 7.33 m建筑结构 钢筋混凝土结构
05、
株式会社日建设计
熊本车站大楼,日本
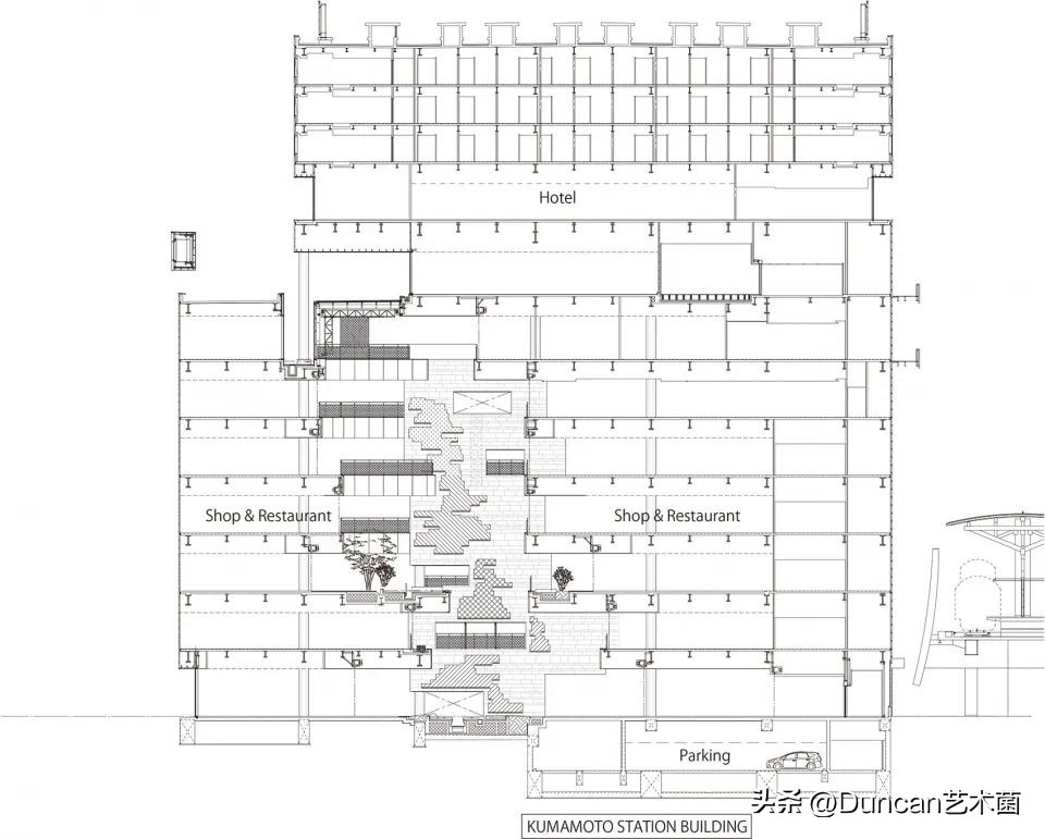
在九州最具代表性的铁路客运站JR九州熊本站前,“熊本车站大楼”竣工后,商业设施“熊本阿姆广场(AMU PLAZA KUMAMOTO)”和酒店“THE BLOSSOM KUMAMOTO”于2021年4月23日开业。完美体现了熊本特色的设计使其成为熊本震灾后复兴的象征,为正在进行新城市建设的熊本站周边带来新的繁华与商机。
▼建筑外观

近来,在距离熊本市闹市区约2.5公里的熊本站前,包括办公和住宅在内的开发项目正在有条不紊的进行。JR九州致力打造以“宜居、宜业、宜游”的车站为中心的城市建设,熊本车站大楼正是其核心设施。大楼1~8层是由零售商店、餐饮、多厅影院(7层)和婚礼会场(8层)构成的“熊本阿姆广场”,9~12层是酒店“THE BLOSSOM KUMAMOTO”。
▼剖透视

走出熊本站白川出口,首先映入眼帘的是郁郁葱葱的站前广场,这是由熊本市主导,以“公园式车站、车站式公园”为理念打造的广场。移目右侧,可以透过熊本车站大楼的外装幕墙看到内部立体庭园的水景与绿植。在大楼的外观设计上,通过动态错开各种用途的大型体量和面向广场的屋顶,不仅再现了熊本城城郭上层层叠叠的石垣,还考虑到了与熊本站站厅等周边设施的协调性。
▼从车站看向建筑

▼建筑前的广场

大幅伸向广场的大屋顶在遮挡熊本强烈日照的同时欢迎着游客的到来,其上部是15m×30m的空中广场“屋顶露台”。为了能够让孩子们畅享欢乐时光,这里精心设置了游乐设施以及缓解暑热的喷雾设备和帐篷,是一个可举办各种活动的趣味空间。此外,供奉战国时期武将加藤清正的加藤神社还在此设立了分祀,这里亦是当地居民寄托情怀的所在。
▼伸向广场的大屋顶

▼透过玻璃立面看向内部景观

▼屋顶上的儿童游乐场

▼广场上的观景平台

从地面一直挑空到7层的室内立体庭园“冒险森林”,水景相映,绿意焕然,可以说是该设施的吸睛之笔。挑空空间借由阶梯形状将自然光引入室内,并通过利用模拟优化生长环境,将数十种日本野生植物配置在这里。
▼七层通高的森林


▼树木围合的走廊


▼植物包围的平台



▼从上层俯瞰中庭


水流源于9层酒店中庭处再现阿苏水源的水盘。从3层倾泻至地面层的瀑布高宽均为10m,瀑布以南小国的“锅之瀑布”为设计原型,也可从内部观赏。流经整个建筑的水与纵向层叠的绿植,在重现阿苏至有明海之间“熊本的壮观自然”的同时,形成了一个与站前广场连为一体的立体化公共空间。亲生命性设计(Biophilic Design)理论认为,将大自然融入空间设计中,可以提高在此空间工作生活的人的生产力与幸福感。我们希望到访者可以在这里放松身心、愉快购物,并想要再次来到这里。
▼瀑布

▼瀑布与绿化相得映彰


▼瀑布近景

▼通透的玻璃立面在室内外之间形成对望

▼水景


▼一层空间与景观

▼仰望瀑布和中庭

▼各个楼层与水景互动

▼与科技结合的石块成为儿童的游乐场所

无论在国内外,都很少有这种大型室内立体庭园的案例,为此我们特意召集了日建设计包括声环境、光环境、景观、温度和湿度环境、数字模拟在内的各类专家,组建了专业团队,通过采用具有熊本特色的设计和多种工程技术实现了水绿相依的立体庭园。我们希望这里所产生的活力能够蔓延到站前广场,并在焕然一新的熊本站前周边地区创造出一派繁华盛景。
▼从室内看向庭院中的教堂

▼从楼梯进入连接庭院

▼水景休息平台



▼教堂室内空间

▼酒店大堂

▼玻璃围合的套房

▼屋顶景观露台


▼夜景鸟瞰

▼广场夜景


▼夜晚的庭院和露台


▼夜晚水景

▼总平面图和流线分析

▼一层平面图

▼九层平面图

▼剖面图

项目业主:九州旅客铁道株式会社、JR熊本City项目位置:日本熊本县熊本市主要用途:商业零售、餐饮、酒店、电影院、婚礼会场、停车场竣工日期:2021年用地面积:19,945.97㎡占地面积:13,869.09㎡建筑面积:86,292.46㎡建筑结构:S.RC建筑层数:地下1层、地上12层建筑高度:55.561m照明设计:SIRIUS LIGHTING OFFICE Inc标识设计:日本设计中心色部设计研究所项目撮影:SS、Harunori Noda (Gankohsha)
#头条创作挑战赛##在头条看见彼此##从今天起记录我的2023##冬日生活打卡季##头号有新人##悦生活 越无忧##大有学问##好内容我来评##我要上头条##挑战30天在头条写日记##金三银四买房季##新豪华 新智享##所见所得,都很科学##我的宝藏作者##健康2023##头号解忧馆##头号作者口碑计划##翻开我的生活日记##我的生活也是头条##我的青春宣言##我的京彩时刻##头号周刊##委员建议消除对罪犯子女考公限制##张兰说20年前医院就建议她换膝盖#@头条小组@头条号@粉丝助手