
这是一对小夫妻的家,男主人是80后,女主人是90后,两个人工作后打拼8年,终于在海淀拥有了自己的70平小窝。
房子来之不易,两个人对未来的家充满向往,他们希望住在一个温暖又浪漫的家里,家里一定要通透简洁,能带给人足够的舒适感。
而这一切,他们如今都实现了。

案例来源|北京东作西成设计室

房屋信息
户型:二室
使用面积:71.7平米
房屋位置:北京 海淀
装修花费:30万元
原始户型略有一些缺陷。
1、玄关空间小,遮挡多,空间利用不足。
2、厨房位置距离客餐厅太远,动线不合理。

▲原户型图
结合房主夫妻的需求,设计师决定优化格局、采光及通风,然后在主动线上设置 “景观轴” ,整体设计要考虑未来家庭人口结构的变化 。
风格以现代简约、简法、盐系、自然浪漫为主,色调以高级灰、自然白、黄铜金为主,要注重空间整体的高级感、留白与通透感。

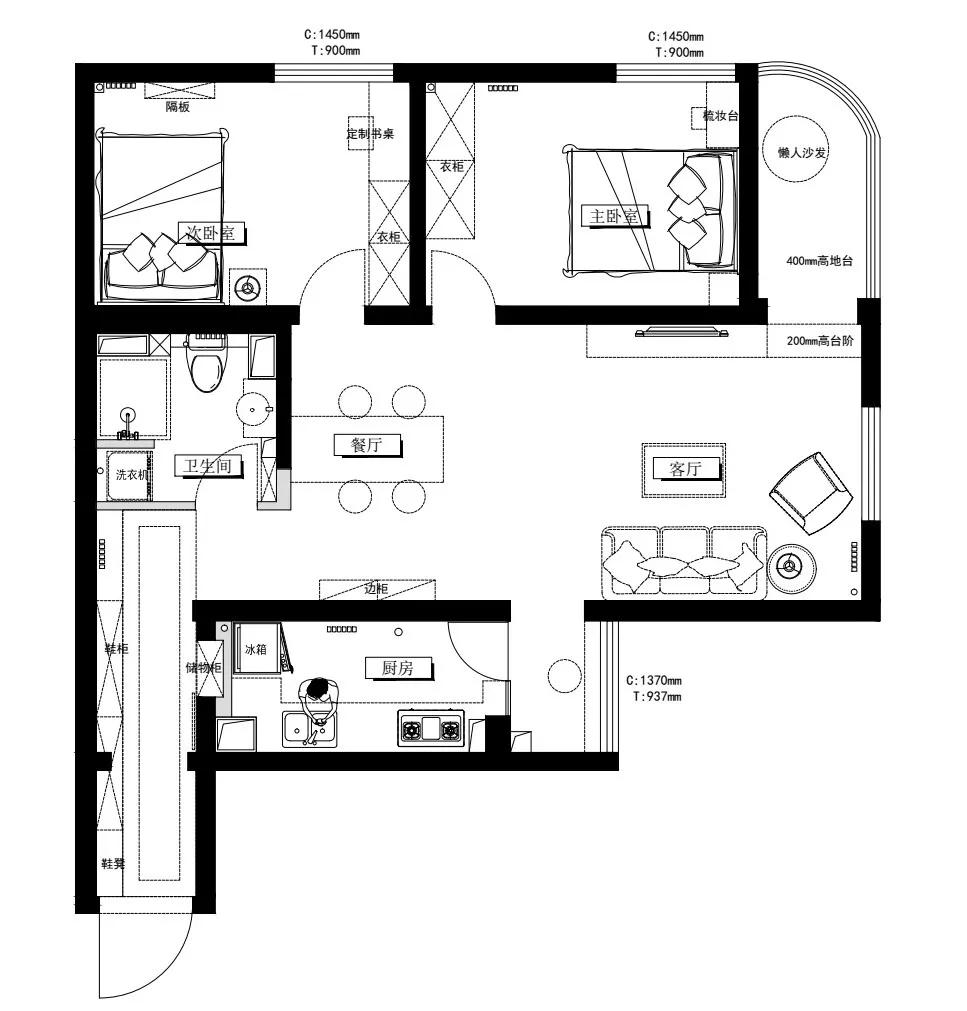
▲改造后平面设计图
改造后的房子变化非常大。
1、拆改墙体(灰色填充部分为新建墙体),增加玄关空间面积,提高空间利用率。
2、设计景观轴连接餐厅、卧室门至阳台。
3、厨房入门改到西面,打通厨房阳台的北侧墙,与客厅贯通。
4、移动墙体,扩大卫生间,设置独立洗衣区域。
5、阳台外扩,做40cm高地台,兼具储物、晾晒、休闲、运动四大功能。

▲改造后立体效果图

玄关
入门玄关处空间做了延伸,做了1.5米的通顶鞋柜,原户型中无法移动的多余墙垛完美隐藏在了柜子中,非常整齐。
吊顶做了 隐藏式灯带 ,增加了回家的氛围感。深蓝色的墙漆非常稳重,和白色柜子形成强烈对比增加了空间的层次感。

原厨房门被封上,只做了一层很薄的墙,然后省出20公分空间的位置给玄关处做了 隐形衣帽架 ,利用洞洞板挂置一些外套、包包等很方便。
玻璃推拉门同时也是一面大镜子,特别实用。


客厅
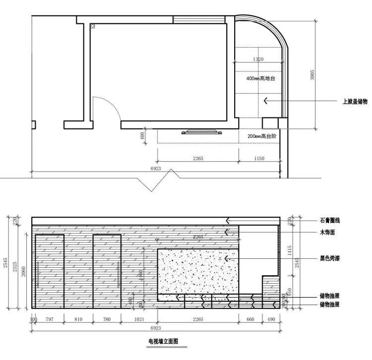
客厅的电视背景墙部分做了很多设计。
1、卧室门和背景墙连为一体,隐身其中。
2、悬浮电视柜延伸到后面的阳台部分。
3、电视墙嵌入了黑色烤漆玻璃。

电视背景墙内嵌入黑色烤漆玻璃 ,是为了让65寸的电视在3.3米的视距空间中不会显得很突兀,而且背景墙也和阳台的垭口有了自然衔接。

70多平的小窝之所以能让客厅显得这么宽敞,除了客餐厅一体化设计,还有就是给整面墙贴了木板,做了饰面墙,将两扇卧室门巧妙地隐藏其中,延伸到了阳台区域,非常整体,形成了独特的 景观轴 。

整个客厅采光充足,简约的吊顶、白色沙发背景墙,都会让空间显得很宽敞。灰色沙发简约舒适,1200mm的进深真的超级奢侈。

▲ 沙发品牌:北欧表情 尺寸:高度350mm,进深1200mm
客厅靠窗的一角的 伊姆斯躺椅 在白色纱帘的映衬中更加具有美感和质感,这件躺椅一直是很多人梦想拥有的东西,它永远保持着上翘15度角的状态,超强的工艺设计可以让平日工作忙碌的小两口,在这得到最好的放松。


阳台
阳台空间应该是很多人想拥有的小窝了,地方很小,但是很温馨,白色的纱帘隐隐透光,又不会伤眼睛,在此小憩或者看书,简直太安逸了。
此处的窗台原来有900mm,因为做了400mm高的地台,窗台高度降到450mm左右,看起来像是落地窗。
除了视觉上的美感,阳台空间也非常实用。比如地台空间可以用来储物,顶部升降衣架可以用来晾晒衣物。


餐厅
餐厅在客厅靠墙一侧,用了 餐椅+长条凳 的搭配,细腿餐桌椅让小户型空间更加通透。
客餐厅一体的吊顶非常简约,一条隐藏灯带,零星射灯,就已经让此处空间光源非常丰富了。


另一侧的照片墙更像是家中的一个展示区,装饰性较强,但抽屉里可以放置一些纸巾等常用物品,做餐边柜使用。

▲ 花瓶:Zarahome

厨房
厨房是黑白灰的配色,高级又质感,暗扣手白色橱柜整体性较强,也避免了一些不必要的磕碰。

吊柜底部操作台为照明盲区,设计师单独添加补充光源,可以让屋主夜晚在厨房活动时视线更加清晰。

客厅连接厨房的这块区域,原本是厨房的阳台空间。因为厨房连接客厅的墙体部分原本是一个施工洞,所以很容易就打通了。
此处空间的窗户可以给厨房和客厅带来充足的自然光线。

因为屋主怕包管占用太多空间,所以下水管道被刷上了金属漆。实木台面和隔板是网购产品,经济实用。
阳台变身小吧台后,这处空间立刻浪漫起来,吃早餐、喝下午茶、看书,远望放空…


卧室
次卧依据墙体宽度做了整体的进深空间,床铺也是靠墙放置,给中间留足了活动空间。

大号床头柜可以收纳更多物品,床铺内侧地板上墙,用铜条收边,给睡在此处的人更多温暖的感觉。

主卧一侧放了床头柜,靠窗的一侧放置梳妆台,可以让女主人尽情享受化妆时间。


卫生间
卫生间扩大了面积后,淋浴区有了充足的施展空间,给宝宝洗澡毫无障碍,洗衣机也拥有了单独的放置空间。
虽然淋浴区没有单独的玻璃门,但在视觉上通过灰白瓷砖的搭配对比还是拥有了明显的区域感。

▲ 防水射灯品牌:geled
看起来简洁的房子包含了很多细节处的实用设计,家就像是我们的避风港,它需要足够的舒适,才能让我们更好的充电,继续出发。
/
编辑:蕗柯
图片来源: 北京东作西成设计室