现在农村的自建小别墅,风格多样,不再局限于以前的中式、和欧式。网上也有越来越多好看的别墅图纸,供大家参考,今天小编也特地在“住宅公园”500套户型库里整理了10套经典户型,赶紧一起看看吧!
户型1:三合院
别墅效果图:淡雅的建筑色彩,简洁的轮廓线条,搭配三合院落形态,传达出一种简美雅致气韵。

平面布局图:
三面房间,独立开门,外面通过外廊连接;
一层,利用三合建筑形态,更好的将区域功能划分出来,正房起居,两侧分别为厨房餐厅烤火房和棋牌区;

二层是完全的起居空间,全部带有独立卫生间,优化起居。

户型2:简欧式
别墅效果图:非常有质感的简欧式农村别墅,坐南朝北、屋顶大平台,完美展现了一种富足闲适的生活状态。

平面布局图:
应业主需求,布局少有联通,彼此独立;二层的楼梯还设计了隔断,细节之处优化私密性。

每层一个卫生间,并且均为干湿分离,合理实用。

三层超大的平顶露台,晾晒休闲,充分满足客户所需。

户型3:欧式
别墅效果图:选用柔美明亮的蓝白配色,契合了农村的蓝天白云美景,视觉上也营造了一种舒适和缓的住宅印象,清爽至极。

平面布局图:
前后门皆设有入户平台,保持了房屋的整体美感,又有利于保持室内的洁净卫生。

二层为居家私人空间,保证休闲养老的私密性。

户型4:托斯卡纳
别墅效果图:高低错落的建筑形态,质朴自然的外墙立面,托斯卡纳风格,总是带给我们一种贴近自然的舒适与美感。

平面布局图:
设柴火厨房,满足乡村生活习惯需要;客厅餐厅楼梯间相连,扩大视觉空间。

楼层之间结构工整对齐,降低施工难度;

健身房与室外露台相连,给健身休闲提供了一个绝佳的场所,丰富了业主一家的起居生活。

户型5:现代风格
别墅效果图:别墅造型非常规整,构造十分立体顺滑,线条感极强,外观配色清爽自然,很有简约之美的风范。

平面布局图:
入户设有茶座,休闲空间非常充足,也方便招待客人;另有健身房,在家也能强身健体,有益于身体健康;预留足够的室外空间,让视野更加开阔。

此户型设有3间大卧室,配置齐全,设有独立卫生间和衣帽间,打造舒适的居家生活,提高生活品质,适合温馨的小家庭。

三层设有会客厅和大阳台,也能做家庭影厅,用途多多,提高空间使用率。

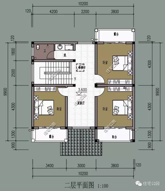
户型6:欧式
别墅效果图:清爽的蓝白配色,带来舒适轻松的视觉美感;坡屋顶+大露台的完美组合,兼具美观性和实用性,南北面多开窗设计,营造房屋的通透美感,也有利于室内采光。

平面布局图:
设有侧门,可直达厨房,方便就餐;主卧配有独立卫生间,可做老人房,方便家中老人的起居生活;客厅与餐厅相连,空间更加通透开阔,视野感更佳。

布局简单实用,卧室旁即是书房,既方便在家学习,也可以在家办公,工作生活两不误。

三层预留了大露台,满足农村日常的晾晒。

户型7:中式
别墅效果图:黛瓦白墙,木质的窗棂围栏立柱,中式元素蕴含其中,并用现代手法演绎出来,设计出更为适合乡村居住需求的别墅。整体设计民族风情浓郁,实用性强,注重居住于自然的结合,檐廊、阳台、露台等让起居生活更丰富。

平面布局图:
一层踏步台阶入户后是一个入门玄关,避免了开门见山;功能区域之间划分明确,独立性强。

结构设计工整,上下水对齐,施工难度低易于施工。

户型8:法式
别墅效果图:法式建筑非常注重自然元素与房子的结合,选取最天然的色彩搭配出质朴纯粹的别墅外观,追求色彩和其中的内在联系,让人感到有很大的活动空间。

平面布局图:
一层堂屋与客厅相连,让室内更加通透,提高空间使用率;多卧室的设计,适合多人口的大家庭居住,同时也能方便招待客人留宿。

茶室、书房、活动室和家庭厅等功能性空间一应俱全,让居家生活更舒适便捷。

户型9:美式
平面布局图:美式别墅以清新馥雅的田园风格著称,注重建筑细节,有古典情怀,外观简洁大方,极有特色。可谓是既美观又简约,非常适合自建。

平面布局图:
卧室自带独立卫生间,居家生活更加便利;卫生间干湿分离,既能保持洁净的环境,又能预防细菌滋生,有利健康。

卧室皆有室外空间的露台或是阳台,便于室内采光充足;特别的检修口设计,便于房子的维护和检修,这是十分重要的。

户型10:中式小院
别墅效果图:这套别墅,传承中式风格,将黛瓦白墙木制窗棱等元素符号,用现代手法加以演绎,铸就更适合当代人居住的中式小院。

平面布局图:
别墅形态成“L"型,首层利用别墅形态将餐厅厨房和起居空间做出一个划分;一层东南侧设计了一个带有阳光房和独立卫生间的老人房,居住舒适度很好,优化老人居住感受。

二层设有更多的居住空间,方便人口多的大家庭居住。

你最喜欢哪套户型的风格呢?
微信公众号:住宅公园,500套别墅图纸,别墅庭院设计施工。