Lagom,瑞典人拥抱及实践的一个词语,意味着“不多不少、刚刚好”的生活哲学。
它是一切恰到好处、契合心意的舒适状态,追求不藏不显的心境、不繁不简的生活,着重适度的工作、适度的娱乐,在各个面向之间取得和谐。Lagom,它在生活里完美拿捏每件事的比例,正如同孔夫子所言的”过犹不及”,中国文化中的平衡观念,表现出一种刚刚好的状态。

Home Data
- 地点:成都
- 面积:240㎡
- 户型:跃层(三居室)
- 屋龄:新屋
- 风格:简约风
- 花费:100万元
- 团队:成都璞珥空间设计
- 主案设计:李瀛

▲ 一层户型图

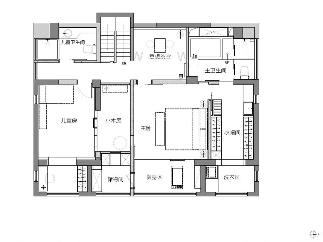
▲ 二层户型图
不繁 · 不简
宁静的氛围里,不让断舍离得极简成为主角,也不以精细繁复的装饰成为焦点。
跃层空间形塑着利落的形态、简约的风格,不繁不简的设计,既无喧宾夺主的压力,也将原始的生活功能还给空间,一点、一线、一面都恰如其分,给屋主一处安适、自在的环境。



▲ 一层布局采开放式规划,并以大面窗引光挹注明亮感;另呼应屋主生活习惯,以展示书柜取代电视墙。
有序 · 律动
以”有序”的设计手法,针对空间进行梳理、规整的安排,让整体环境看来是有系列性。
只是,看似干净的空间气息里,界面处理却有着律动的设计;比如门厅的格栅、线条的对应关系,或是楼梯间的部分,都体现出空间呼吸的韵律感,如同音乐家-巴赫的作品,既有结构严谨的美感,也有活泼、灵动的生命力,平衡有序、律动这两者的关系。

▲ 规整排列的格栅,采取斜角排列,让光影随时序转动展现多变的美感,是一种自然的律动。



▲ 大餐桌除了用餐,还是娱乐、玩耍、手工的多功能场域;而紧邻厨房的位置,让妈妈在做饭时也能看顾小孩。
宁静 · 活跃
没有花俏的纹饰,而是以灰白色或温润的木色,为空间描绘宁静感与艺术性,勾勒一个意境的氛围,让精神从一踏进空间就卸下武装,并于冥想室中达成放松、静心的效应。
但看似以”静”定调的空间,却隐隐飘散著一丝动息。巧用多彩的家具,赋予空间不单调、不无聊的小趣味,且质精、重点的布色,既没有反客为主的霸道,反而带来活跃、轻松的氛围,动静之间维持和谐的刚刚好美学。

▲ 颜色低调的空间点缀彩色家具,宁静中平添活跃气息。


▲ 小朋友玩耍不一定都在沙发上,在窗台铺个垫子、地毯,即是小孩的游戏区。

▲ 与餐厅相邻的视听室,是爸爸看球赛、一家人看电影的地方;并针对移门特别安装”软木”,可当作”告示板”使用。





▲ 身为飞行教员的男屋主需要放松、静心、独处空间;在二层规划冥想室完成期待。
清晰 · 模糊
空间的界线,不再局限于传统框架,借着”清晰”与”模糊”共存的设计,开启人与人、空间与空间、人与空间的自然对话,让各功能空间的关系既独立又亲密,布局安排合理适切。
于是,静区、动区的界定不再是习惯性的楼上、楼下安排,端视使用者需求来规划;因此原应是安静的睡眠区有了游戏小木屋,而一家人娱乐的客厅也能成为沉醉书香的自我世界。整体透过反馈期待的设计,形塑”动中有静、静中有动”的家居空间。


▲ 小木屋与儿童房连接,需要攀爬、玩乐的,就在这里。

▲ 小孩玩耍空间是屋主小时候的愿望,贴心设计小木屋来实现它。


▲ 主卧室与小孩房中间有道玻璃隔断,以移门为开关,让刚刚独立的小孩能随时看到妈妈。


▲ 衣帽间两侧分别连接主浴及洗衣区,且在同一条动线上有利于节省屋主的时间。洗衣区放置洗衣机、烘干机,并有操作台,方便洗完就挂。



▲ 满足屋主一家四口人一起泡澡的需求,在浴室现场以”中国黑火烧面石”打造大浴缸。
秾纤合度,一个用以形容身材适宜的成语,沿用至空间设计,则是意图贴近使用者需求的合理设计,是多一分太重、少一分太轻 的”刚刚好”美学。

好文分享
游艇为意向的顶级豪宅曝光!198平米的个性化设计,奢华的走心
"暂存储物柜",家务减量最新招!日本主妇用它做收纳,方便好实用
#装修# #室内设计# #装修案例# #家居设计# #装修风格#