本案例这套设计师的家,是一套210㎡的6室复式,业主一家六口住在里面,这也是业主为了能与老人一起居住所买的房子。他不仅过滤掉不合理的设计,还合理安排了收纳空间,为家人打造向往的生活!
房屋面积: 210㎡
户型结构: 复式(六居室)
设计团队: 张成室内设计


一层空间


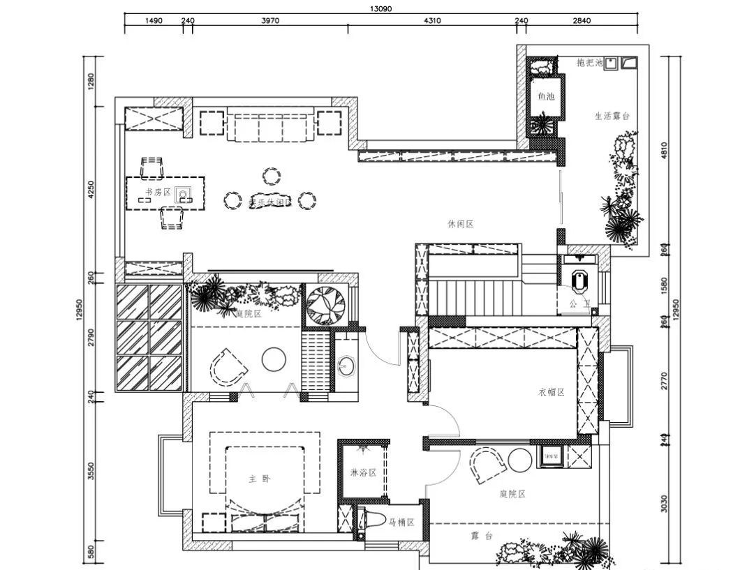
▲一楼平面图






▲客厅电视柜是定制的,由两个小的电视柜拼装而成。电视机旁的小憩地方上座率很高,舒适感很强。茶几乌金木的板子加亚克力的桌腿极具个性,马皮矮凳也很特别。




▲餐桌靠近西厨岛台,岛台做了储物功能,可以当餐边柜使用。2.2米长的大餐桌,可以容纳多人同时就餐。




▲厨房最大的优势是层高达到3m,这样就可以将吊柜做成双层,上面放不常用的东西,下层伸手可以取拿。台面石材做了不同的高度差,4个不同区域的操作台面可以同时用于不同的功能。西厨是厨房外的单独区域,整个色彩和客厅区统一。






▲为了增进两个女儿的感情,选择让她们有共同的卧室+书房+衣帽间。儿童房是一个套间,双床的好处是让两个孩子都有自己的空间。两人的衣柜是单独分开的,大女儿的衣帽柜在右边,小女儿的衣帽柜在左边,只有书桌放在一起。



▲老人房和主卧室是一样的大小,1.8米的大床让他们在房内也可以自在地看电视。



▲客房空间有点小,设计了壁龛与灯带,晚上很有氛围感。百叶加纱的组合,让窗帘看起来很有层次感。


▲客卫生间位于一楼和二楼之间,面积不大,所以这个区域洗手盆和水箱是一体的,有利于节约资源,洗手之后的水会自动进入水箱用于下一次冲水。



▲楼梯的结构如果足够美好,不用太多软装来修饰也是很美的。扶手和梯面选用了樱桃木色,拼版看起来很自然。

二层空间


▲二楼平面图







▲二楼多功能房是一个集合了休闲、健身、工作、聚会、阅读等功能的区域。地毯上没有放置茶几,很多时候可以直接坐在地毯上看投影,或是在这里滚瑜伽球。大板书桌上面是原木板,下面是石材+铁艺,现代感很好,书桌的左边没有照出来的位置有一个茶水柜,右手边是一个书柜兼麻将收纳柜。






▲主卧室里没有设置太多的门,这样看起来更通透明亮。卧室床头做了半护墙与软包,床头边还有一个嵌入式的柜子与挂衣服的地方。床尾放置了一个单人椅,有时候不想在床上躺的时候可以坐在单人椅上看书。


▲主卫生间设计,壁龛、毛巾架、马桶、百叶帘、悬空浴室柜,加长地漏一应俱全,功能性满满。


▲衣帽间没有太多特别的设计,收纳功能足够,使用便捷即可。



▲主卧外的露台做了铁艺的木沙发与小边几,做成全家人的休闲区。
怎么样,小伙伴们对我的分享还满意吗?如果喜欢我的分享,就辛苦点个赞同吧!!