北京自由行日期: 2019年8月3号----8月11号
点阅:北京旅游自由行日程清单
点阅:8.4 故宫游玩攻略
点阅:8.5AM 天坛公园游玩攻略
点阅:8.8AM *安门天**观看升旗攻略
08.05PM 第三天 景山公园游玩攻略
去北京玩,建议一定会去故宫。去了故宫,也建议去下景山公园,在故宫神武门的对面。北京的景太多,若只看景,不听景后面的故事,你会发现北京的景就剩下了楼阁亭台、皇城园林、青山绿水。
- 01 - 景山公园总览

图:景山公园总览
景山公园有哪些景点?
① 绮望楼 ② 景山五方亭 ③ 明思宗崇祯自缢处 ④ 关帝庙 ⑤ 观德殿 ⑥ 永思殿 ⑦ 寿皇殿

图:景山公园
景山公园游玩时可以分为两块游览:
① 绮望楼 -- 景山五方亭 -- 明思宗崇祯自缢处
② 关帝庙 -- 观德殿 -- 永思殿 -- 寿皇殿

图:景山公园正门夜拍
说到景山公园,你知道他的名字由来么?
景山是元、明、清三朝的皇家园林。元代时是个土丘,叫做青山。明代时曾在此堆放过煤炭,又称煤山。后来从筒子河挖出的土堆积在此,又称万岁山。清顺治十二年改名为景山。
- 02 -景山公园游玩实录
绮望楼
进入公园南门,直走先游览绮望楼,现在看到的绮望楼是清朝建的,乾隆帝拆了明“山前殿”后再原址上新建的。

图:绮望楼
绮望楼是用来干什么的呢?绮望楼上下两层,坐北朝南,楼内曾供奉孔子的牌位。是官学堂学生祭拜孔子的地方。
五方亭

图:爬山的青石路
然后西行爬山依次游览五方亭:富览亭、辑芳亭、万春亭、观妙亭、周赏亭。五方亭也是乾隆年间在山峰上建的佛亭。供奉着五方佛,也称五味神。目前佛像只剩下一座,在最大的万春亭中,是尊铜铸贴金的毗卢遮那佛。这是近代的恢复的。

图:富览亭
富览亭是重檐圆攒cuán尖顶。原本供奉的五方佛之一的不空成就佛。为铸铜镏金佛像,后被八国联军劫去。后来景山公园开园后,这个亭子的匾额与辑芳亭匾额颠倒,直到69年后1997年才调换回来。

图:辑芳亭
辑芳亭是重檐八角攒cuán尖顶。原供五方佛之一的阿弥陀佛,为铸铜镏金佛像,被八国联军劫去。

图:万春亭

图:万春亭
到景山最高点万春亭,景山高42.6米。在万春亭的南面一览故宫全貌,西面可以看北海的琼岛白塔,北面看钟、鼓楼。

图:万春亭
万春亭是位于景山正中最高峰顶,在北京中轴线上。三层檐四角攒cuán尖式亭子。1938年8月9日,万春亭遭到雷击,亭内悬挂的“佛光普照”匾额的下款“信士弟子”四字皆被击毁。亭子上的宝顶在2006年更换为新的。亭内的毗pí卢遮那佛是在1998年恢复的。

图:万春亭西面的北海白塔

图:毗卢遮那佛
毗pí卢遮那意为:照耀,光明遍照的意思。毗pí卢遮那佛与卢舍那佛、释迦牟尼佛合称三身佛。毗pí卢遮那意译为“光明普照”、“大日”,故密教称毗pí卢遮那佛为“大日如来佛”,为密教教主,即密教“五方佛”中正中央佛。毗pí卢遮那佛是释迦牟尼佛的法身,表示绝对真理的佛身。毗卢遮那佛是法身佛,卢舍那佛为报身佛,释迦牟尼佛为应化身佛。

图:万春亭--北京的中心点
去年有本马伯庸的小说《古董局中局》很火,主要是由于同名电视剧播出之后,其中一节是关于明堂佛首丢失的,对佛的讲解很细,没看过可以去看下。

图:万春亭上一览故宫
故宫的御花园里也有座代表春天的亭子叫万春亭,浮碧亭代表夏季,千秋亭代表秋季,澄瑞亭代表冬季。

图:万春亭夜拍故宫
凭栏遥望四方,威风拂面,静静的休息下。准备下山了。看到了“京华揽胜第一处”的石头。

图:京华揽胜第一处
观妙亭是重檐八角攒cuán尖顶。亭内原供五方佛之一的阿閦chù佛,为铸铜镏金佛像,被八国联军劫去。阿閦chù佛是不动如来。

图:观妙亭
观妙亭和西侧的缉芳亭相对而建,两座亭子建筑形式和彩绘完全相同。下面周赏亭和富览亭相对而建。东西对称。

图:周赏亭
周赏亭是重檐圆攒cuán尖顶。亭内原供奉着宝生佛。为铸铜镏金佛像,后被八国联军劫去。
宝生佛左手持衣角于手心,右手仰掌,象征宝生佛"满足众生所求"的本愿。宝生佛属金色(也称黄色)宝部部主,居南方,故亦称为五方佛中之南方佛;因宝生佛具有平等性智,也称为五智佛之一。
明思宗崇祯自缢处
沿着阶梯向下走,就会看到那颗出名的槐树,也称“罪槐”。原罪槐已死,今原处槐树是后来补种的。明崇祯帝在此自缢。

图:罪槐
明思宗崇祯帝朱由检是明朝最后一个皇帝。槐树的旁边,矗立着两座石碑。一座镌刻“明思宗殉国处”六个大字,为1930年故宫博物院请著名书法家沈尹默书写勒成;另一座则是1944年由前清翰林傅增湘所作的《明思宗殉国三百年纪念碑》。

图:明思宗自缢处
值得注意的是,后人在为这一著名的旅游景点立指示牌时,从最初的“崇祯皇帝自缢处”,悄然变成了如今的“明思宗殉国处”。

图:明思宗殉国碑
据记载:清入关后,顺治帝为此树加上锁链,名之曰“罪槐”,以慰民心。1900年,八国联军将锁链掠走。后来在某个特殊的年代,这颗“罪槐”被伐除。1981年,公园管理处将景山南坡一棵有碗口粗的小槐树移栽到这里。1996年公园管理处又将北京东城区建国门内北顺城街7号门前的一株古槐移栽至此,替代了1981年的那颗小槐树。
关帝庙--真武殿
公园东门(山左里门)的北侧就是关帝庙,又称护国忠义庙。关帝庙的正门没有开,要从东侧的小门进入,前后共有两重院落,前院供奉关帝,后院祀真武大帝。

图:关帝庙的正门
关帝庙里是关帝的文化展。东配殿为“皇家关帝文化与关帝祭祀”主题文化展。西配殿为“关帝传奇与文化传承”主题文化展览。

图:关帝庙的关羽像
正中关帝像为坐像,左右站立的是周仓、王甫、关平和廖化。展厅中有很多战神关羽事迹的画展。比如,桃园结义、过关斩将等三国中的故事。

图:关帝庙

图:关帝庙
走近后院的真武殿,殿内是真武文化展。真武殿供奉的是真武大帝。真武大帝又称玄天上帝、玄武大帝。是中国神话传说中的北方之神。明朝初期,朱元璋的儿子燕王朱棣发动“靖难之变”,夺取了皇位。传说,真武大帝显灵相助,故朱棣登基后,下诏特封真武为“北极镇天真武玄天上帝”,并大规模地修建武当山的宫观庙堂。因帝王的大力提倡,真武大帝的信仰在明代达到了鼎盛时期。

图:真武殿--真武大帝画
在故宫的钦安殿里供奉的也是真武大帝。在景山公园里隐藏了一个巨大的秘密,这个秘密就是景山公园是一副巨型的盘坐人像。这个人像和真武大帝颇为相似,不知道是巧合,还是人工设计。

图:故宫钦安殿--玄天上帝像
1987年夔kuí中羽遥感航拍景山公园发现了景山人像。不知道是古人的设计还是自然的演变。

图:夔kuí中羽遥感航拍--景山公园

图:夔中羽遥感航拍--景山公园
殿内有很多关于真武大帝的起源和事迹的画。

图:真武由来

图:真武发愿图
观德殿
观德殿目前在修缮中,预计是19年底开放,但这不影响我们了解观德殿。这里曾是皇帝观看臣子射箭的地方。
观德殿建筑群为四进院落,其中一、二进院落曾为北京市少年宫占用,目前已完成修缮工作,包括观德殿二宫门按历史原状恢复、修整园内围墙及卡子墙,恢复随墙门、院落铺装等内容。
走过永思殿,没有进去。永思殿位于寿皇殿东面,是历代皇帝皇后停灵的处所,自成一院,坐北朝南。
寿皇殿
寿皇殿建筑群包括九举牌楼,南、西、东牌坊,宫门(外院正门),寿皇门(戟门、内院正门),东、西配殿,寿皇殿正殿等。

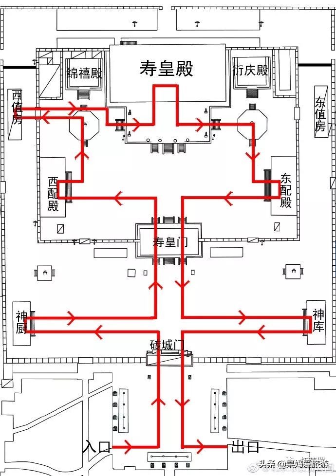
图:寿皇殿游玩路线
走进入口,首先看到的是三座九举牌楼,位于东、南、西三面。初看三座牌楼,感觉高大,气势恢宏。这三座九举牌楼有很多知识点。

图:四柱三间九楼式牌楼
这三座牌楼是四柱三间九楼式。牌楼的大小以“间”为衡量单位,间是指两根柱子之间的通道,比如,一间、三间、五间,柱是双数,间是单数。“楼”是指飞檐起脊的部分,有一、三、五、七、九、十一楼之分。一般来说,柱数、间数、楼数三者数目越大,等级越高。
皇家建筑讲究九五之尊,九举牌楼是牌楼中规制等级最高的,在等级森严的封建社会,九举牌楼是皇家专属牌楼。况且,寿皇殿九举牌楼不是一座,而是三座九举牌楼建在一起,这种品字形牌楼院形式是很少见的。这三座九举牌楼在皇家园林中独树一帜,目前仅有清西陵祖陵雍正泰陵大红门前的三座六柱五间十一楼的石牌坊群可与其相媲美。

图:戗qiāng兽
这三座牌楼每座都增加了前后八根戗qiāng杆,每根戗杆的下面换上了新做的戗qiāng兽。最早的时候这三座牌楼都有木头的戗qiāng杆,前后支撑着楼柱。戗qiāng兽是戗杆的基座,没有戗杆,戗qiāng兽也失去了功用,再后来就把戗qiāng兽在地面上两两摆在一起,每座牌楼靠外侧一边的地面上都有四对戗qiāng兽。

图:夹杆石上两只神兽
三座牌楼每座牌楼四根柱子的夹杆石上均雕有两只神兽,或麒麟,或石狮,称得上是“寿与天齐”。更为奇特的是寿皇殿每座牌楼地面上的“戗兽”与夹杆石上的麒麟或石狮是相匹配的,三座牌楼共有十二对石兽戗石,两两相对,十分精美。

图:砖城门

图:砖城门西侧的雌狮
走进券门,看到寿皇门。西侧有神厨、井亭,东侧有神库、宰牲亭。牛、羊、 猪等祭品在宰牲亭里宰杀。神厨是专门用来制作祭品的地方,祭品制作完成后就放置在神库内, 以供祭祀大典举行时使用。

图:寿皇门
从寿皇门西侧门进入,正面是寿皇殿,东西是配殿,东西碑亭内石碑、寿皇殿正殿月台上铜炉、铜鹿和铜鹤。寿皇殿是供明、清两代皇帝停放灵柩、存放遗像和祭祖之所,即“神御殿”。它位于景山正北方,在北京古城的中轴线上。

图:碑亭

图:寿皇殿正面照
寿皇殿建筑群现推出《景山寿皇殿历史文化展》,共包含6个展厅,以原状陈列与专题展览的方式相结合,全面细致的展示了寿皇殿的历史渊源、建筑风格、文化内涵方面的内容,以历史还原为亮点,传播中华传统礼仪文化,彰显北京中轴线文化魅力。

图:寿皇殿内照

图:祭品展示

图:寿皇殿内祭拜陈设展示
公园西门(山右里门)附近,八月份青色柿子高挂枝头,不注意看,像是隐在树叶里。出了公园西门,准备返回前门大街,去逛美食。