香港的房子普遍面积都是比较小,在寸土寸金的香港,买一套房子不容易,所以要充分设计利用好每一吋空间。在小户型房子设计中,香港的房子案例是很值得我们去参考的。

今天和大家分享的案例是在香港铜锣湾的一间房子。这个房子的套内面积是39平米,需要满足一家三口的生活学习日常。

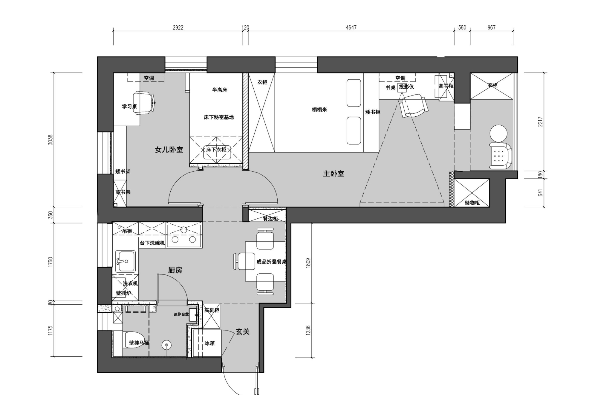
这个房子原来的户型结构有两大难点。一是户型使用面积小,一家三口居住,需要各项功能齐全并且还有两个卧室。二是空间功能规划不合理,不符合现代人的生活习惯和需求。
首先从玄关开始改造,在原来的户型中是没有玄关的设计的,推开门就是卫生间、厨房的门。现在拆了一堵非承重墙,争取多了5cm的空间,增设一个玄关柜子。玄关柜子的柜面也藏着设计细节。靠近玄关一侧是镜面,方便家人进出家门整理仪表妆容。靠近餐厅一侧,则贴了玻璃面书写板,是家长的留言记事板,也是孩子的涂鸦创作板。

紧接着是厨房,原来的厨房还是老旧的厨房构造,改造后设计成开放式厨房,使餐厅和厨房连成一体,空间开阔不显局促。L型布局的厨房,根据使用习惯设计的流动线,操作方便。改造后,餐厅和开放式厨房连成一体,空间感大大增强,采光条件也得到了极大提高。


卫生间是本次改造的关键,原来的卫生间位置尴尬,一进门看到的就是卫生间。改造后,将卫生间的开门方向进行了改变,不仅为玄关留出了储物空间,也更加实用。设计师还利用卫生间南侧无法移动的凹面墙体,打造了一个超迷你洗漱区。不到1平米的空间里,镜前灯、浴室镜、洗脸池和置物架一个不少,真是把空间利用到了极致。

卧室分为主卧和次卧。主卧的父母房分成三个区,睡眠区、办公区、阳台(休闲)区。睡眠区和办公区间用矮的书柜分隔。书柜设计成半高,既可以作为睡眠区和办公区的隔断,又不影响两个的区域采光。两部分空间分而不断,相互连通。

次卧为儿童房,特意根据孩子的身高设计了半高书柜,方便拿取,可调整高度的学习桌椅能跟随孩子一同成长。墙上安装了玻璃白板方便家长辅导作业。

这个39平方米的两居室在设计师的巧手上发挥最大的用处,小户型设计在空间规划上很重要,在这个家装案例中,有许多值得小户型借鉴的设计细节。比如收纳空间的灵活设置,空间利用等。希望你能从这个案例中获得一些灵感~