号外!号外!你们心心念念的福利来了~
更多室内设计学习文章,资料,教程,软件,插件,方案,施工工艺材料等可以关注私信小编,不懂的地方,欢迎大家留意交流
- 免费分享 -
以下案例为这套素材主要是:本期福利:2020国内顶级室内设计大师/事务所年度案例集锦
100G/80套完整案例平面方案施工图软装效果图材料清单
如果你喜欢请点赞转发让更多想成为室内设计师的新人助理设计师也能看到
谢谢!希望我们能走的更远
【福利在文章最后】 千万不要不要错过!!!
【CCD50套】酒店别墅工装室内设计资料合集丨施工图+效果图+软装方案|PDF+JPG
【HBA】HBA上海闵行艾美酒店丨方案设计+效果图+施工图+物料表丨PDF+JPG
【CCD&SLD】方兴上海大宁项目(金茂府)施工图&效果图&实景1.28G
【集艾设计】上海海珀黄浦6-1户型中式样板间&公共区域丨设计方案+效果图+CAD施工图
【邱德光】上海黄浦滩名苑600户型CAD全套施工图+官方摄影+造价清单丨
【梁志天】深圳灣1號T4-15樣板房深化設計方案PDF+JPG格式+效果图+官方摄影
【李玮珉】深圳汉京半山公馆项目丨设计方案+效果图丨2014.10.16丨328P丨540M
金螳螂--南京希尔顿酒店方案等等



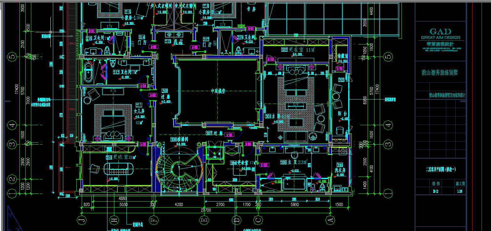
1500㎡超豪华新中式独栋别墅装修施工图/效果图
资料内容包含:全套CAD施工图(封面,图纸目录,施工图设计说明、平面图,立面图,节点大样,机电,给排水,暖通,楼梯间,门表等)PDF版施工图,材料表,效果图,铝合金窗方案,空调地暖设备方案等
部分施工图展示:地下一层施工图

一层原始结构图

地下一层家具布置图

一层家具布置图


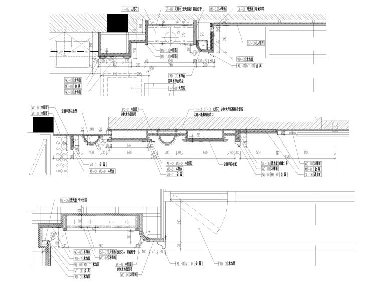
综合天花图

天花灯具图


0908-餐厅

0908-门厅

0914-老人房

0914-女儿房

0914-女儿卫生间






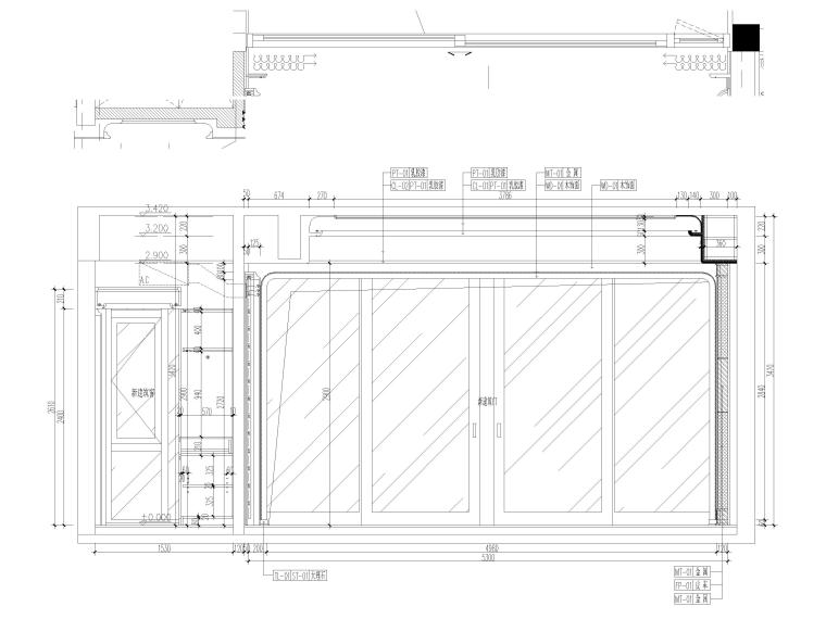
会客厅,中庭立面图

会客厅立面图

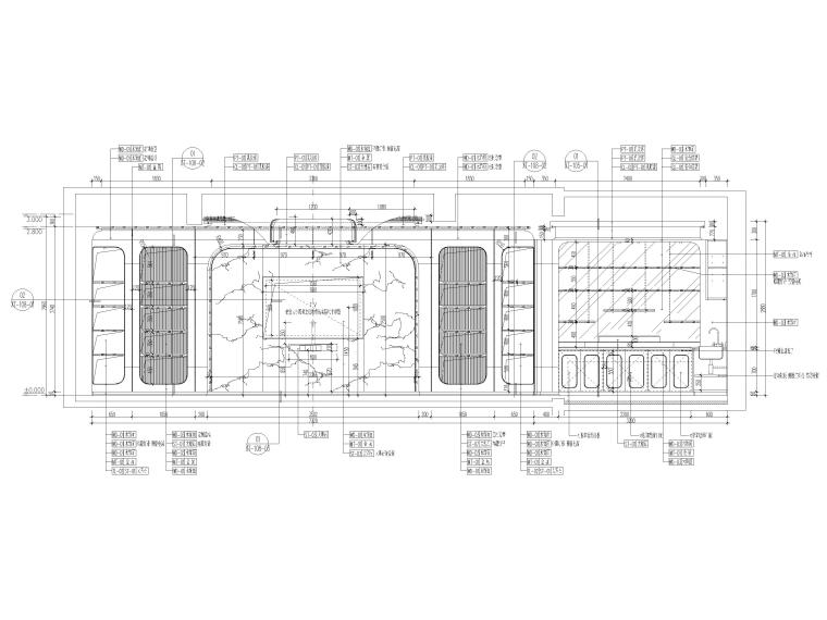
餐厅立面图

餐厅立面图2

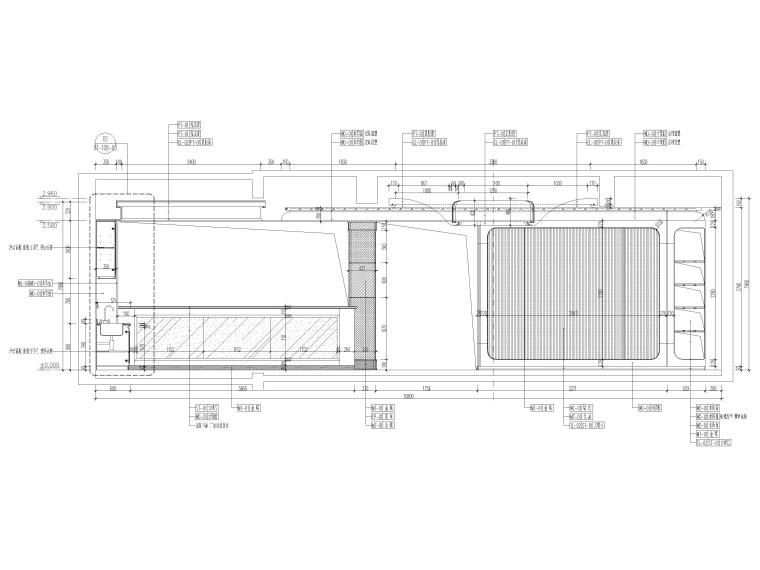
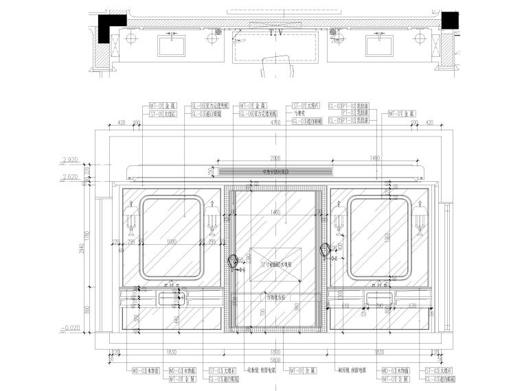
主卧立面图

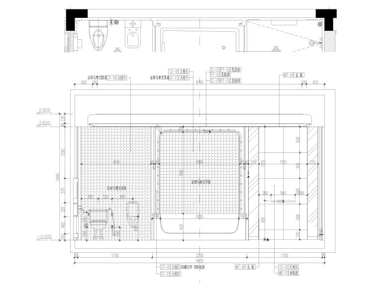
主卧卫生间立面图










