在这篇文章具体给大家讲述分析之前,提前告知大家一下:
胶囊君送给大家《1000套国外经典平面方案图集》室内设计师的精神零食!
想要获取的设计师注意!获取方式见文章页尾!



解析正式开始!!小板凳坐好!认真听讲!
在整套方案图纸中,平面图的重要性,不用我多说,相信每位设计师都知道。
特别是在前期方案汇报的时候,还没涉及到一些技术性落地环节,我们通常会在汇报文本里放置彩色平面图,一套高逼格的彩平图能够为你的方案加分不少。

同样是彩平图,你可以填得简单,也可以填得复杂。当然,你很有可能还会填成了五彩斑斓的黑。
我们先来看看填得丑的彩平图长什么样。

有的人说
我填充了色块
区分开了不同的空间啊
抱歉
这也太单调了
而且这配色。。。
emmm......

有的人说
我这回填充了材质总可以了吧
抱歉。。。丑

有的人说
这样总可以了吧
抱歉。。。low

有的人说
这回不艳俗了吧
抱歉。。。
这张彩平图毫无层次感

作为一名专业的设计师,我们所交付出去的彩平图不应该只是在这个层次。
CAD平面图导出前要不要处理?
如何正确的使用区分线?
如何正确的使用图库图块?
如何正确的使用家具组合?
如何正确使用文字标示?
如何利用大小对比疏密对比做出美感?
如何正确处理色彩关系?
如何做出层次感?
如何做出属于自己的风格?
……
要想做出一套优秀的彩平图,以上都是设计师应该考虑的问题。
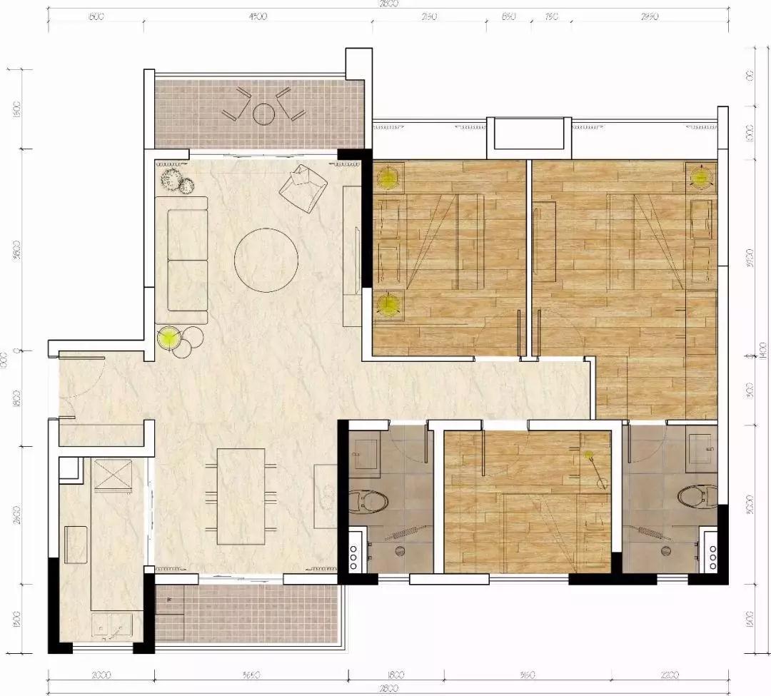
彩平图并不是说一定要做得越复杂越好,可以根据不同的实际需要来选择不同的表现方式。
只要掌握了技巧,同样一个空间,我们可以有不同的表现方式。

↑↑↑
我可以做成这样的基础版彩平图

↑↑↑
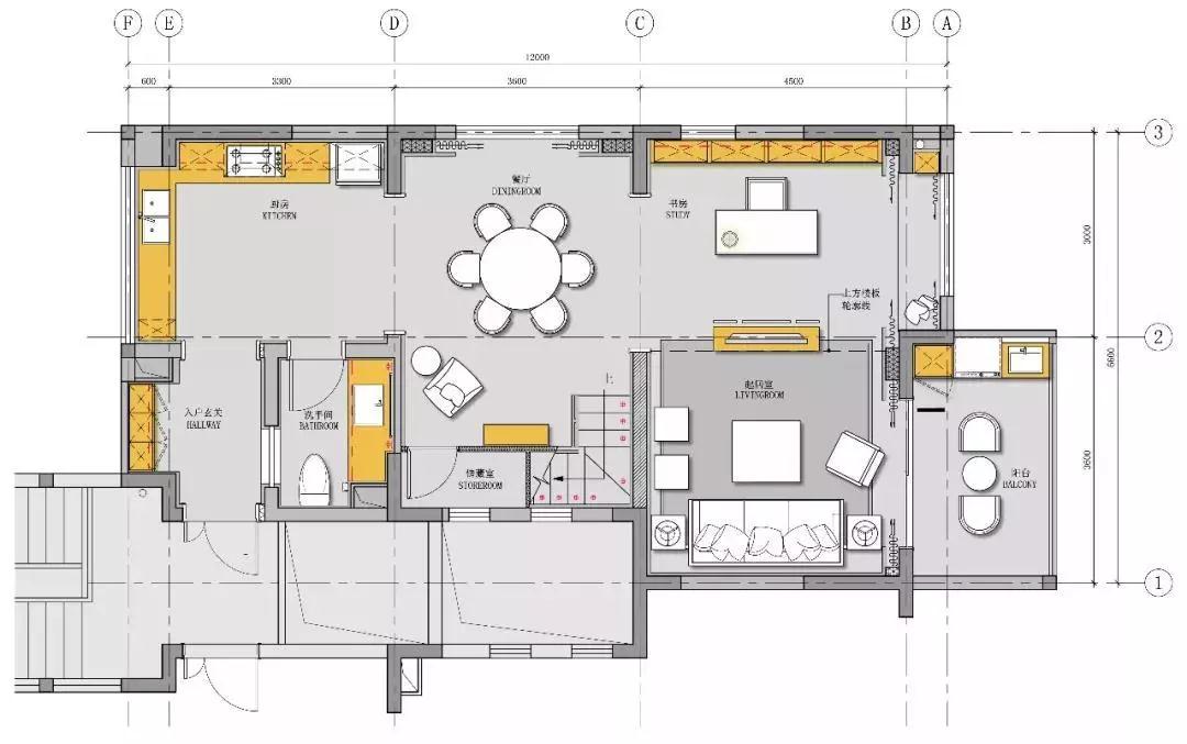
也可以做成这样的通用的彩平图

↑↑↑
还可以做成这样核心的彩平图

↑↑↑
咱们还可以再来点投影效果

↑↑↑
当然
掌握了技巧
其他类型平面图
我们也是可以添加阴影的

↑↑↑
如果
你希望做出你自己的风格
我们还可以做成这种手绘表现风格

↑↑↑
除此之外
我们还可以给彩平图
制作出一些肌理质感
我们设计师经常以一种挑剔的眼光来看待世界,总是看这个不顺眼,看那个丑,轮到自己拿出手的东西,当然也不能降低标准。
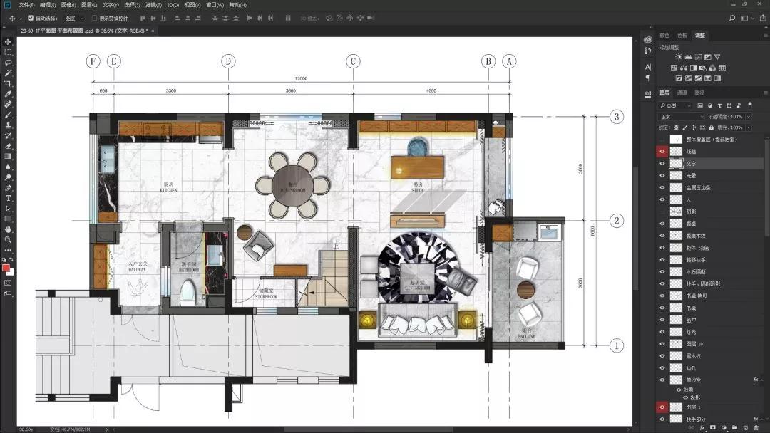
那这些好看的彩平图是怎么做出来的呢?

↑↑↑
首先
导入底图
填充墙体
增加家具阴影

↑↑↑
处理大色块

↑↑↑
处理活动家具

↑↑↑
继续处理活动家具

↑↑↑
处理固定家具

↑↑↑
点亮灯光
增加细节描边

↑↑↑
调整色调

↑↑↑
添加空间名称

↑↑↑
添加光照阴影

↑↑↑
成品出图

↑↑↑
再来看看手绘风彩平效果
胶囊君送给大家《1000套国外经典平面方案图集》室内设计师的精神零食!!
想要获取的设计师,关注+私信:“零食 ”可以免费领取《1000套国外经典平面方案图集》室内设计师的精神零食!!,供大家学习参考!!















胶囊君送给大家《1000套国外经典平面方案图集》室内设计师的精神零食!!
想要获取的设计师,关注+私信:“零食 ”可以免费领取《1000套国外经典平面方案图集》室内设计师的精神零食!!,供大家学习参考!!