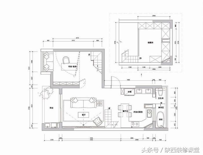
房型:93.46 跃层
希望的装修风格:按照LG的意思是比较偏向-后现代简约+少许的奢华
拿到的平面图

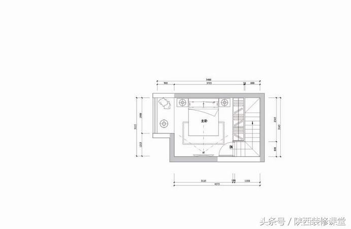
楼上卧室的 比较简单

在别人帖子里看到的 鞋架 我挺喜欢的 不知道能不能应用到我们的小窝
比如在储藏室那个空间里?

在别人帖子里看到的 鞋架 我挺喜欢的 不知道能不能应用到我们的小窝
比如在储藏室那个空间里?

这个是我上次和你说的阳台我想布置的样子
它里面放了个熨烫版 我也挺喜欢的 方便熨衣服裤子 Hyde帮我想想哪里可以放hoho~无法显示

这个储物格局也不错 能放在上面的卫生间么,因为经常去旅游,所以得阁一块地方放行李厢,Hyde帮忙想想挖鼻孔无法显示

老公说很喜欢这套卫生间的格调

当和煦的阳光洒下来的时候 慵懒的坐在吊椅上 很是惬意
吊椅子是淘宝上买的 广州的卖家 物流到上海后 需要自己去提货

厨房我们改成了开放式的 平时在家做饭比较少 所以油烟还好
整个厨房由黑白红三色构成
拍手无法显示

卫生间是北阳台改造的 很大胆的一个想法
完工后的效果还是不错的
麻雀虽小 五脏齐全
强烈要求的浴缸
其实当时想买个1米60长的 这样旁边还能有个冲淋房 但是事与愿违啊 喜欢的款式都没1米6的 只能买了1米8的 舍弃了冲淋房
虽然爬进爬出还是有点麻烦 但是泡澡的时候确是十分享受

另一边是马桶 卷帘拉开的时候 能看到小区的景色

卧室不大 只容纳了一张巨大的床 和一个衣柜
买床的时候选了个很舒适的床
因为我对睡眠质量的要求很高
劳累了一天了 晚上一定要睡在一个舒适的床上
慕斯凯奇的床很不错 我们选了两块床垫 这样晚上即使有人晚睡觉 也不相互影响

继续来上照片吧
先来书房的 书橱是宜家买的 比利书橱 想做一个嵌入式的 所以在施工早期就把书橱买了 搬到施工现场组装起来 在后期施工过程中 因为妈妈做的保护措施妥当 基本书橱都没什么损坏
米白色的外贸地毯是淘宝上淘的 质量很不错
小矮桌是之前家里的 搬来用 放上桌旗 效果还不错 现在就变成了我的工作台了

书房的电脑台

另外个角度看客厅
电视墙的成品效果和我预期的不太一样 曾经一度想把它拆掉 但是想着 自己是看着它一点一点成长起来 又很是舍不得
电视墙的柜体都是可以打开的 里面可以储存物品 柜体和柜体之间还可以摆设小饰品

放在电视墙的柜体间 效果还不错hoho~无法显示

我老板从日本给我带来的************娃娃

玫瑰花是老公送的4周年礼物
手工娃娃是在妈妈的帮助下自己缝制的送给老公领证1周年的礼物

下柜的小摆设
淘宝上购置的 不听 不看 不说 鸡
喜庆娃娃是豫园购置结婚物品时候买的

接着上厨房
零零散散的厨房用品基本都是宜家买的
喜欢这种瓶瓶罐罐堆满的感觉

方太的脱排、煤气灶、烤箱 因为迷上了做糕点 所以舍弃了洗碗机和消毒柜
虎牌的电饭煲 功能很多 做出来的米饭很香 推荐 推荐
多士炉 早晨起来用来烤面包

来看看盥洗区吧
双台盆一直是自己向往的 这样刷牙洗脸都不会打架hoho~无法显示
盥洗区是原来的卫生间改建的 现在是全开放式的

给双台盆来张近照

特写来一个

看到那个小门了么
通往北阳台卫生间的门

看看晚上灯光下的大浴缸

ToTo的挂壁式马桶

卫生间的开关来个特写
带遥控的是松下的风暖 淘宝上购买的 松下公司的人来安装 便宜好多啊
松下的开关也是淘宝上买的 赞一个拍手无法显示

卫生间的小摆设
有音乐 有书籍 有小植物
在浴缸里放上满满的泡泡 和着慵懒的灯光 享受着这一切 真是舒服呀

接下来放点小软装
朋友送的十字绣 放在主卧门口
朋友很有心 还绣了我们婚礼的日期
其实书房里也有一副蓝色妖姬 也是一个朋友绣的
拍手无法显示

客厅里的照片墙 记录着我们的点滴
献花无法显示

盥洗台上的小盆栽 淘宝上买的

通向主卧的楼梯

通向储藏室的楼梯
因为距离有限 所以做了踏步式样

博世的双开门冰箱

爸爸给选的装饰花

主卧楼梯上也放了个

★装修怕坑,告诉你残酷真相,关注装修课堂微信【zx029zx】