xx电业局系统目前有各类型10-35kV高压开关柜共计1093面(其中35kV166面,10kV927面),主要开关柜类型有KYN(494面)、GG1A(263面)、XGN2(133面)、GBC(105面)、GGX2(32面)等几种型号,现将这几类开关柜原理、结构以及几种避雷器、母分开关的连接方式做如下说明:

一、开关柜原理、结构图
1、国产高压开关柜型号:
□□□□-□□
第1个方框表示开关柜结构型式:J—金属封闭式;K—金属封闭铠装式;G—固定开启式;GF—高压金属封闭开关设备;H—环网开关柜。
第2个方框表示:Y—移开式;X—箱式;G—固定式。
第3个方框表示:N—户内式;C—手车式。
第4全方框表示设计序号。
第5个方框表示额定电压(kV)。
第6个方框: (F)带防误装置。
型号中其他常用字母含义还有:G—高压开关柜;W—户外型;H--活动式;C—手车或小车式等。
2、GGX2型开关柜
2.1结构特点简介
GGX2型开关柜为金属封闭箱式外壳,所有带电体均被封闭在柜内,并按功能划分为母线室、断路器室、电缆室,室间以金属防护板分隔。仪表箱为单独结构,安装在柜上部,转动箱后的丝杠,可使其升高300mm,以便于检修断路器部分。
主母线由柜间的绝缘套管固定,卸下后盖板即可检修,此套管使相邻两柜间完全隔离,母线室顶盖板上设有释压窗。
真空断路器及电磁操动机构或弹簧操动机构为一整体结构,推入柜内后用螺栓固定。断路器室与主母线室之间安装上隔离开关,与电缆室之间安装下隔离开关。断路器室的后壁安装电流互感器,右侧设有上下隔离开关及其接地开关的操动机构,本室内如产生过高压力,可经后上方的释压窗排出。
电缆由柜底板下部的支架和卡箍固定,穿过零序互感器进入柜内,用盖板及填充物封严。电缆芯线连接到汇流铜排上,这个铜排用带电显示装置的传感器支撑,可以检查电缆是否带电。电缆室内根据需要可以安装避雷器,后下方设有接地母线,右下方是电缆头接地开关的操动机构。本室内如产生过高压力,可经后部通道由上部的释压窗排出。
2.2结构图

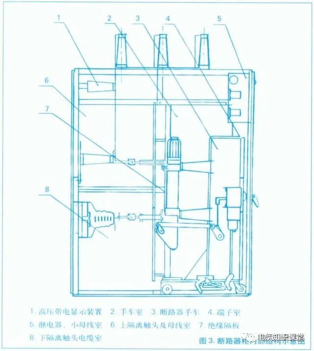
3、GBC型手车式高压开关柜
3.1结构特点简介
本开关柜为手车式结构,采用空气绝缘为主。各相带电体之间及相地之间绝缘距离不小于300mm。柜后用钢网遮拦,开关柜的正面、柜间及柜的两侧,均采用钢板门或封板加以保护。
柜体:柜体分隔成手车室、触头室、电缆室、继电器室、端子室以及仪表板等。柜前中部为手车室,打开两扇中门,手车可以出入,二扇门上均设观察窗。二次插头固定在右中门上,右中门上标有手车处于试验位置的标志。左侧小门上装有名牌和指示柜内一次线路方案的标志。右侧之小门上,专供安装按钮和控制开关以及需要手动复位的继电器等。
该门内是端子室,装置二次接线端子组,端子组上方装有供柜内照明的灯具,下方设有接地螺栓。柜前上部是两扇对开的钢板门,用于安装仪表,指示器等。柜间小母线沿小室上部敷设,小母线端子组设于小室的左侧,最多可敷设小母线共15根,其中有两根供合闸之用。于此室之下方,具有联络母线的开关柜其联络母线也是经由本室外与邻柜进行联络。柜后上部为上隔离静触头室。上、下一次静触头室均可根据需要,装设支柱绝缘子触头座或电流互感器或穿墙套管;上部三相最多可装设电流互感器六只,下部最多装设三只。为保证局部检修安全,在手车内侧顶部加设绝缘隔板,下隔离动触头与手车室之间也设有绝缘隔板。
3.2结构图

图3.1

图3.2
4、XGN型固定式金属封闭高压开关柜
4.1结构特点简介
开关柜为金属封闭箱式结构。柜体骨架由角钢焊接而成,柜内分为断路器室、母线字、电缆室、继电器窒,室与室之间用钢板隔开。
断路器室在柜体下部。断路器下接线端子与电流互感器连接,电流互感器与下隔离开关的接线端子连接,断路器上接线端子与上隔离开关的接线端子相连接。断路器室还设有压力释放通道,若内部产生电弧时,气体可通过排气短道将压力释放。
母线室在柜体上后部。为了减小柜体高度,母线成品形排列。以7350N抗弯强度的瓷质绝缘子支持。母线与上隔离开关接线端子相连接。
电缆室在柜体下部的后方。电缆室内支持绝缘子可设有监视装置,电缆固定在支架上。对于主结线为联络方案时,本室则为联络电缆室。
断路器操动机构装在正面左边位置,其上方为隔高开关的操作及联锁机构。
开关柜为双面维护,前面检修继电器室的二次元件,维护操作机构、机械联锁及传动部分,检修断路器;后面维修主母线和电缆终端。在断路器室和电缆室均装有照明灯。
4.2 结构图

5、GG-1A型固定式高压开关柜
5.1结构特点简介
基本骨架绪构由50×50×5等边角钢焊接而成(方案25—28为63×63×6等边角钢焊成).其它面板、门、隔板及侧板均为薄钢板制成,前视左上部为高950mm的仪表门,其上安装有监视仪表、指示操作元件及继电器、电度表等;左中部为操作板、安装操动机构;左下角小门内安装有合闸接触器、熔断器;操作板右侧之长条门内安装二次回路端子排及柜内照明灯;右侧为上下两扇门,由此可进入检修电气设备。柜内由隔板将其分为上下两部分,上部为断路器室,下部为隔离并关室,并安装联络母线。隔板上安装电流互感器等,当断路器为SN10—10型少油断路器时,隔板中间一块为油槽板,准备检修断路器放油之用。
开关柜具有的五防功能是通过机械闭锁实现的。
5.2 结构图

图5.1 GG1A-型高压开关柜(已抽出右面的防护板)
1—母排;2—高压隔离开关;3—高压断路器;4—电流互感器;5—高压隔离开关;6—电缆头;7—检修门;8—观察窗;9—操作面板;10—高压断路器操作机构;11—高压隔离开关操作机构;12—仪表、继电器板(兼检修门)

图5.2
6、KYN型开关柜
6.1结构特点简介
(1)采用新型的ZN21、VS1、VS1、VD4、V、HVX等真空断路器,具有体积小、重量轻、性能可靠等特点。
(2) 开关设备的可移开部件手车,手车与柜体配合精度高,机械连锁安全、可靠、灵活。手车根据用途不同可分为真空断路器手车、电压互感器手车、避雷器手车、隔离手车、熔断器手车等,同规格手车可以互换。
(3) 开关设备主要电气元件都有其独立的隔室。即:手车室、母线室、电缆室、继电器仪表室等。各隔室间防护等级都达到IP2X。除继电器仪表室外,其它三个隔室都有泄压通道。确保操作人员和开关设备的安全。
(4)开关设备具有各种防止误操作功能(包括防止带负荷移动手车、防止接地开闭位置合断路器、防止带电合接地开关和防止误入带电间隔等功能)
6.2结构图


图6.2 泄压通道详图
6.3简易操作使用指南
6.3.1 KYN28型开关柜在使用过程中首先应了解各个机械闭锁之间的相互关系。在闭锁未解除的情况下强行操作,将对断路器及柜体造成损坏。开关柜内的闭锁机构主要有:
①手车从转运小车推入柜体后,手车地盘上的定位片必须完全插入柜体的定位孔,手车才能被摇进;
②推进手柄未完全插入推进机构孔时,无法摇动推进手柄。
③手车处于合闸状态时,手车被闭锁不能摇动。
④手车处于工作位置与运行位置之间时手车无法合闸。
⑤接地开关合上时,手车不能从试验位置摇至运行位置。
⑥手车处于运行位置时,接地开关不能操作。
⑦开关柜无控制电源时,手车无法手动合闸。
⑧接地开关处于分闸状态时,开关柜下门无法打开。
6.3.2为什么有时闭锁解除后手车仍无法摇入?
出现这种情况可能是柜内隔板未完全打开或接地闭锁未完全退出引起。这时必须将手车拉出检查。如果强行摇进,会导致导轨与触头变形。
6.3.3为什么在没有控制电源时无法手动合闸?
打开断路器前盖板,可以看到在手动合闸开关后方有一个闭锁电磁铁。通电后电磁铁吸合,合闸开关才能动作。这一装置是为了防止停电检修时误合断路器。
6.3.4各种操作手柄的操作方向是怎样的?
①接地开关顺时针操作为合闸,反之为分闸。
②手车摇进为顺时针方向,反之为退出。
③紧急分闸操作为顺时针方向。
6.3.5紧急分闸应如何操作?
在电动无法分闸的情况下,如果需要手动将断路器断开,不需打开中门,只要将紧急分闸手柄插入开关柜中门下方左侧小孔,顺时针转动,即可分闸。
6.3.6下PT车操作时应注意哪些问题?
具有下置PT手车的开关柜,PT手车不采用摇进的方式,而是采用直接推入的方式。操作时应注意手车处于运行位置时定位片必须插入导轨定位孔中,手车处于试验位置时定位片也必须插入定位孔中。
6.3.7操作断路器时应注意哪些问题?
电动储能时,如果发现电机转动缓慢无力,应及时断开控制电源,检查控制电压是否正常。如果控制电压在正常范围内,则应通知厂家作进一步的检查。在电动分合闸时,如果机构不动作,应将手车退至试验位置,检查机构是否卡涩以及控制回路是否正常。切勿频繁操作分合开关,否则可能损坏分合闸线圈及保护装置。
二、几种避雷器、母分开关连接方式
(一)KYN型开关柜目前母线避雷器的几种连接方式、危险点分析和防范措施
变电站内母线PT和避雷器大都共同经过同一刀闸,这种接线方式在运行、检修人员中成为常识。但目前使用的KYN型开关柜,包括一些35kV落地式小车开关柜,却打破了这种常规,有不同的接线方式,如果不能认识和掌握,过多地受习惯性思维的左右,就可能产生操作、检修中的错误,甚至导致事故。
1、避雷器直接连接在母线上

这种方式避雷器与PT同柜体,避雷器安装在PT、避雷器柜的后柜门下部(相当于线路柜的电缆室),当PT小车拉出后,工作人员容易产生避雷器已经停电的错觉,打开后柜门对避雷器进行检修试验,造成触电。
防范措施:在避雷器柜门张贴风险提示牌,柜门用微机防误锁经过程序锁住(母线转检修或冷备用才能开锁)。
2、避雷器单独小车

这种方式避雷器与PT同柜体,避雷器小车在PT小车的下面,避雷器安装在小车上,拉出小车可以对避雷器进行检修试验。但这种方式,避雷器的后柜门内的静触头和引线仍然有电,仍有人员误入(如试图对避雷器接地引线进行维护检修)造成触电的风险。
防范措施:在避雷器柜门张贴风险提示牌,柜门用微机防误锁经过程序锁住(母线转检修或冷备用才能开锁)。
3、避雷器和PT共同使用一个小车

这种方式避雷器与PT同柜体,拉出小车避雷器与PT都停电,避雷器安装在后柜门的下部。这种方式的安全风险较小,但由于技术原因目前使用较少。
(二)母分开关的连接方式和安全防护措施
1、双柜体母分开关单元

这种形式有一个母分开关柜、一个母分刀闸(手车)柜,母分开关柜和母分刀闸(手车)柜之间的操作闭锁采用电气接线闭锁(无法实现两个柜的互相机械闭锁)。可以采取微机防误的辅助措施。微机防误在操作程序上规定两个开关柜的操作顺序,后柜门也要经过防误锁,在两个小车都拉出后才能打开柜门。
2、单柜体母分开关单元

这种形式少了一个母分刀闸(手车)柜,母分开关手车柜与另一段母线连接,通常从下柜后面经过另一段母线的PT、避雷器柜连接到母线上。母分开关手车柜和PT、避雷器柜的后柜门内都是母线设备,母线未转检修严禁打开,应加微机防误锁和风险提示。风险提示要明确告知两个柜后门内都是母线设备(是哪一段根据现场实际),母线停电才能打开。