我们承接了福建莆田张先生家的别墅图纸设计,这套4层欧式现代别墅,可谓是壮观!从外观来看,张先生应该是不大喜欢张扬。但是,你细细品尝一番,这套4层欧式现代风别墅,并不是那么简单!下图是我们与张先生沟通的截图。

莆田张先生
接下来,我们一起来看看这套壮观的4层欧式现代风别墅图纸。请大家细细品,仔细看,你会发现这套4层欧式现代别墅的精髓!

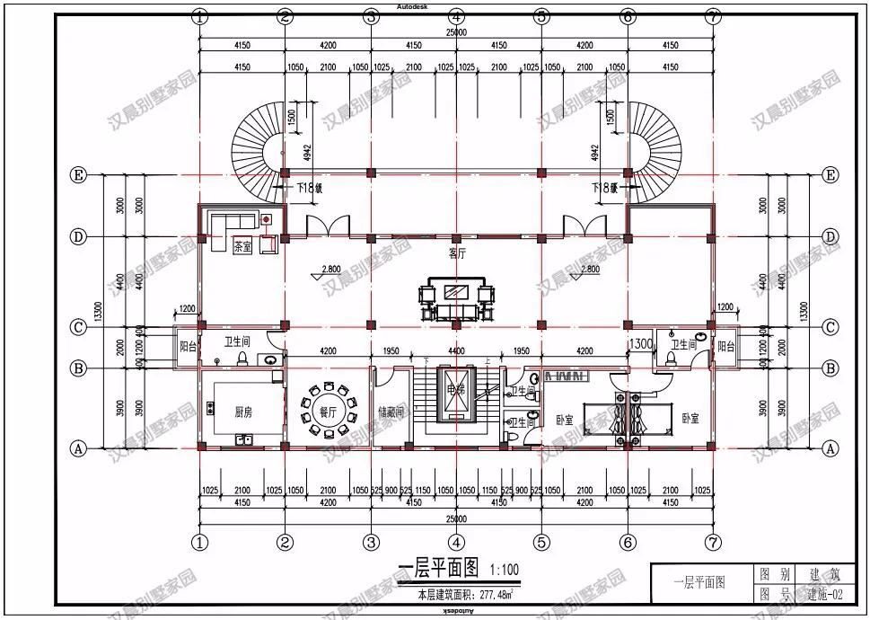
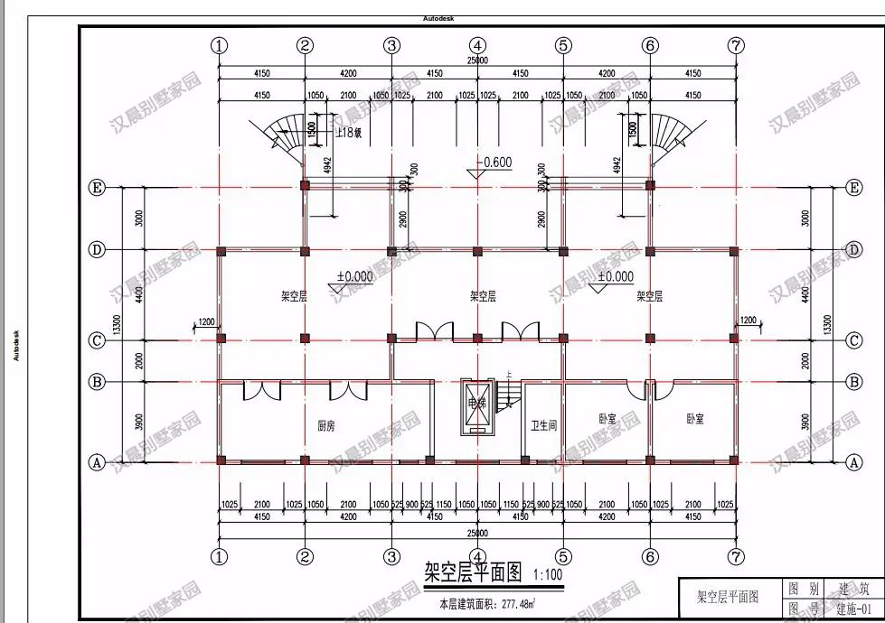
别墅图纸

别墅图纸

别墅图纸

别墅图纸
- 建筑面积:1109.92㎡
- 占地面积:277.48㎡
- 规 格: 13.3米x25.0米
- 建造预算:120万左右

别墅图纸

别墅图纸

别墅图纸

别墅图纸
想必大家看到上面的数据是惊讶的吧?数据如此惊人,别墅的气势当然也不会差。自行脑补一下,都会蹦出一个字——“壕”!好啦,今天的4层欧式现代风别墅图纸就给大家介绍到这里。喜欢的朋友记得转发哦,我们明天见~