

项目位于钱塘江南岸杭州萧山科技城,建设于科技城成立初期。科技城作为杭州拥江发展的重要节点,面对当时已经初具规模的钱江世纪城和刚刚获批的临空经济示范区,业主亟需为科技城建立窗口形象,为新区发展注入活力;因此业主对该项目的立意、形象、标志性报有极高的期望。在此背景及当下网红经济日益兴起的情境下,如何在限高制约下突出建筑标志性,打造一个充满人气、生活气的网红建筑成为设计主要思考方向。

△ 项目总平面图

为了迎合科技城创研创业的年轻受众群体需要,设计以“能量魔方”为设计概念,意喻创研创业的无限可能和年轻人的朝气活力。

建筑通过韵致的方块体量错落堆叠和夜景照明的线条勾勒,在杭甬高速侧形成充满科技感、未来感的24小时全天候的网红建筑形象,成为宣传科技城的闪亮名片。

塔楼立面肌理以“九宫格”为构架、以当地传统手工制品“花边”为母题,编织形成独特的立面肌理,适度体现了对当地文化语言的传承。同时设计注重第五立面的完整度,令整个建筑形象浑然一体。




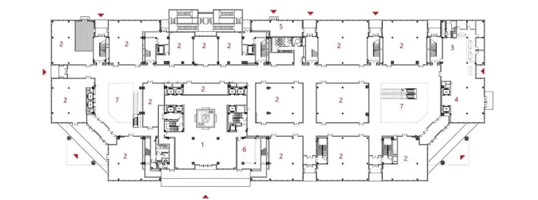
平面设计同样遵循“方”的母题,结合科研办公、创业服务、配套商业等主要功能,达成功能与形式的统一。裙房商业由若干个“方盒”组成,“方盒”与“方盒”之间的留白成为开敞面向城市街道的商业出入口。


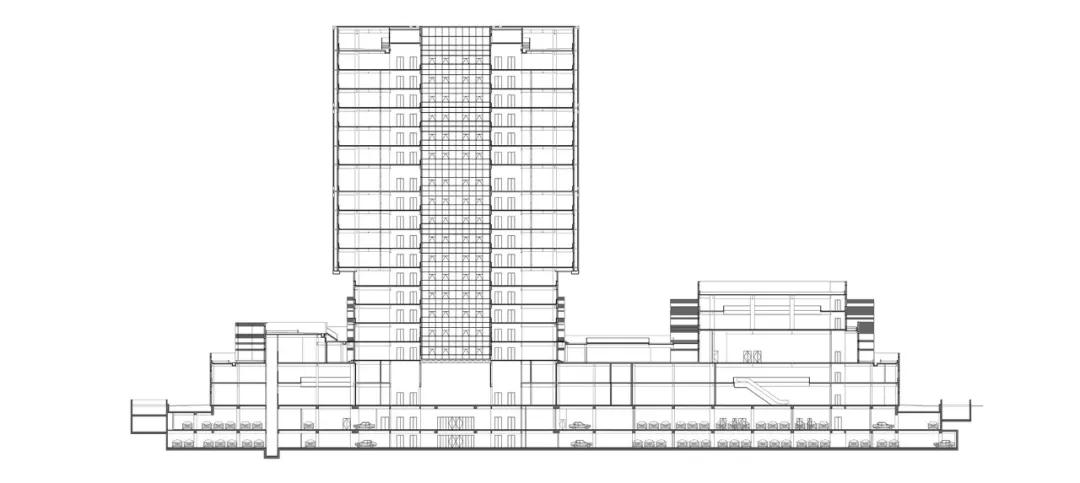
不仅积极呼应了传统建筑的街巷空间,而且串联内部一字商业动线,使得商业布局更明晰、高效、均好。上下层裙房之间通过方盒体量的错动自然形成屋顶的露台、天井、内庭等空间,极大地提升了商业的空间体验,也提供了更多的商业外摆拓展空间,创造了良好的商业氛围。塔楼建筑采用双层幕墙体系,保证了立面意趣和采光通风等使用需求的良好结合。裙房幕墙采用玻璃与多彩铝板两种材质,通过若干色彩的交替展现强烈的科技感和律动感。




设计广泛运用节能技术塑造良好内环境。塔楼办公平面以传统“四水归堂”为空间意向,在建筑内部形成80米通高内庭空间;结合合理平面进深的设计控制,使得办公物业、核心筒配套均获得良好采光通风条件。当门厅顶部玻璃天窗开启时,形成拔风效应,极大改善内部小环境。






“魔方”建成后,其立意与形象、意趣与实用、自然与节能等多方位的良好结合使其得到多方的好评,并获得“央视频”等多家视频媒体平台的关注和热播。它必将与科技城一同成长,共同见证亚运时代钱塘江南岸城市建设的宏伟篇章。
项目名称丨萧山科技城创业谷
建设地点丨萧山科技城耕文路与钱农东路交叉路口
竣工时间丨2020年5月
用地面积丨16667 ㎡
总建筑面积丨79134 ㎡
方案设计丨陈建、陈璐、洪筱荃、陶竞进、黄武、尹雄、孟亮、汪波、吴彩飞、张敏敏、姜浩、杨欣、莫云菲
施工图设计丨杭州国美建筑设计研究院
建筑摄影丨赵强
本文资料来源:UAD浙大设计,版权归原作者所有,如有侵权,请联系我们