近日
泉州多个纯新盘传新动态
涉及晋江(市区、紫帽、西园、金井)、安溪
最高限价14959元/㎡
具体信息一起来看看

晋江紫帽
Part 1
菁华·右文府
地址:晋江市紫帽镇星霞东路旁
楼盘动态:2019年11月20日,新佳园以总价4.01亿竞得紫帽片区2019-26号地块,土地面积45573㎡, 毛坯限价12997元/㎡ 。
据晋江自然资源局发布信息显示,菁华右文府建设工程规划许可已获批。项目总建面137064.42㎡, 规划10栋22-25F的高层,总户数1032户,户型规划建面约65-120㎡。

项目近期也已于泉州公共资源交易信息网发布《菁华·右文府施工监理招标公告》。 据悉,菁华·右文府有望于近期正式公开,届时将会有更多相关信息释放。


前期释放效果图,仅供参考

项目大致区位图
菁华·右文府位于晋江市紫帽镇星霞东路旁, 周边多维立体路网环伺,可快速直抵泉晋双市区,区位优势显著。项目与晋江学校(清华附中合作校)仅一路之隔,据悉,晋江学校由清华附中和晋江市合作创建,占地约430亩,总投资16.9亿元,可容纳7000名学生。其中,小学部、初中部均已投用,高中部则将于今年秋季“亮相”。

学校效果图
价格:毛坯限价12997元/㎡
晋江西园
Part 2
天著云溪
地址:晋江西园街道烧厝社区、砌田社区
楼盘动态:2021年12月14日,晋江兆瑞建设有限公司竞得位于晋江西园街道烧厝社区、砌田社区P2021-7号地块, 毛坯销售限价13927元/㎡。

近日,泉州市公共资源交易网发布《天著·云溪勘察设计》。根据招标公告,项目用地面积约90109平方米,总用地面积约90109平方米,用地性质为商住用地,总建筑面积约266557.82平方米,地上建筑面积约201959.82平方米,地下建筑面积约64598平方米。
主要建设内容包括:建筑、结构、绿色建筑、室内装饰、公共配套、基坑、边坡、园林景观、电气、智能化、给排水、暖通、消防、人防、电梯、空调、有线网络、通讯网络、管道燃气、室外配套等。投资总额289400万元,其中工程费用限额90800万元。

项目周边道路通达,出行便利,与城市中心生活圈相连。旁边为晋江国际会展中心,周边教育配套完善。
此外,该片区还有一个项目尚未入市。2021年12月9日,晋江兆瑞建设有限公司竞得位于晋江西园街道砌田社区P2021-6号地块,毛坯销售限价13409元/㎡。

价格:毛坯限价13927元/㎡
晋江金井
Part 3
翰墨·海韵学城
建·乐居春华
地址:晋江金井镇盐场
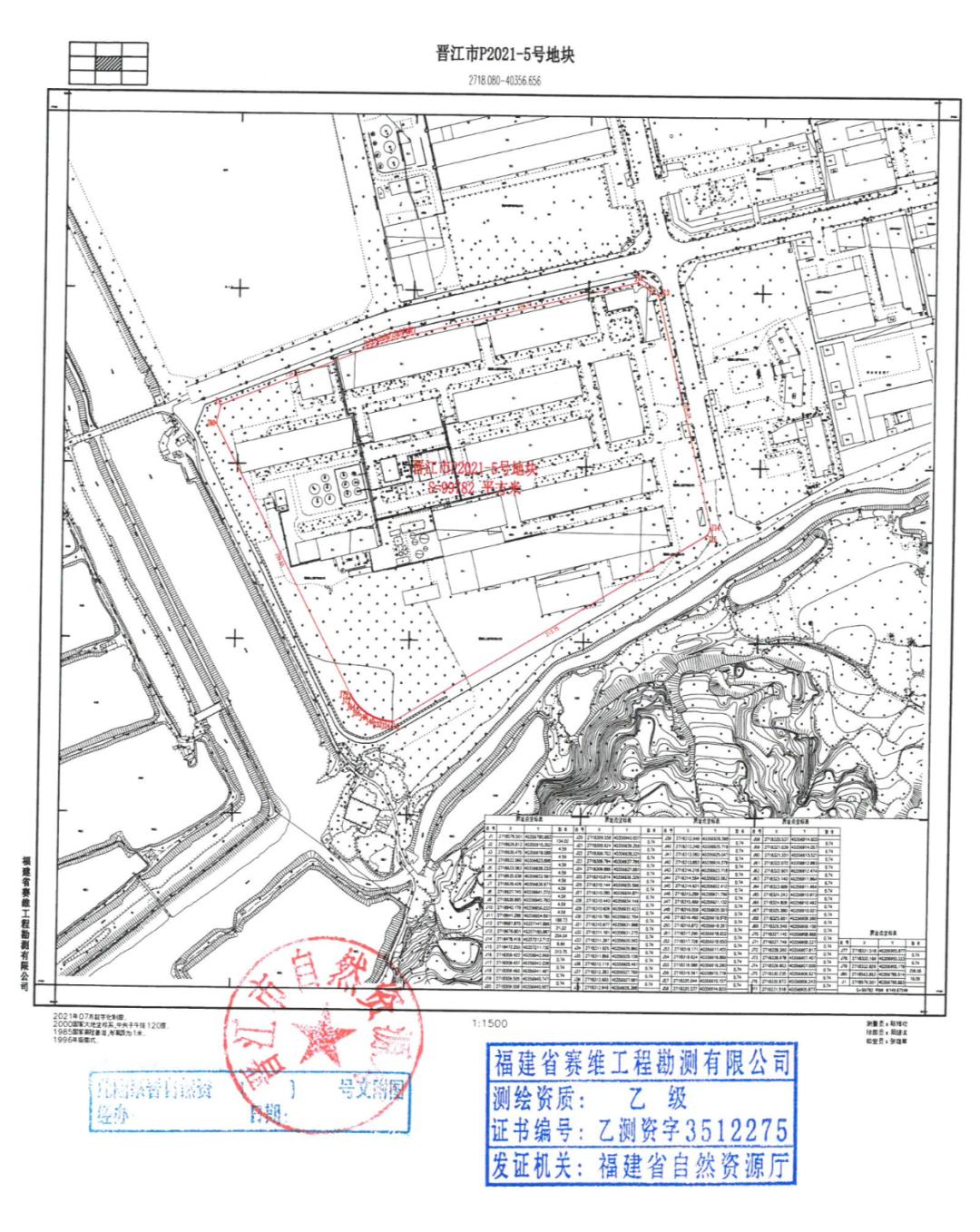
楼盘动态:2021年9月29日,晋江滨江商务区开发建设有限公司以总价3.8亿元竞得位于晋江金井镇盐场的P2021-5号地块, 毛坯销售限价7810元/㎡。现项目定案名为“翰墨·海韵学城”。

近日,泉州市公共资源交易网发布《翰墨·海韵学城勘察设计招标(招标公告)》。
根据招标公告,总用地面积约99782平方米,用地性质为居住用地、服务设施用地,总建筑面积约304914.2844平方米,1.0<容积率<2.1,10%<建筑密度<22%,绿地率≥30%。
投资总额:人民币约148924.25万元。其中,工程费用限额人民币72917.42万元。

价格:毛坯限价7810元/㎡
晋江市区
Part 4
昇路艺璟
地址:晋*青江**阳街道晓升社区
楼盘动态:2021年6月30日,泉州昇路房地产开发有限公司竞得位于青阳街道晓升社区P2021-29号地块, 毛坯限价14959元/㎡,项目定案名为[昇路艺璟]。
项目土地面积27210㎡,其中商业、办公部分计容建筑面积不小于地块总计容建筑面积的35%,且不可分割销售办公部分计容建筑面积不小于21000㎡;此外该项目需代购部分用于安置。
据悉,项目可售商品住宅约3万㎡,共计231套住宅,户型规划为140㎡以上的大户型,预计10月或11月开盘。

项目效果图(图源:高楼迷)
昇路艺璟位于晋江中心区长兴路与泉安中路交汇处,毗邻宝龙广场、世纪公园等成熟配套,地段优势明显。

项目大致区位图
据悉,项目小学划片晋江第二实验小学晓聪校区,初中摇号晋江一中/晋江实验中学(具体以招生政策为准)。
价格:毛坯限价14959元/㎡
Part 5
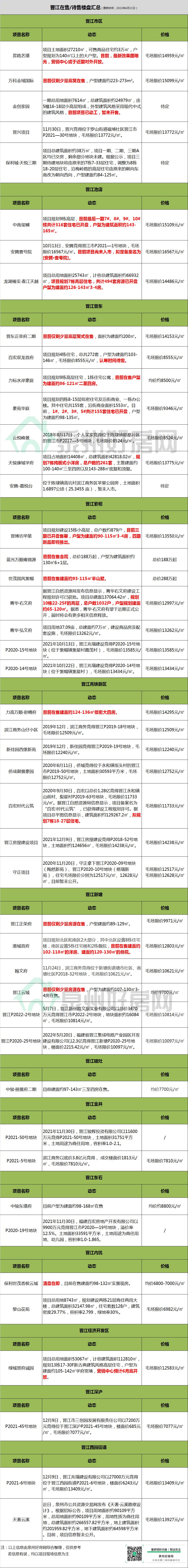
晋江在售、待售楼盘汇总

安溪
Part 6
隆恩瑞府
地址:安溪县城厢镇路英片区
楼盘动态:2022年3月16日,隆恩集团以6.37亿竞得安溪县城厢镇路英片区12-P-02地块,楼面价约6161元/㎡。
如今, 项目拟定案名为「隆恩瑞府」 ,位于泉州市安溪县建安南路路英片区,地处安溪县妇幼保健院北侧。
项目交由隆恩建工承建, 规划建设14栋高层、7栋配套建筑以及地下车库,总用地面积约4.6万㎡,总建筑面积约14.5万㎡。
该项目的主要子项为14栋15F-17F高层建筑,7栋单、多层配套建筑及地下室,未来商品住宅(毛坯房)最高销售均价为12075元/㎡。

项目效果图
隆恩瑞府是隆恩集团深耕安溪十五年的又一力作,长久以来,隆恩集团得到安溪人民的高度关注和认可,持续开发中国茶博汇、隆恩阳光城丽景湾、隆恩公馆、隆恩华城、隆恩悦城、隆恩樾府等多个优质项目。
此番,隆恩集团再度回归居住本质,以生活至上为第一要素,匠心打造低密度高品质住宅社区,着力将安溪瑞府项目打造成精品项目。

地块实景图,来源刘晓程摄(2022.4)
价格:毛坯限价12075元/㎡