永不退潮的别墅潮流,二层带露台的舒适
生活被治愈的瞬间,就在于露台的休闲。摆上一张小躺椅,放上一个小茶几,欣赏欣赏户外风景,品品茶,身体瞬间放轻松。放上一个简单的烤炉,就是小型的露天烧烤派对。或者种上些花花草草,每天醒来在露台呼吸,满满的花香,这样的生活实在是惬意。各位难道不想试试么?今天给大家推荐几款又好看又舒适地带露台二层别墅,一起来看看吧。
别墅图一:农村二层仿古尖屋顶别墅设计图
外观古朴耐看,这款别墅设计图有点徽派乡村建筑的意思,但又与其不同,别墅外观素雅大气,没有复杂的线脚装饰,通过外墙色彩和门窗的巧妙搭配,使得建筑施工方便、造价经济的同时造型美观,布局方正舒适,空间利用率很高。

别墅效果图
占地面积:8.3m*10.6m,87平方米左右;
建筑层高:二层;
建筑高度:8.9米(含屋顶);
设计功能:
一层户型:客厅、厨房、卧室(带卫生间)、卧室;
二层户型:卧室x4、卫生间、露台;

鸟瞰效果图

背面效果图

一层平面图

二层平面图
别墅图二:本方案两个户型,农村两层新中式自建房设计图
带双厨房(或厨房与火灶房或厨房与锅炉房),可以根据实际情况分配,气质典雅端庄。该别墅布局极具考究,隐私性强,各个空间分配均匀,一层两个卧室内卫,二层休息空间多,能满足亲朋好友待客需求。整体反复打磨,只为创造出更美好的生活空间。

别墅效果图
占地面积:13m*12.8m,128.89平方米左右;
建筑层高:二层;
建筑高度:9.449米(含屋顶);
设计功能:
一层户型:客厅、厨房(带土灶房)、餐厅、卧室(带卫生间)、卧室、卫生间;
二层户型:起居室、卧室x3、卫生间x2、露台;

一层平面图

二层平面图
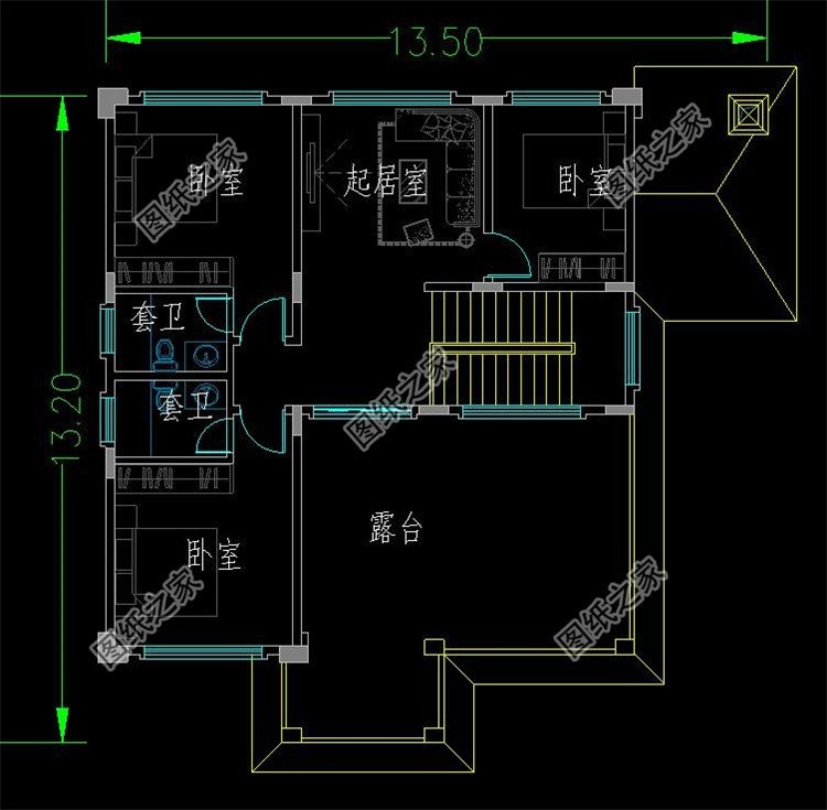
方案B:
占地面积:13.5m*13.2m,140平方米;
建筑层高:二层;
建筑结构:框架结构;
主体造价:23万
建筑高度:9.37米(含屋顶);
设计功能:
一层户型:客厅、餐厅、厨房、土灶、娱乐室、卧室(带卫生间)x2、;
二层户型:起居室、卧室、卧室(带卫生间)x2、露台;

别墅效果图

二层平面图

一层平面图
别墅图三:简单农村二层自建房子设计图及外观效果图
这是一栋比较接地气的户型,简欧风格,清新时尚,简约大气的外观,实用简单的布局,二楼露台上观景以及乘凉、阳光沐浴都不错。造价经济,适合大多数家庭建造。采用多窗设计,增加了采光和透气度,提升了居住的舒适程度。

别墅效果图
占地面积:11.46m*11.36m,124.53平方米;
建筑层高:二层;
建筑高度:9.525米(含屋顶);
设计功能:
一层户型:客厅、厨房、餐厅、卧室(带衣帽间)、卧室、卫生间;
二层户型:卧室(带衣帽间)、茶室、卧室x2、卫生间、露台;

一层平面图

二层平面图
以上几款就是今天的推荐内容了,有需求的朋友可以留意一下哟。