
前 湾 金 融 总 部 大 楼 投 标 方 案
10 Design 为前湾金融总部大楼提出的设计方案,从一系列叠级的流水得到启发,定义出在深圳城市景观中这一全新的塔楼 。
当流水叠级流入城市广场中时,塔楼形态向内拉以表现基础结构。这个基础结构营造出非常简洁优雅的柱廊结构,可将主要的城市广场通过柱廊过渡到办公大堂。
设计团队为新兴的前海合作区创造了一个强有力的,简洁优雅的陈述。


在考虑21世纪的现代办公场所,在设计上的许多方面我们都必须仔细考虑。我们将健康福祉作为我们构思设计方案的基础。塔楼设计的概念可以看作是城市中的垂直社区,其*共中**享一系列相互联系的空间,这些空间将工作社区聚集在一起,并更大程度地激活社交互动,更大程度地鼓励人们来的这里,享受 CBD 中这一全新的环境。


以流水塑造强而有力的建筑形态
前湾崭新的金融总部的形象传达出稳定,强有力和增长的形象。流水的概念启发了我们,而流水这一概念也与中国文化的美好寓意紧紧联系在一起。
源于流水的概念,以及流水流入建筑底部的城市广场的方式。我们在城市景观中塑造了非常具有冲击力的形象。
实际上水是由一系列的层次所组成, 我们将玻璃以及精致的线条,形成质感,在塔身上流淌。


竖向结构 创造开放的城市广场
前湾金融总部的竖向结构的力量,稳定与大气,与首层新的城市广场,形成城市环境中的对话,同时也打造了优美的柱廊骑楼结构,将人们引入广场空间中。
新的拟建金融总部所在基地十分重要。它在总体规划中占据了 一个重要的城市转角。正由于这个位置,我们寻求创造一个新的公共空间,一个开放,显眼的,可渗透的城市广场。因此当塔楼的结构往下到达这个新的城市广场中,我们选择去探索透明与可见性的想法,同时将空间回馈给城市。
我们创建的这个新城市广场被延伸到大堂的空间中去,大堂空间本身要被视为大楼整体概念的延伸。



融合空间 提升联繫
我们需要将活跃的商业餐饮空间考虑整合在一起,所有这些空间不仅为塔楼内办公人群使用,同时也对外营业的商业将激活街道空间与城市景观。项目商业空间在多个层次与更广泛的城市空间联系。
在负一层,商业将直接与地铁相连,这将引入大量人流进入大楼,同时在一层,城市经过新的塔楼结构融入广场。同时在塔楼往上,商业将在3层通过连桥与更广阔的城市环境相连。





设计团队建议选择采用偏心筒的布局方式,这将为办公空间提供更好的连接性,同时提供更好地享有海景视线的机遇。我们认为这对于基地是更好的解决方式,偏心筒布局不仅有助于营造工作场所与社区的归属感,同时增强工作环境的多样灵活性,同时更助于团队间的交流。
设计团队与 Ellioth 团队合作,採用低碳的设计,于立面结构内融合自然通风。南方的核心吸收大部分日间的热量,存于外牆安装的光伏电池,并转化于可再生能源。
设计亦採用海绵城市的原则,减少水源流向城市周围的地方。



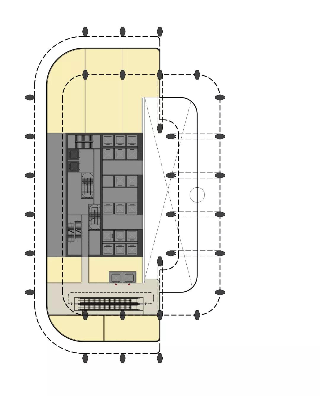
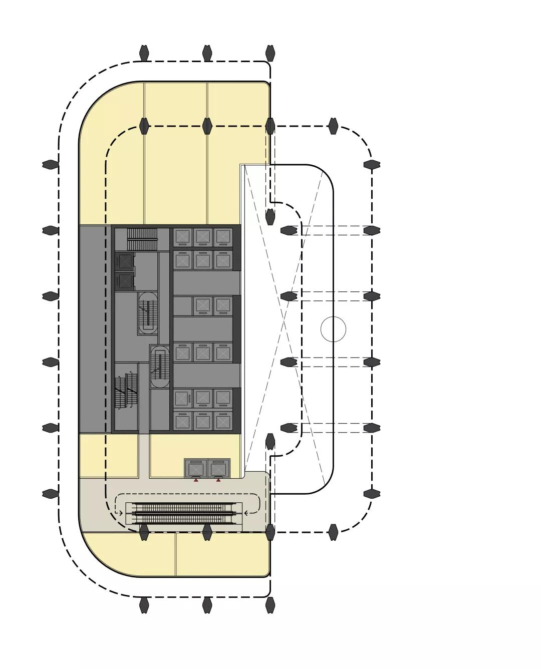
项目图纸










总体规划图和 B2-L8 图纸
項目信息
项目类型 | 办公
占地面积 | 6,872
建筑面积 | 93,700
服务范围 | 建筑设计﹑景观设计﹑CGI 电脑成像
状态 | 设计于 2021 完成
团队信息
设计合伙人 | Nick Cordingley
项目合伙人 | Edmond Lau
建筑团队 | Mohamad Ghamlouch, Yu Shan Wu, Hallen Deng, Pranav Chahande, Cat Zhang, William Li, Christie Yeung, Ksenia Dyusembaeva
CGI 团队 | Peter Alsterholm, Yasser Salomon, Henry Han, Adisak Yavilas, Lulu Guo
资料来源、版权所有:10DESIGN(拾稼)建筑设计