人们喜欢原木风,
大概因为这是一种兼具质朴与奢华的风格:
质朴在于,原木原始生命力的纯粹;
奢华在于,在钢筋水泥的城市呆久了,原木能把大自然请回家。
屋主Summer的原木之家,就像自然在开口呼吸。





▲
屋主:Summer&大鑫
面积:70㎡
花费:22w
坐标:重庆-渝北
改造前:
-

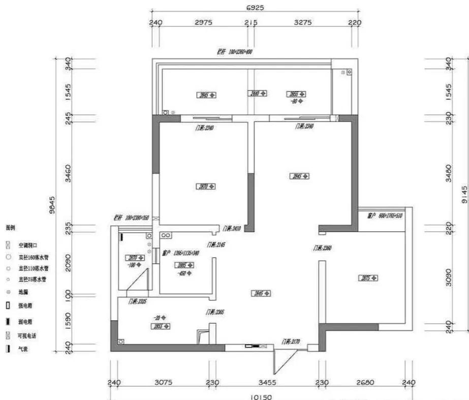
▲
原始户型图
房子原始户型的最大亮点,在于有一个贯穿客厅和主卧的超大阳台。
这也是Summer当初看中这个房子的原因,未来的新家,她可以尽情实现客厅带茶室、主卧带书房的构想。
改造要点:
Summer的爸妈和公婆都不在身边,整套房子完全是她一个人拿主意,避免了两代人的冲突。因为没有考虑要小孩的事,父母也只是偶尔来,所以设计完全从两个工作很忙的人生活角度出发,在实用基础上最大限度兼顾颜值。
格局上,大门和玄关不好设计,餐厅四面门太多,墙被割裂成很多区域,不好利用。
风格上,刚开始装修时,Summer的喜好就很明确,不一定非要日式风或北欧风,但是一定要原木色+白色+灰色这样饱和度很低的房子。
改造后:
次卧和主卧都剃了半墙,为柜子争取了更多空间。

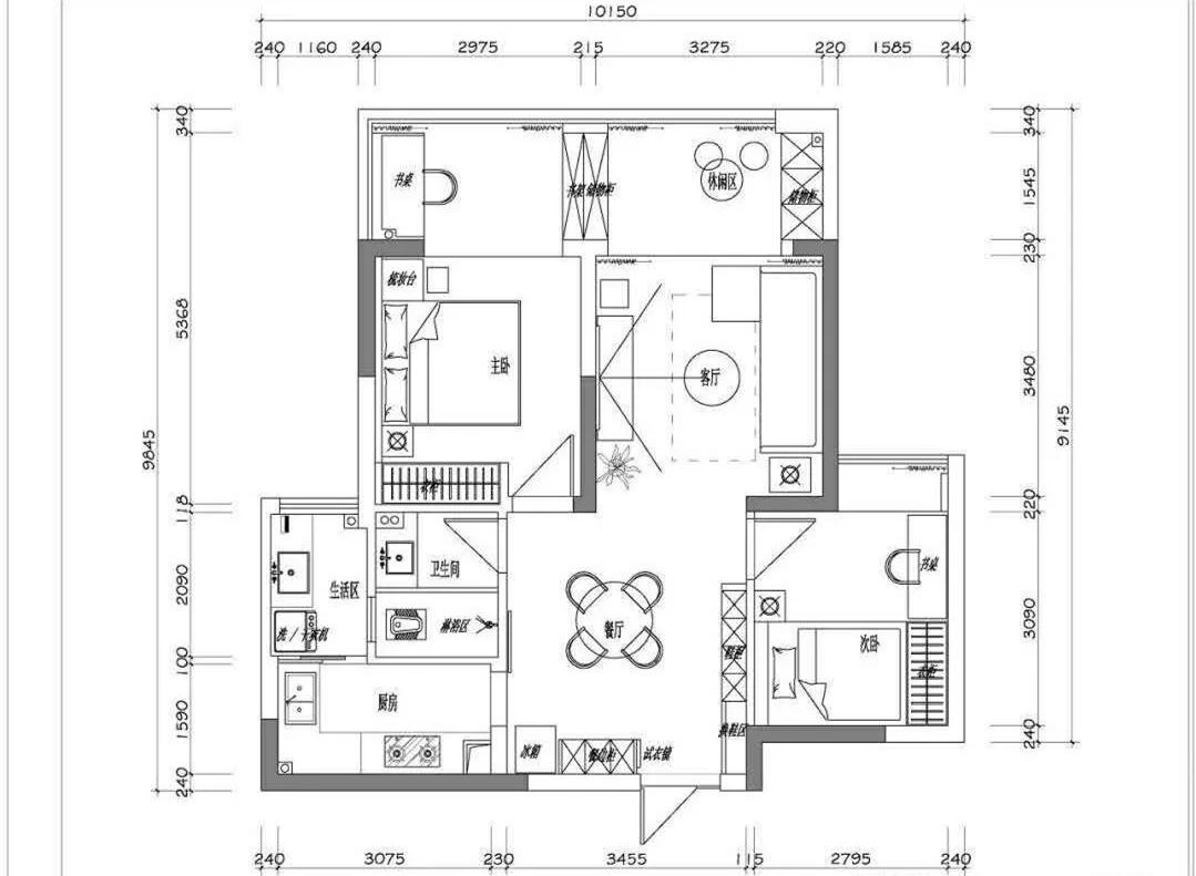
▲
功能布置图,后期基本没有改动

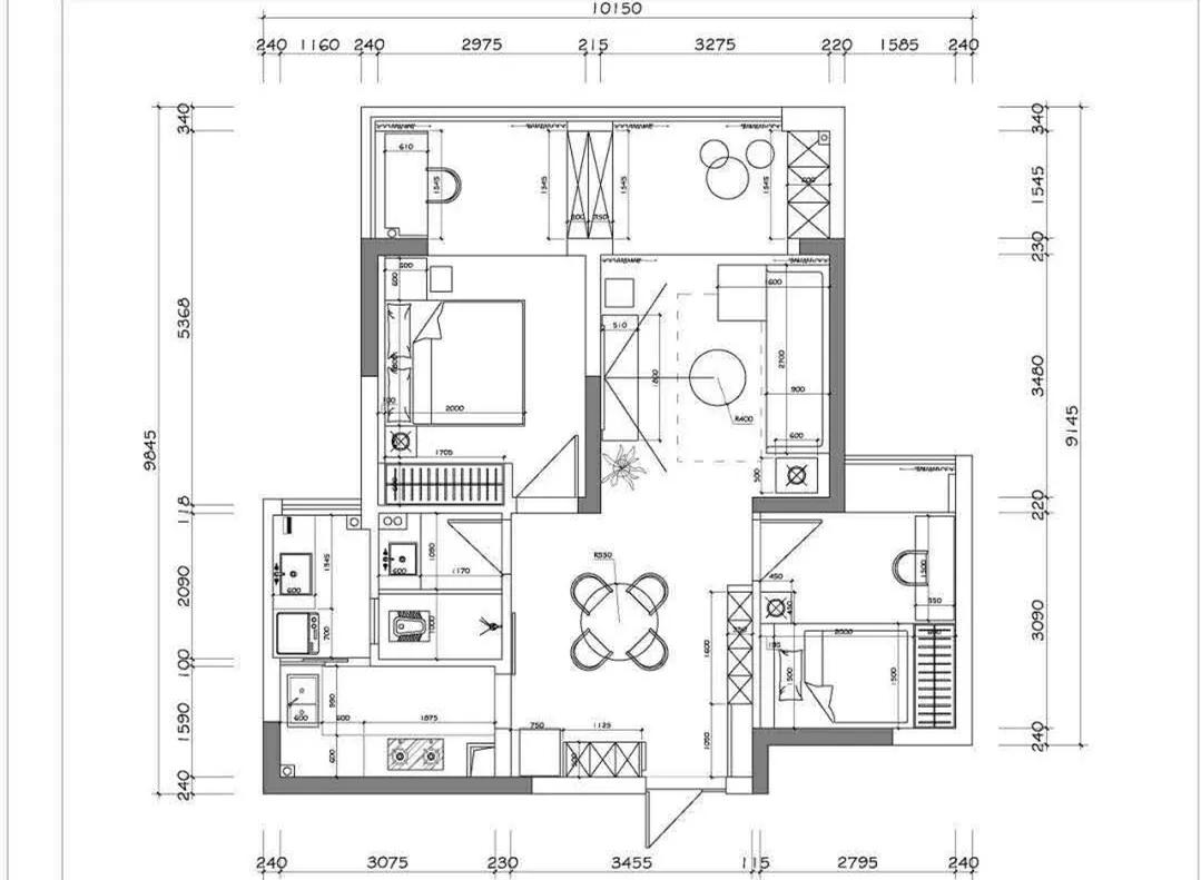
▲
家具尺寸图
家具尺寸对于小户型来说非常重要。Summer曾经去过一个小户型的朋友家参观,家具的尺寸都过大,结果把整个空间挤得不伦不类。
所以,Summer学到的经验就是,一定要实地量好尺寸,严格按照尺寸买家具。插座开关、家具位置和尺寸,Summer都和设计师规划好,然后直接按照尺寸买。


Summer家没有严格意义上的玄关,设计参考逯薇的《小家越住越大》,分为储鞋区、挂钩区、换鞋区等,Summer个人觉得这是最科学的设计。
挂钩区在进门右墙上安装一些挂钩,用来挂包包、衣物,一个顶天立地的鞋柜用来储鞋,目前只有右下方放了部分鞋,左上长条空间用来放吸尘器、挂烫机等东西。对着穿鞋区域的墙上,有一面穿衣镜,方便出门时整理仪表。



-
安装谷仓门的时候,师傅强烈推荐Summer装个阻尼器,所以她在网店搜寻阻尼,当时店主建议她不要安装阻尼,拉起来会比较费力,实际安装后的确比较费力。不过Summer老公大鑫说,装了阻尼拉来拉去的时候有缓冲,他觉得这样更好。所以这里提醒大家,安装谷仓门时要不要加阻尼,一定要结合自己的实际情况和接受度。
另外,Summer也用过来人的经验建议大家,谷仓门轨道安装好后一定要用东西包好,否则后面刷漆的时候沾了很多腻子墙漆之类的,虽然有办法弄掉,但比较麻烦,Summer现在就是懒癌发作,并没有心思清理。卧室门把手和门吸,也是同样建议。

-
在进门左边做一个中空的餐边柜,留出冰箱的位置。但Summer现在感觉冰箱四周的空间有点留小了,视觉上有点逼仄。餐边柜的中间区域Summer建议预留一根电线装感应灯,方便泡茶泡咖啡采光,现在她只能购买加插线款的了。
餐边柜上,雀巢胶囊咖啡机是Summer老公大鑫的最爱,1分钟一杯咖啡,味道媲美星爸爸,但一杯成本大概只需6、7元,他没事就会关注一下胶囊打折的信息。

▲
左边这面不是柜子,是穿衣镜的反射
一桌配四椅,Summer和大鑫组装了一两个小时完工,成就感满满。对于桌子的造型,Summer觉得,还是圆桌更适合中国人的饮食习惯,不占地儿、夹菜方便,她亲测直径一米的圆桌可以完美容纳8个人一起吃饭。吊灯的位置,高桌子1m,不过Summer觉得还可以往下一点,比桌子高70~80cm更适合。


-
客餐厅区域都没有吊顶,为了隐藏电线,简单走了一圈边吊。无主灯,靠沙发墙和电视墙两边用射灯照明。
电视用可移动壁挂架挂起来,可以左右移动。电视墙预埋了一根管子在墙体里,线从管子里穿出,一头在电视后,插座在电视柜后方,这样电视周围干净清爽,没有乱七八糟的线。电视柜旁的绿植是仿真的,室内养大型植物,Summer没信心把它们养活。

客厅和阳台茶室的横梁间是一拖一风管机的位置,检修口和下风口留在一起,避免了传统一个正方形检修口加一个长方形风口的不协调感。用一层白纱隔开,客人来打地铺的时候可以遮出一个相对私密的空间,拉开又能形成一个类似于照片景框的效果。

电视柜的圆形镂空门很有特色,为了颜值Summer并不打算放东西在这里,选了一个小花瓶当微观景色。

大茶几比较笨重、又占过道,所以茶几Summer选的小巧款,完全够用。
沙发造型Summer买了最喜欢的转角沙发,偏软坐感,舒服又有支撑刚刚好,贵妃椅简直是重庆人安逸的法宝。沙发的选择要注意客厅的宽度,太长的会挤占过道,Summer家客厅3.2米宽,贵妃位做了1.6米,刚好一半。

边几可爱有特色,上面是红橡木壁灯,之前是一款长臂壁灯,承重不行掉了,换上这款不需要太多受力的。

▲
绿色挂画、绿色挂毯、绿色抱枕呼应


-
Summer家把以前超大阳台的一部分封进来做了茶室,结果成为全屋人气最高的地方和最爱的地方。

地台卡座,铺上剑麻地毯,放几个*团蒲**,下面配几个收纳箱。地台高15cm,收边最开始让师傅做的45度碰角,后来发现不好:一是边太锋利,稍微用力碰到了,可能立马就是一道血印子;二是边会被踩坏。后来大鑫用之前剩下的扣条,用玻璃胶给地台装了扣条,就好多了。

-
把窗帘换成白色实木百叶窗,拉平了可以直接用吸尘器吸,比窗帘更好做清洁。


-
角落一个落地花瓶和枯枝,禅意满满。

-
晴天,下午五六点,可以看到百叶窗最灵魂的光影折射。

-
暮色开始四合时,又别有一番沉静的美。

-

-
L型橱柜,做了高低台,装了分体集成灶、西门子洗碗机。韩国大宇迷你微波炉,可以直接吊挂设计,但大鑫总觉得微波炉吊挂在橱柜下面不安全,于是去宜家买了搁架。水槽上方做了隔板,只做装饰,用膨胀螺丝固定。

-
上部吊柜,预留装感应灯的灯线,很实用。Summer买感应灯的时候没考虑到微波炉,其实短一点的更好,因为微波炉上面并不需要灯带。这款感应灯有变压器露在外面,推荐大家购买有内置变压器的,比这个更好看。
插座带开关款,用电饭煲等电器的时候,不用频繁插拔插头。推荐用在一些需要常年插着插头又经常开关的地方。


-
边吊凹槽里装了灯带,Summer建议大家,有灯带的地方还是装T5灯管,因为灯带比较软,角度不固定,想要把灯光调整得很均匀比较困难,但灯管就不存在这个问题,不过买灯管要算好尺寸,各种长度各要多少,因为灯管不能像灯带那样用到哪剪到哪,得刚刚好才行。
主卧木地板上墙高度1m3,不过Summer实际使用起来觉得1m-1m1更合适,矮一点应该更好看。安装顺序是先木工打基层,然后和地板一起安装。
床定做没有靠背的四方箱体床,床垫直接放在上面。床头Summer特意买了只有60cm宽的梳妆台,完美契合卧室。床头柜对面墙边放一个梯子式挂衣架,节约了很多空间,背靠墙的地方确实会有印子,不过平时看不到。

-
床头灯颜值够,灯头可以自由调,但调节杆只能先拧松再调节,不过总体瑕不掩瑜。双控开关一定要到位,避免出现还要下床关灯的尴尬。
另外,Summer强烈推荐带USB的插座,她家所有床、沙发、休息区等地方都留了一个USB插座,可以随时随地充电,尤其客人多的时候,优越性立现。安装方法和普通插座一样,电工都会,只需自己买带USB孔的就可以。


全屋书桌和柜子都是一起定制。

▲
仿真绿植


深蓝色调的次卧,榻榻米高度不够,用不了弹簧床垫,于是买了7.5厘米的乳胶床垫,也很舒服。

长臂台灯慎用,本来买了两个,结果只有这张大长桌才适合,桌子小点直接一臂伸到另一边去了,照不到中心。


装在镜子前方的吊灯虽然逼格和颜值有了,但照脸还是不那么方便,得人往灯前凑,所以镜前灯Summer还是建议装在镜子上方往下打光的灯。镜前灯选色温4000-4500k的照出来更真实,太白或者太黄都不好。
卫生间收纳的心得就是可以离地的都离地,可以统一瓶子和颜色的就统一,看上去神清气爽也好做清洁。
-

屋主说:
-
仪式感是个很奇怪的东西,住进自己喜欢的房子,人都不知不觉变得更加热爱生活起来。
『好物清单』
-
