看多了都市豪宅大院,今天带大家体验一把小城慢生活。
这是一个大学老师的家,简简单单却白看不厌。

在榕城福州,这里的生活节奏较慢,喝茶是闽南人特有的习惯,有朋友来先泡上一壶功夫茶,品点小食、放上点音乐,谈天说地,一坐就是一下午。
房屋信息
项目坐标:福建福州
房屋类型:联排小别墅
使用面积:200㎡
房型结构:3层半带阁楼
出处:casacy
设计:陈禹
摄影:雨叶
关于主人
THE OWNER

屋主静(右)是名大学老师,喜欢白色、简洁的事物,这房子她和先生、女儿同住,平时爱喝茶、弹琴、画画……装修之前,男主人只是要求实木、环保就好。
陈禹(左)福州一名低调的独立设计人,十几年来深耕于平凡的私人住宅,熟谙施工和细部工艺,善于材料运用和家具DIY,风格自成一派,不浮夸、不炫技,淡雅却动人。
静和设计师认识多年,上一次装修由于档期遗憾错过,这一次终于等来“大师”,并收获了梦想的家。
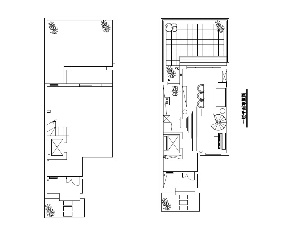
一层房型图

改造要点:
1、 北浴室改为入户玄关换鞋处
2、 客餐厅合为一体,设计成喝茶区
3、 原餐厅改为钢琴角
4、拆掉原一二层楼梯纳入厨房空间,在另一侧加装旋转楼梯
客餐厅融进茶室,打造核心功能区


一楼最核心的区域,是这个喝茶区,因为常规的沙发围坐方式不适合她们家,故设计师独具匠心地把客厅和餐厅合二为一,功能全部融进这个喝茶区。
一张实木长茶桌,靠墙一侧用中式“烟榻”代替沙发,另一侧则摆了四张方凳,活动更自由。有朋友来,很自然地就坐下来喝茶聊天。

一二层之间用白色旋转楼梯衔接,空间一下子就生动起来。

围绕女主人的喜好,墙面、灯具、窗帘、楼梯大量的白色,以不同表情呈现在空间中。
这里不仅是最好的聚会场所,每日家里人回来,孩子可以在此做作业,妈妈有时忙着备课,爸爸在一旁喝茶看报,然后一起用餐,是最聚人气的空间。
最大亮点
光影随时间推移而变幻

由于喝茶区挑高到二层,房子原本的采光就非常好,再加上设计师一些独特的手法,让空间在不同时间段有着丰富的光影变幻。

光影细节

① 四个小壁灯,通过控制灯头方向,打出不同层次的光

② 白色旋转楼梯的加持,随着光照的变幻,投射出丰富的光影

③ 电视墙只是加了点玻璃砖,一下子灵动起来。
餐厅变成音乐角,音乐与光影交织

原来的餐厅位置如今变成了女主人的钢琴角,妈妈弹琴,爸爸还可以躺在一旁静静欣赏。


电梯右侧是原楼梯位置,如今给厨房增加了一块面积,正好放下双开门大冰箱。
厨房

看似平常的小方砖,都采用手工砖,每一块都有自己的独特表情。
二楼夹层房型图

孩子的学习角



旋转楼梯上来就是一个孩子的书画区,给女儿一个习字画画的安静角落。

为什么同样是白色的房子,这个家气质就是那么独特?
秘诀原来在选材里,设计师用了一种特殊的蛋壳光乳胶漆,它质地温润、哑光,独有一种安静的味道。
和室——更私密的会客室


设计师曾在日本留学多年,对于和室的拿捏已经驾轻就熟,悬空储物柜底部可以摆些茶器,白色风琴帘带来柔和舒适的光线,白天夜晚都独具风情。定制榻榻米来自全鸿和室,购于福州红星三迪商场。
这里会招待一些更要好的朋友,一个更私密的聚会空间。

主卧,白色功能套房


主卧设计成一个功能套房,除了买了张成品床,其余家具都是定制,南北两侧的飘窗利用成卡座,设计了书桌、储物柜,和步入式衣帽间。


床头背景墙用多层板做饰面,看似简简单单,却蕴含了细腻的质感。衣帽间隐藏在门后,不特别提醒几乎觉察不到。

偶尔处理一点工作,每日梳妆都可以在这个区完成,定制的抽屉不占地,还非常实用。
浴室


同样是白色,却采用灯笼手工砖铺就,每一块都有蕴藏着匠心,埋墙式水龙头早在水电工程时就埋下伏笔。

儿童房连接阁楼,空间利用太赞

儿童房位于顶楼,床做了实木定制充分利用紧凑空间,考虑到孩子成长大量的储物需求,定制了一顶天立地大书柜。为了顶楼隔热性更好,斜坡顶还做了木质饰面。


这一头两侧做了超大衣柜,门把手隐形处理,看起来若有似无,可真的超级无敌实用。白色定制柜选了博洛尼,也是来自红星三迪。

最妙的是右侧上方小阁楼,原本是在门外挖个洞爬小梯上去,设计师将楼梯纳入室内,安排在衣柜旁边,上阁楼变得非常方便。
购买清单
SHOPPING LIST
▼
乳胶漆:宣伟
茶桌:藤藤田
马桶:科勒
花洒:TOTO
地板:瑞士进口德高
定制柜:博洛尼白色烤漆柜
厨卫瓷砖:手工砖