喜欢木质的感觉,喜欢弧形的线条,
喜欢质感的东西,喜欢乡村田园的气息。

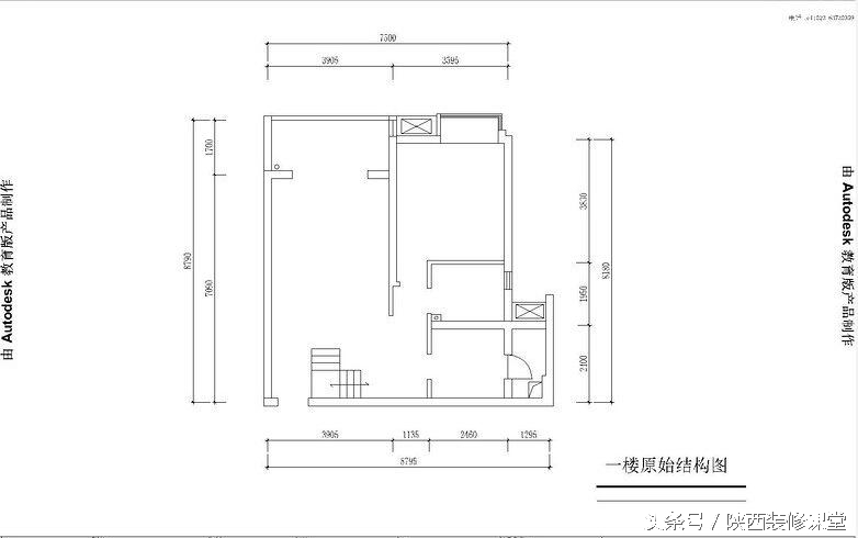
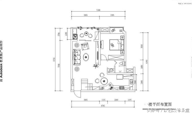
户型图



客厅的顶是做的坡顶哟

客厅背景墙的墙纸是设计师在网上选的,店主说是英国代购回来的,叫桑德森,等了一个多月才到,看起来确实很霸道

客厅就多来几张

沙发是定做的呢

小斗柜是在网上买的,超级喜欢,质量也不错

壁炉加电视墙


原始的图跟现在的图做对比
厨房半开放式

厨房现场做的橱柜,然后上漆

美貌的餐厅

楼梯是我们家装修最大的亮点

所有东东,包括基装,软装,家具,电器等等各种大概35-40左右

小斗柜图

楼梯和我最爱的楼梯砖

上面的楼梯部分楼梯全部大概一万多点

细节
(只为我的帖子增加颜值加加看点)

卫生间,干湿分家



老人房

飘窗是用的防腐木,颜色遭买错了

挂盘和壁炉手绘~~
阳光小书房

书房都是现场手工打造的





★装修怕坑,告诉你残酷真相,关注装修课堂微信【zx029zx】