
韩国首尔的室内设计工作室U.lab,由创始人Jong-u Kim & Hyunjin Kim成立于2007年,专注于空间形象设计和品牌形象设计,将空间标识设计和品牌标识设计相结合。他们的作品不仅限于设计、空间,他们还创造了自己的品牌“Sarada Lab”。



工作室的致力于空间布局的开发和研究,并为餐饮企业寻找独特的品牌标识和形象。他们擅长利用想象力和创造力打造一个精致的设计,同时在保留基本形式的同时增加了功能空间。




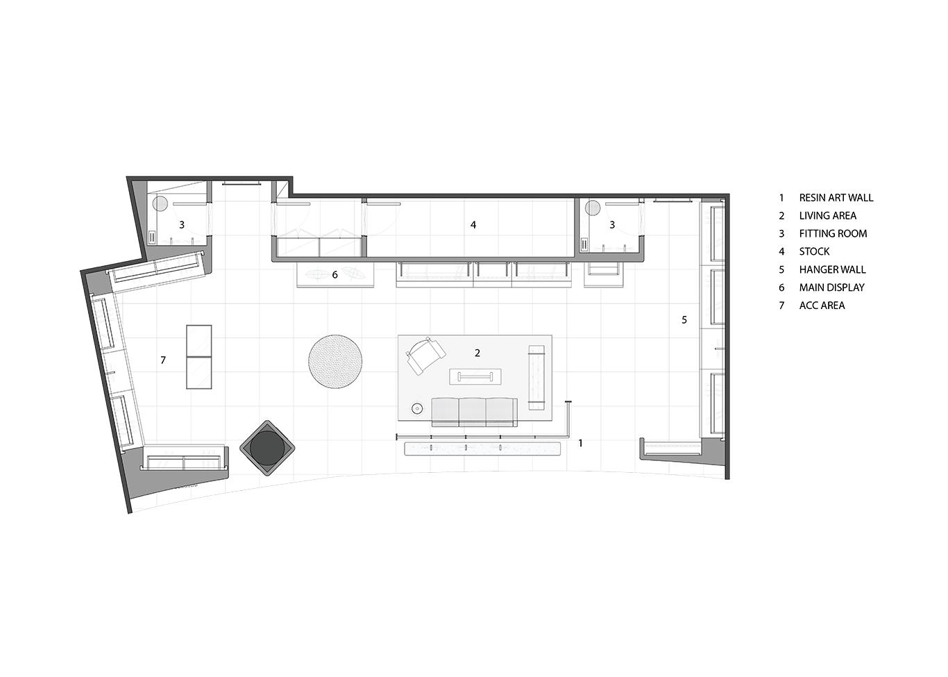
Lebeige是一个位于韩国首尔的时尚品牌零售店项目,这也是U.lab为大家带来一个最新作品。项目占地面积为97.48 平米,工作室以其独特的设计手法,将商店打造成一个极简主义的优雅空间,设计师利用简洁纯粹的内饰,营造出一个舒适且欢迎的环境。












编译:极匠零售设计网
面积:97.48 m2