
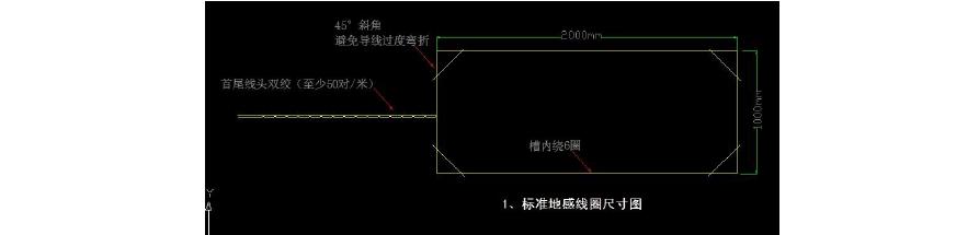
1、线圈的线材规格 在实际个工程经验中由于导线抗拉伸强度不够、线材老化、腐蚀导致破损,则车辆检 测器将不能正常工作,因此考虑到环境因素的影响,导线的机械强度、高低温抗老化、酸 碱腐蚀等问题,推荐使用电气性能良好的防腐镀银线或防腐镀锡线。 2、线圈的外形尺寸 车辆行驶车道大部分采用长方形。两条长边与运动的金属物方向垂直,两个地感线圈 之间的距离推荐>2米。线圈的长度取决于道路的宽度,通常线圈(长)1.5--5米, (宽)1米。 ´ 主车道的线圈大部分为2m1m的长方形;线圈本身加馈线后电感量约为200~ 250uH;馈线长度应<10m,最好控制在5m以内,线圈与馈线串联电阻应小于10Ω。 3、线圈的圈数 由于道路下可能埋设有金属物体,如各种金属管、钢筋、井盖等,这些都会对线圈的 实际电感值产生很大影响,因此推荐用户在实际施工中使用电感测试仪实际测试地感线圈 的电感值在工作范围内(100uH-300 uH)确定施工的实际圈数。长度2m-5m、宽度1m, 一般线圈绕6圈就可以。 地感线圈施工规程 1、切割并制作地感线圈 车辆检测器连接的地感线圈是停车场管理系统中的重要零件,它的工作稳定性直接影 响整个系统的运行效果,因此地感线圈的制作是工程安装过程中很重要的一个工作环节。 制作地感线圈前要考虑以下几点: ①、 周围50公分范围内不能有大量的金属,如井盖、雨水沟盖板等。 ②、 周围1米范围内不能有超过220V的供电线路。 ③、 制作多个线圈时,线圈与线圈之间的距离要大于2米,否则会互相干扰。 图1 地感线圈槽切割示意图

2、切割地感线圈槽 按照图纸在路面上画好地感线圈尺寸的线条,用路面切割机沿线条切割方形的线圈 槽,要求: ①、停车场中地感线圈大小一般为1米宽、2米长左右(实际大*参考小**停车场现场要 求)。 ②、转角处切割20公分x 20公分的倒角(倒角处应当做圆滑处理),防止坚硬的混 凝土直角割伤线圈。 ③、槽的深度为4公分,线圈槽宽度为0.5公分,线圈引线槽的宽度为0.8公分,深 度和宽度要均匀一致,应尽量避免忽深忽浅、忽宽忽窄的情况。 ④、切割完毕的槽内不能有杂物,槽底平直无金属屑,槽内干燥清洁。 ⑤、地感线圈的引线槽要切割至安全岛的范围内,避免引线裸露在路面。 具体如下图所示:

图1 地感线圈槽切割示意图

图2 地感线圈槽切割示意图

3、埋设地感线圈 线圈槽切割好并清洁干燥后,要及时埋设线圈,防止杂物掉入槽内。 ①、最好在清洁的线圈及引线槽底部铺一层0.5公分厚的细沙,防止天长日久槽底坚 硬的棱角割伤电线。 ②在线圈槽中按顺时针方向放入6圈地感线。绕线圈时必须将线圈拉直,放入槽中的 电线应松弛,不要绷得太紧并紧贴槽底,不要产生交错层。 ③线圈的引出线按顺时针方向双绞放入引线槽中,将馈线穿过承重管,引到路肩外侧 监控机箱内与检测单元相接,在安全岛端出线时留1.5米长的线头。 4、测试地感线圈 测试线圈的导通电阻、绝缘电阻及电感量,验证线圈是否可用。 5、密封地感线圈 线圈绕制完成后,为加强保护,最好上铺一层0.5公分厚的细沙,可防止线圈 外皮被高温灼伤。最后用熔化的硬质沥青或环氧树脂浇注已放入电线的线圈及 引线槽。冷却凝固后槽中的浇注面会下陷,继续浇注,这样反复几次,直至冷 却凝固后槽的浇注表面与路面平齐。槽口用胶化沥青或环氧树脂料密封,防止 雨水渗入,如果槽口密封不好、槽内积水、线圈受潮将产生误报或丧失功能。 5、 注意事项 1、线圈和馈线之间不能有连接头(如果有接线端,必须重新布设地感线,有接头的话 下雨天雨水渗入会导致接头部分倒地,会严重影响到车检器的稳定性和可靠性。

2、不同车检的线圈,必须保证探测线圈之间的间距大于2米。

3、如大理石板等铺设的路面,要将大理石板掀开,在大理石板下制作线槽,避免由于 大理石砖板活动增加拉伸强度导致地感线破损,车辆检测器将不能正常工作。

大理石地面在雨水的侵蚀下容易破裂,这样会导致铺设的地感线圈损坏。