好多朋友问我如何快速地学会看建筑施工图纸。今天就来和大家分享下刚入门的时候我是怎么学习看图的吧,下边拿我刚学习造价时用来练习的一套图纸举例,这套图纸相对来说比较简单,毕竟不能一口吃成个胖子,凡事都要从简单地来。希望我的经验能给大家带来帮助。
一般土建专业的图纸都是由图纸目录、建筑图和结构图组成的。
结构施工图图纸目录

建筑施工图图纸目录

所以在拿到一套图纸之后除了弄清楚这个项目什么时候做完,最重要的就是将图纸目录与图纸右下角的会签栏进行对比,看是否存在缺图少图的现象。如果是在算量过程中发现了缺少图纸,是设计忘记放图了还好,要是因为设计没有作图,那就会大大拖延你的完工时间。
图纸会签栏

其次就是看图顺序,看图一般都有一个看图顺序,是先看建筑图还是先看建筑图,本人是习惯先看建筑图再看结构图。
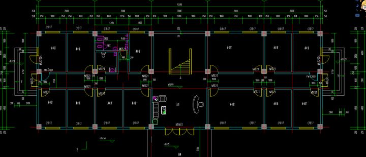
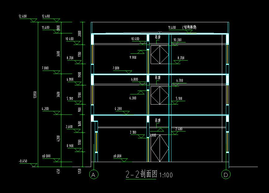
建筑图
建筑图能够很直观地反应一个建筑物的外观,例如:建筑物的高度,门窗的离地高度、门窗的位置及数量、墙体的位置等。
- 建筑设计总说明:在看设计说明时要能够从繁琐的文字说明中择出有用的信息。如下:
(1)项目概况:建设地点、结构形式、抗震设防烈度等都会影响工程量进而影响造价。

(2) 墙体信息 :要清楚地上地下墙体材质是否相同,所用材质是哪种,有无防潮层等。不同的砖价格也不同,做不做防潮层花费的钱也不一样。

(3)屋面工程及防水工程:屋面所用防水材质、屋面雨水排水管的材质及室内的有水房间是否需要做混凝土翻遍(屋面雨水管为土建专业计算内容)。

(4) 装修做法表 :一般各个房间的装修做法做在一张表格中,该表格中的内容均为所需要计算的内容。

(5) 门窗表 :门窗表中能够体现出门窗名称、尺寸及数量、材质等。

除此之外还有很多有用的信息,这个需要根据个人的图纸进行一个具体的提炼。
- 平面图:每层的平面图都能够显示出墙体定位、门窗数量、房间功能等

- 立面图:从立面图中能够看出外墙面做法、门窗离地高度、楼层高度以及标高等

- 剖面图:可以看到门窗的标高以及吊顶的离地高度等

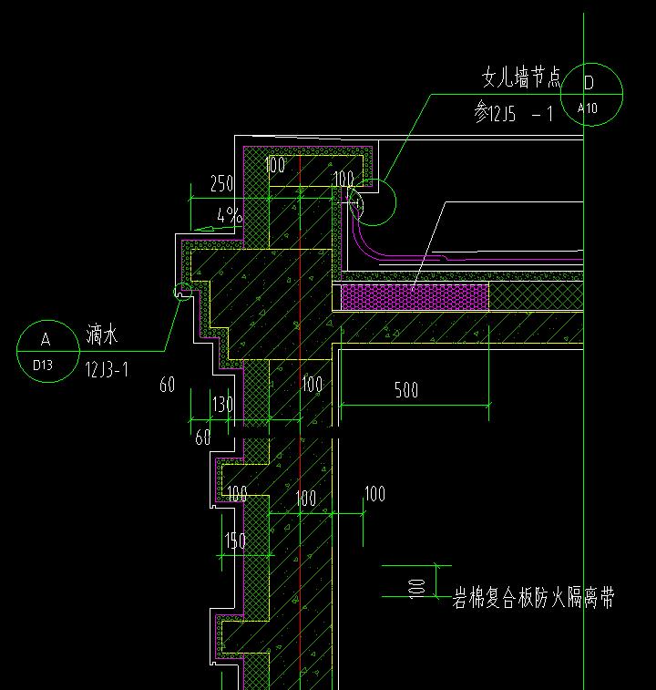
- 大样图:大样图是指针对某一特定区域进行特殊性放大标注,较详细地表示出来

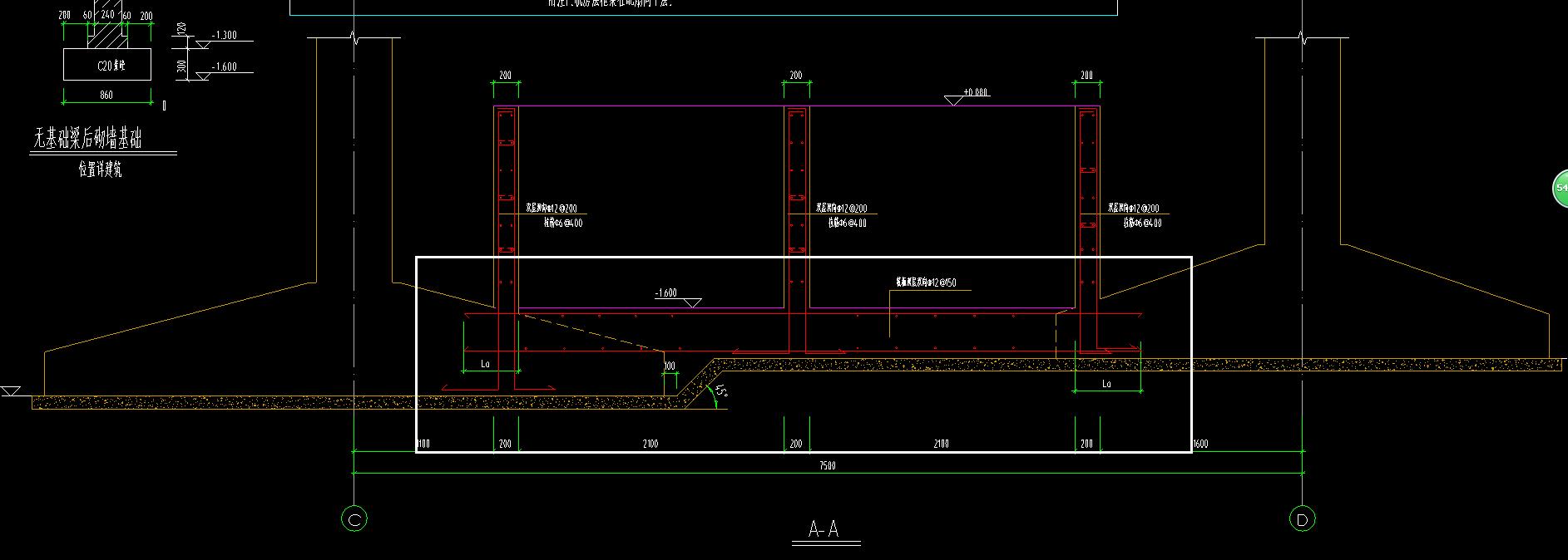
结构图
结构图能够体现出建筑物的内部构造情况、基础、梁、板、柱的定位以及平法配筋
1. 结构设计说明 :结构设计说明中相对来说有用的信息比较多,就需要你一点一点去找了,最好在看说明的过程中把有用的信息勾选出来,例如混凝土的强度等级、保护层厚度、墙体没是否设置构造柱和圈梁、洞口过梁等。

2.基础平面图、梁板柱平法施工图、楼梯详图等:这些图纸主要就是表示这些构件的一个钢筋信息以及构件尺寸,一开始可能很多钢筋都不知道怎么回事,不知道表示的什么意思,建议可以查看16G101系列图集,这个系列的图集是专门讲解钢筋标注的图集,可以对应图集进行查找学习。( 图集在上篇有发,需要的小伙伴可以查阅一下~ )

只有知道这根梁或者是这根柱子表示的是什么意思,才能够在软件中进行绘制。
有时图纸中还会有一些节点,在看节点图时就需要你有一定的三维想象能力了,能够在脑海中想象出这个节点的钢筋是如何布置的,你需要如何进行修改。
雨篷上翻节点图

筏板基础和独立基础连接的节点

这些节点也可以在16G101系列图集中进行查看,钢筋的锚固搭接等在这个系列图集中也有说明。
以上就是我在学习造价过程中总结的一个看图的基本顺序以及注意事项,一定要知道不认识的钢筋信息在16G101图集上可以查看!!!初学者(转行人员)及有一定基础的伙伴们都可以看一看学习一下。遇到不会的问题也可以随时来找我探讨哦。