在蒙特利尔令人向往的高原蒙特-皇家居住区的中心地带,有一个典型的20世纪的复式公寓,最近由L ‘Abri改造成一个两层的家庭住宅。该项目利用有利条件,将原始空间分解,提供了更大的开放性和简单性。在首层,居住空间被安排成一个巨大的连续空间,从外部街道一直延伸到到后部花园。盥洗室是一个半透明的房间,成为门关和住宅的其他地方之间的缓冲带,而厨房则占据了住宅的中心,它的特色是一个与空间融为一体的岛台。
At the heart of Montreal’s coveted Plateau Mont-Royal neighborhood, lies a typical duplex from the 1900s that has recently been transformed by L’Abri into a two-story family home. The project has taken the opportunity to decompartmentalize the original space, providing a greater sense of openness and simplicity. On the ground floor, the living spaces are arranged as a large continuous space, spanning from the street to the garden. The washroom serves as an opaque volume buffering the vestibule from the rest of the house, while the kitchen occupies the centre of the residence, featuring a large island integrated to the space.
▼首层的连续空间,厨房占据重要位置;the continuous space at the first floor,the kitchen takes the central place


▼餐厅,the dinning area

▼入口旁被木栅隔开的客厅,the living room separated by wooden grids

▼木栅格折叠后变成入口处的座椅,the wooden grids fold into a seating area for the doorway

沿着后者运行的是家中真正的焦点:两层楼之间的天窗。天窗使得日光得以渗入到首层。一个木制楼梯在这个开口中向上攀爬,它有一个连续的钢制扶手,沿着楼梯旋转后一直延伸到二楼的的走道。
Running along the latter is the true focal element of the home: an opening between the two floors with a skylight, allowing daylight to seep in all the way to the ground floor. A wooden staircase rises within this opening, with a continuous steel handrail that turns along the second-floor walkway.
▼一楼通向二楼的开口很大,将通过天窗的日光引入首层;the opening for staircase is large enough to let the daylight penetrate to the ground floor through the skylight

▼天窗,the skylight

▼浅色木制楼梯与钢制扶手的语言一致,和谐地成为一体;the light-colored wooden staircase and the steel hand railing use the same design language and work in harmony


主卧套间位于建筑物的前部,由于屋顶的自然坡度,房间的天花板很高。辅助空间也有机会沐浴阳光:主步入式衣柜面对着街道阳台,而第二个开口则是在主卧套间的淋浴间之上。在房子的后面,一个新的外部楼梯延伸到屋顶平台,提供了一个远离城市的休息场所,并可远观Royal 山和蒙特利尔市中心。
The master suite is located in the front part of the building and the room has high ceilings due to the natural slope of the roof. Auxiliary spaces are given the chance to bathe in daylight as well: the master walk-in closet faces the street balcony, while a second opening is created above the master suite shower. At the back of the house, a new exterior staircase extends to the rooftop terrace, offering a retreat from the city, as well as a view of the Mount-Royal and downtown Montreal.
▼伸向房屋前部的主卧,the master suite is located in the front part of the building

▼主卧的衣帽间用半透明材料处理,提高透光率;the space for changing clothes in the master bedroom uses translucent materials to allow more penetration of the light

▼卫生间细节,details of the restroom


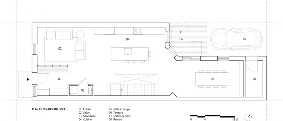
▼首层平面,the ground floor plan

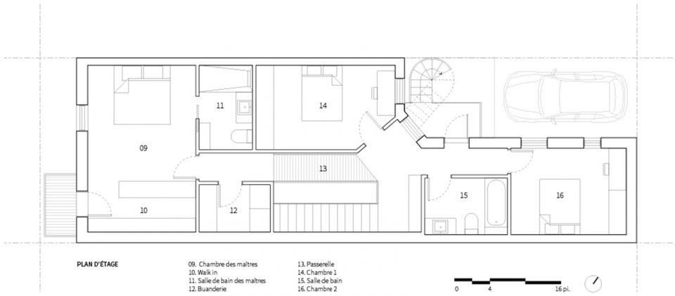
▼二层平面,the first floor plan

▼顶层平面,the rooftop plan

▼户型轴测图,the axonometric drawing for programs

▼户型轴测图,the axonometric drawing for structure

More: L’Abri