随着孩子的教育受到越来越多人的重视,很多人在装修新房时,都会为了能给孩子营造出一个轻松安静的成长环境,开始放弃常规的客厅功能了。尤其是在新房面积有限的情况下,更是会首先考虑不要客厅。
就拿本案中的屋主来说,由于这套新房仅有80㎡,且天生缺少一个功能区。所以在空间规划上,想都没想直接就取消了客厅区域。同时,为了迎合孩子的天性,还将儿童房设计得超有特点,以便让孩子有一个舒适的玩耍区。当然,从完工后的效果来看,孩子也十分喜欢。
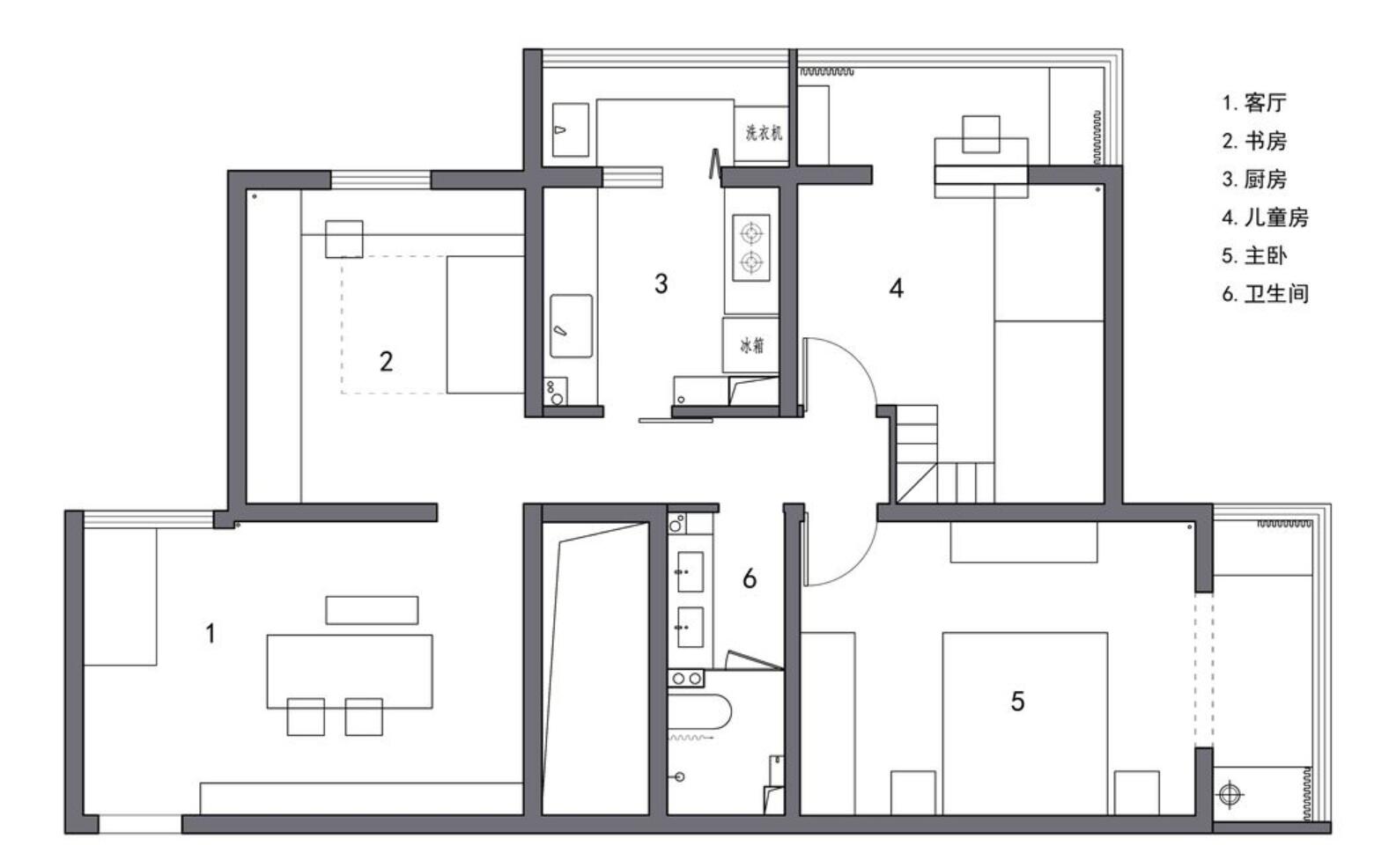
平面结构图

新房坐标北京,三室一厅的户型,屋主是一家三口。从原空间结构上来看,整体也算是比较工整,唯独客厅结构较为凌乱,出现了一个逼仄的通道。因此,在空间设计上,也主要是对客厅的功能进行了定位,其它空间则是做了局部调整,使其更加符合屋主的居住需求。
平面方案图

空间布局如下
1、考虑到孩子正在读小学,所以拆除客厅多余的墙体后,是以功能间来定位的,以便让孩子尽可能地远离电子产品。
2、书房采用半开放式结构来设计,以提高过道的采光,避免出现白天还要开灯这种情况。
3、卫生间采用干湿分离结构来设计,并配置双台盆,满足多人共同使用需求。
4、儿童房采用高架床来设计,提高空间的趣味性,让孩子可以快乐地玩耍。
客厅

进门客厅采用了功能性来设计,鞋柜设计在右手边,并与餐边柜做成一个整体,既满足了不同的收纳需求,也让空间更加工整了。考虑到整个空间是以白加原木调为主的,所以在柜门拉手的处理上,选择皮质拉手,不仅在硬朗中凸显出了一抹质感,也使整个柜体色彩做到了平衡。

为了给孩子营造出一个安静的空间,放弃常规的客厅配置,并选择一张尺寸超大的餐桌,既提高了用餐仪式感,也提高了空间的互动性。同时,正对面顶部暗藏的投影幕布,也方便了全家人观影,以及给孩子学习使用。

客厅临窗处配置了一张双人沙发,充足的光线,实现了舒适的阅读角落。沙发背面部分墙面,采用黑板墙来设计,则为空间增加了一点趣味,且可以让孩子乱涂乱画,充分发挥他天马行空般的想象力。
过道

通往卧室的过道以留白为主,让空间倍显干净。厨房配置玻璃移门,书房做半开放式设计,则为过道提供了充足的采光,以避开白天还要开灯的尴尬。而门洞垭口采用拱形来设计,则直接拉伸了视野,并让空间有了不错的仪式感。

由于书房做了半开放式设计,门洞并不是平行的,所以配置转角折叠门,既不会影响到空间的通透性,也保证了室内的私密性。
书房

来到书房内部,左边一组整面墙的储物柜,提供了大量的储物收纳能力;临窗配置的书桌,则满足了基本的办公学习功能;而右边的沙发,则让这个书房兼具了客房功能,以方便父母过来小住。
厨房

厨房保留了原有的空间结构,外面为独立的洗衣间,内部为操作间。而将橱柜采用面对面的方式来设计,也预留出了足够宽敞的空间,从而尽可能地减少遮挡,引入室外的光线。
卫生间

在家里只有一个卫生间的情况下,采用干湿分离结构来设计,应该是最实用的。同时,为了提高生活的便捷性,浴室柜还配置了双台面,满足了共同使用的需求。而给湿区铺上白色的墙砖,也间接性提高了空间的亮度,解决了卫生间没有窗户采光的问题。
主卧室

相较于外面的白调,主卧床头墙面则刷上了蓝色的乳胶漆,以凸显出时尚、精致的调调。不过整个卧室最大的特点,还是放弃床,将床垫铺在地面这个处理。既透露出了空间的休闲,也提高了空间感,营造出了十分慵懒的生活画面。
儿童房

为呼应过道的拱形垭口元素,儿童房的门也做成了拱形结构,以保证空间的统一。不过最让孩子满意的,还是高架床设计,上面为玩耍区,下面为休息区。虽说儿童房没有配置一组标准的衣柜,但整个楼梯间以及踏步,都是兼具收纳储物功能的。

儿童房外面的阳台门洞,则是采用半高柜体来做隔断的,这样既解决了床头问题,当柜体台面展开后,还兼具了写字桌功能,非常巧妙。
本期案例就分享到这里,虽说新房面积不大,但在空间布局上,屋主对于自己的需求,却十分的清楚。而像这种取消客厅,并选择功能性来设计,对于小户型来说,也是非常实用的。再者,就是儿童房的设计,也很值得大家参考。
图源:郑昊鸿