第一节 编制依据
《建筑施工手册》第四版 中国建筑工业出版社;
《钢结构设计规范》中国建筑工业出版社;
《建筑结构荷载规范》中国建筑工业出版社;
《建筑施工脚手架实用手册(含垂直运输设施)》中国建筑工业出版社;
《建筑施工扣件式钢管脚手架安全技术规范》中国建筑工业出版社;
《建筑地基基础设计规范》中国建筑工业出版社;
《建筑施工安全检查标准》中国建筑工业出版社;
《混凝土结构设计规范》中国建筑工业出版社;
另外参照本工程施工图纸及施工组织设计编制本施工方案。
第二节 工程概况
依据图纸设计和本工程实际情况填写(参建单位、工程位置、周边环境、建筑面积及高度、结构形式及层数等等)
第三节 脚手架方案选择
本工程考虑到施工工期、质量、安全和合同要求,故在选择方案时,应充分考虑以下几点:
1、架体的结构设计,力求做到结构要安全可靠,造价经济合理。
2、在规定的条件下和规定的使用期限内,能够充分满足预期的安全性和耐久性。
3、选用材料时,力求做到常见通用、可周转利用,便于保养维修。
4、结构选型时,力求做到受力明确,构造措施到位,升降搭拆方便,便于检查验收;
5、脚手架的搭设,还必须要符合相关文明标化工地的有关标准。
6、结合以上脚手架设计原则,同时结合本工程的实际情况,综合考虑了以往的施工经验,决定采用以下脚手架方案:
a.二层楼面以下采用钢管落地脚手架(-2.0~10m)
b.二层楼面以上采用普通型钢悬挑脚手架。
第四节 脚手架材料选择
钢管落地脚手架
l、钢管落地脚手架,选用外径48mm,壁厚3mm,钢材强度等级Q235-A,钢管表面应平直光滑,不应有裂纹、分层、压痕、划道和硬弯,新用的钢管要有出厂合格证。脚手架施工前必须将入场钢管取样,送有相关国家资质的试验单位,进行钢管抗弯、抗拉等力学试验,试验结果满足设计要求后,方可在施工中使用。
2、本工程钢管脚手架的搭设使用可锻铸造扣件,应符合建设部《钢管脚手扣件标准》JGJ22-85的要求,由有扣件生产许可证的生产厂家提供,不得有裂纹、气孔、缩松、砂眼等锻造缺陷,扣件的规格应与钢管相匹配,贴和面应平整,活动部位灵活,夹紧钢管时开口处最小距离不小于5mm。钢管螺栓拧紧力矩达65N.m时不得破坏。如使用旧扣件时,扣件必须取样送有相关国家资质的试验单位,进行扣件抗滑力等试验,试验结果满足设计要求后方可在施工中使用。
3、搭设架子前应进行保养,除锈并统一涂色,颜色力求环境美观。脚手架立杆、防护栏杆、踢脚杆统一漆黄色,剪力撑统一漆红白相间色。底排立杆、扫地杆均漆红白相间色。
4、脚手板、脚手片采用符合有关要求。
5、安全网采用密目式安全网,网目应满足2000目/100cm2,做耐贯穿试验不穿透,1.6×1.8m的单张网重量在3kg以上,颜色应满足环境效果要求,选用绿色。要求阻燃,使用的安全网必须有产品生产许可证和质量合格证,以及建筑安全监督管理部门发放的准用证。
6、连墙件采用钢管,其材质应符合现行国家标准《碳素钢结构》(GB 700-88)中Q235A钢的要求。
普通型钢悬挑脚手架
l、普通型钢悬挑脚手架,选用架设钢管外径48mm,壁厚3mm,钢材强度等级Q235-A,钢管表面应平直光滑,不应有裂纹、分层、压痕、划道和硬弯,新用的钢管要有出厂合格证。脚手架施工前必须将入场钢管取样,送有相关国家资质的试验单位,进行钢管抗弯、抗拉等力学试验,试验结果满足设计要求后,方可在施工中使用。
2、本工程钢管脚手架的搭设使用可锻铸造扣件,应符合建设部《钢管脚手扣件标准》JGJ22-85的要求,由有扣件生产许可证的生产厂家提供,不得有裂纹、气孔、缩松、砂眼等锻造缺陷,扣件的规格应与钢管相匹配,贴和面应平整,活动部位灵活,夹紧钢管时开口处最小距离不小于5mm。钢管螺栓拧紧力矩达65N.m时不得破坏。如使用旧扣件时,扣件必须取样送有相关国家资质的试验单位,进行扣件抗滑力等试验,试验结果满足设计要求后方可在施工中使用。
3、搭设架子前应进行保养,除锈并统一涂色,颜色力求环境美观。脚手架立杆、防护栏杆、踢脚杆统一漆黄色,剪力撑统一漆红白相间色。底排立杆、扫地杆均漆红白相间色。
4、脚手板、脚手片采用符合有关要求。
5、安全网采用密目式安全网,网目应满足2000目/100cm2,做耐贯穿试验不穿透,1.6×1.8m的单张网重量在3kg以上,颜色应满足环境效果要求,选用绿色。要求阻燃,使用的安全网必须有产品生产许可证和质量合格证,以及由建筑安全监督管理部门发放的准用证。
6、连墙件采用钢管,其材质应符合现行国家标准《碳素钢结构》(GB 700-88)中Q235A钢的要求。
7、型钢水平悬挑杆采用14a号槽钢。
8、预埋螺栓的直径为20mm。
9.选择6×19钢丝绳,钢丝绳公称抗拉强度1700MPa,直径14mm。
第五节 脚手架搭设流程及要求
钢管落地脚手架
落地脚手架搭设的工艺流程为:场地平整、夯实→基础承载力实验、材料配备→定位设置通长脚手板、底座→纵向扫地杆→立杆→横向扫地杆→小横杆→大横杆(搁栅)→剪刀撑→连墙件→铺脚手板→扎防护栏杆→扎安全网。
定距定位。根据构造要求在建筑物四角用尺量出内、外立杆离墙距离,并做好标记;用钢卷尺拉直,分出立杆位置,并用小竹片点出立杆标记;垫板、底座应准确地放在定位线上,垫板必须铺放平整,不得悬空。
在搭设首层脚手架过程中,沿四周每框架格内设一道斜支撑,拐角除双向增设,待该部位脚手架与主体结构的连墙件可靠拉接后方可拆除。当脚手架操作层高出连墙件两步时,宜先立外排,后立内排。其余按下构造要求搭设。
1、主杆基础
本工程脚手架基础利用基坑支护平台混凝土进行硬化,混凝土硬化厚度不小于10cm。地基承载能力能够满足外脚手架的搭设要求。

2、立杆间距
(1)脚手架立杆纵距1.5m,横距0.9m,步距1.8m;连墙杆间距竖直3.6m,水平4.5m(即两步三跨);里立杆距建筑物0.3m。
(2)脚手架的底部立杆采用不同长度的钢管参差布置,使钢管立杆的对接接头交错布置,高度方向相互错开500mm以上,且要求相邻接头不应在同步同跨内,以保证脚手架的整体性。
(3)立杆应设置垫木,并设置纵横方向扫地杆,连接于立脚点杆上,离底座20cm左右。
(4)立杆的垂直偏差应控制在不大于架高的1/400。
(5)立杆及纵横向水平杆构造要求:

3、大横杆、小横杆设置
(1)大横杆在脚手架高度方向的间距1.8m,以便立网挂设,大横杆置于立杆里面,每侧外伸长度为150mm。
(2)外架子按立杆与大横杆交点处设置小横杆,两端固定在立杆,以形成空间结构整体受力。
4、剪刀撑
脚手架外侧立面的两端各设置一道剪刀撑,并应由底至顶连续设置;中间各道剪刀撑之间的净距离不应大于15m。剪刀撑斜杆的接长宜采用搭接,搭接长度不小于1m,应采用不少于2个旋转扣件固定。剪刀撑斜杆应用旋转扣件固定在与之相交的横向水平杆的伸出端或立杆上,旋转扣件中心线离主节点的距离不宜大于150mm。
5、脚手板、脚手片的铺设要求
(1)脚手架里排立杆与结构层之间均应铺设木板:板宽为200mm,里外立杆间应满铺脚手板,无探头板。
(2)满铺层脚手片必须垂直墙面横向铺设,满铺到位,不留空位,不能满铺处必须采取有效的防护措施。
(3)脚手片须用12-14#铅丝双股并联绑扎,不少于4点,要求绑扎牢固,交接处平整,铺设时要选用完好无损的脚手片,发现有破损的要及时更换。
6、防护栏杆
(1)脚手架外侧使用建设主管部门认证的合格绿色密目式安全网封闭,且将安全网固定在脚手架外立杆里侧。
(2)选用18铅丝张挂安全网,要求严密、平整。
(3)脚手架外侧必须设1.2m高的防护栏杆和30cm高踢脚杆,顶排防护栏杆不少于2道,高度分别为0.9m和1.3m。
(4)脚手架内侧形成临边的(如遇大开间门窗洞等),在脚手架内侧设1.2m的防护栏杆和30cm高踢脚杆。
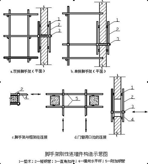
(5)脚手架上门洞、出入口构造示意图。本工程施工人员出入通道口分别搭设在东,西二个大厅入口处,脚手架搭设时同时施工包括安全通道。


7、连墙件
(1)脚手架与建筑物按计算书中连墙件布置要求设拉结点。楼层高度超过4m,则在水平方向加密,如楼层高度超过6m时,则按水平方向每6m设置一道斜拉钢丝绳。
(2)拉结点在转角范围内和顶部处加密,即在转角l米以内范围按垂直方向每3.6米设一拉结点。
(3)拉结点应保证牢固,防止其移动变形,且尽量设置在外架大小横杆接点处。
(4)外墙装饰阶段拉结点,也须满足上述要求,确因施工需要除去原拉结点时,必须重新补设可靠,有效的临时拉结点,以确保外架安全可靠。
(5)连墙件构造示意图

8、架体内封闭
(1)脚手架的架体里立杆距墙体净距最多为200mm,如因结构设计的限制大于200mm的必须铺设站人板,站人板设置平整牢固。
(2)脚手架施工层里立杆与建筑物之间应采用脚手片或木板进行封闭。
(3)施工层以下外架每隔3步以及底部用密目网或其他措施进行封闭。
普通型钢悬挑脚手架
悬挑脚手架搭设的工艺流程为:水平悬挑→纵向扫地杆→立杆→横向扫地杆→小横杆→大横杆(搁栅)→剪刀撑→连墙件→铺脚手板→扎防护栏杆→扎安全网。
定距定位。根据构造要求在建筑物四角用尺量出内、外立杆离墙距离,并做好标记;用钢卷尺拉直,分出立杆位置,并用小竹片点出立杆标记;垫板、底座应准确地放在定位线上,垫板必须铺放平整,不得悬空。
在搭设首层脚手架过程中,沿四周每框架格内设一道斜支撑,拐角除双向增设,待该部位脚手架与主体结构的连墙件可靠拉接后方可拆除。当脚手架操作层高出连墙件两步时,宜先立外排,后立内排。其余按下构造要求搭设。

1、立杆间距
(1)脚手架立杆纵距1.5m,横距0.9m,步距1.8m;连墙杆间距竖直3.6m,水平4.5m(即两步三跨):里立杆距建筑物0.3m。
(2)脚手架的底部立杆采用不同长度的钢管参差布置,使钢管立杆的对接接头交错布置,高度方向相互错开500mm以上,且要求相邻接头不应在同步同跨内,以保证脚手架的整体性。
(3)立杆应设置垫木,并设置纵横方向扫地杆,连接于立脚点杆上,离底座20cm左右。
(4)立杆的垂直偏差应控制在不大于架高的1/400。
2、大横杆、小横杆设置
(1)大横杆在脚手架高度方向的间距1.8m,以便立网挂设,大横杆置于立杆里面,每侧外伸长度为150mm。
(2)外架子按立杆与大横杆交点处设置小横杆,两端固定在立杆,以形成空间结构整体受力。
(3)大小横杆连接构造要求

3、剪刀撑
脚手架外侧立面的两端各设置一道剪刀撑,并应由底至顶连续设置;中间各道剪刀撑之间的净距离不应大于15m。剪刀撑斜杆的接长宜采用搭接,搭接长度不小于1m,应采用不少于2个旋转扣件固定。剪刀撑斜杆应用旋转扣件固定在与之相交的横向水平杆的伸出端或立杆上,旋转扣件中心线离主节点的距离不宜大于150mm。
4、脚手板、脚手片的铺设要求
(1)脚手架里排立杆与结构层之间均应铺设木板:板宽为200mm,里外立杆间应满铺脚手板,无探头板。
(2)满铺层脚手片必须垂直墙面横向铺设,满铺到位,不留空位,不能满铺处必须采取有效的防护措施。
(3)脚手片须用12-14#铅丝双股并联绑扎,不少于4点,要求绑扎牢固,交接处平整,铺设时要选用完好无损的脚手片,发现有破损的要及时更换。
5、防护栏杆
(1)脚手架外侧使用建设主管部门认证的合格绿色密目式安全网封闭,且将安全网固定在脚手架外立杆里侧。
(2)选用18铅丝张挂安全网,要求严密、平整。
(3)脚手架外侧必须设1.2m高的防护栏杆和30cm高踢脚杆,顶排防护栏杆不少于2道,高度分别为0.9m和1.3m。
(4)脚手架内侧形成临边的(如遇大开间门窗洞等),在脚手架内侧设1.2m的防护栏杆和30cm高踢脚杆。
6、连墙件
(1)脚手架与建筑物按按计算书中连墙件设计要求设置拉结点。楼层高度超过4m,则在水平方向加密,如楼层高度超过6m时,则按水平方向每6m设置一道斜拉钢丝绳。
(2)拉结点在转角范围内和顶部处加密,即在转角l米以内范围按垂直方向每3.6米设一拉结点。
(3)拉结点应保证牢固,防止其移动变形,且尽量设置在外架大小横杆接点处。
(4)外墙装饰阶段拉结点,也须满足上述要求,确因施工需要除去原拉结点时,必须重新补设可靠,有效的临时拉结点,以确保外架安全可靠。
7、架体内封闭
(1)脚手架的架体里立杆距墙体净距最多为200mm,如因结构设计的限制大于200mm的必须铺设站人板,站人板设置平整牢固。
(2)脚手架施工层里立杆与建筑物之间应采用脚手片或木板进行封闭。
(3)施工层以下外架每隔3步以及底部用密目网或其他措施进行封闭。
支承结构型钢的纵向间距与上部脚手架立杆的纵向间距相同,立杆直接支承在悬挑的支承结构上。上部脚手架立杆与支承结构应有可靠的定位连接措施,以确保上部架体的稳定。通常采用在挑梁或纵向钢粱上焊接150-200mm、外径φ40mm的钢管,立杆套座其外,并同时在立杆下部设置扫地杆。
第六节 脚手架的劳动力安排
1、为确保工程进度的需要,同时根据本工程的结构特征和外脚手架的工程量,确定本工程外脚手架搭设人员需要15~20人,均有上岗作业证书。
2、建立由项目经理、施工员、安全员、搭设技术员组成的管理机构,搭设负责人负有指挥、调配、检查的直接责任。
3、外脚手架的搭设和拆除,均应有项目技术负责人的认可,方可进行施工作业,并必须配备有足够的辅助人员和必要的工具。
第七节 脚手架的检查与验收
钢管落地脚手架、普通型钢悬挑脚手架
1、脚手架搭设完毕或分段搭设完毕,应按规定对脚手架工程的质量进行检查,经检查合格后方可交付使用。
2、高度在20m及20m以下的脚手架,应由单位工程负责人组织技术安全人员进行检查验收。高度大于20m的脚手架,应由上一级技术负责人随工程进行分阶段组织单位工程负责人及有关的技术人员进行检查验收。
3、验收时应具备下列文件:
(1)脚手架构配件的出厂合格证或质量分类合格标志;
(2)脚手架工程的施工记录及质量检查记录;
(3)脚手架搭设过程中出现的重要问题及处理记录,
(4)脚手架工程的施工验收报告。
4、脚手架工程的验收,除查验有关文件外,还应进行现场检查,检查应着重以下各项,并记入施工验收报告。
(1)构配件和加固件是否齐全,质量是否合格,连接和挂扣是否紧固可靠;
(2)安全网的张挂及扶手的设置是否齐全;
(3)基础是否平整坚实、支垫是否符合规定;
(4)连墙件的数量、位置和设置是否符合要求;
(5)垂直度及水平度是否合格。
第八节 脚手架搭设安全技术措施
1、技术保障措施
(1)架子搭设完毕,用合格密目安全网铺围护于架子的外围及底部。
(2)钢管与扣件进场前应经过检查挑选(选择标准应符合规范JGJ 130-200 第3条),所用扣件在使用前应清理加油一次,扣件一定要上紧,不得松动。每个螺栓的预紧力在40N·m~65 N·m之间。^
(3)架子搭设到10m高度时由架子搭设人员进行自检;架子搭设完毕后由搭设会同施工单位、监理单位和质检单位对整个脚手架进行验收检查,验收合格后方可投入使用。
(4)该脚手架作为建筑物装饰作业时,安全防护屏障及装修时作业平台,严禁将模板支架、揽风绳、泵送混凝土和砂浆的输送管道等固定在脚手架上;脚手架严禁悬挂起重设备。
(5)脚手架的安全性是由架子的整体性和架子结构完整性来保证的,未经允许严禁他人破坏架子结构或在架子上擅自拆除与搭设脚手架各构件。其中在脚手架使用期间,下列杆件严禁拆除:主节点处横、纵向水平杆,连墙件。
2、质量保障措施
(1)操作人员作业前必须进行岗位技术培训与安全教育。
(2)技术人员在脚手架搭设、拆除前必须给作业人员下达安全技术交底,并传达至所有操作人员。
(3)脚手架必须严格依据本《施工方案》进行搭设;搭设时,技术人员必须在现场监督搭设情况,保证搭设质量达到设计要求。
(4)脚手架搭设完备,依据施工组织设计与单项作业验收表对脚手架进行验收,发现不符合要求处,必须限时或立即整改。
3、安全保障措施
(1)操作人员必须持有登高作业操作证,方可上岗。
(2)架子在搭设(拆卸)过程要做到文明作业,不得从架子上掉落工具、物品;同时必须保证自身安全,高空作业需穿防滑鞋,佩戴安全帽、安全带,未佩戴安全防护用品不得上架子。
(3)在架子上施工的各工种作业人员,应注意自身安全(尤其是在卸料平台上的工作人员);不得随意向下、向外抛、掉物品,不得随意拆除安全防护装置。
(4)雨、雪、雾及六级以上大风等天气,严禁进行脚手架搭设、拆除工作。
(5)应设安全员负责对脚手架进行经常检查和保修。
A 在下列情况下,必须对脚手架进行检查|
a 在六级以上大风和大雨后
b 停用超过二个月,复工前。
B 检查保修项目
a 各主节点处各杆件的安装、连墙件等构造是否符合《施工方案》的要求;
b 扣件螺丝是否松动;
c 安全防护措施是否符合要求。
(6)在脚手架上进行电、气焊作业时,必须有防火措施和专人看护,安全员巡视检查。
(7)脚手架临街面必须有防止坠物伤人的防护措施。
(8)搭拆脚手架期间,地面应设置围栏和警戒标志,严禁非操作人员入内。
钢管落地脚手架、普通型钢悬挑脚手架
1、钢管架应设置避雷针,分置于主楼外架四角立杆之上,并联通大横杆,形成避雷网络,并检测接地电阻不大于30Ω。
2、外脚手架不得搭设在距离外架空线路的安全距离内,并做好可靠的安全接地处理。
3、定期检查脚手架,发现问题和隐患,在施工作业前及时维修加固,以达到坚固稳定,确保施工安全。
4、外脚手架严禁钢竹、钢木混搭,禁止扣件、绳索、铁丝、竹篾、塑料篾混用。
5、外脚手架搭设人员必须持证上岗,并正确使用安全帽、安全带、穿防滑鞋。
6、严禁脚手板存在探头板,铺设脚手板以及多层作业时,应尽量使施工荷载内、外传递平衡。
7、保证脚手架体的整体性,不得与井架、升降机一并拉结,不得截断架体。
8、结构外脚手架每支搭一层,支搭完毕后,经项目部安全员验收合格后方可使用。任何班组长和个人,未经同意不得任意拆除脚手架部件。
9、严格控制施工荷载,脚手板不得集中堆料施荷,施工荷载不得大于3kN/m2,确保较大安全储备。
10、结构施工时不允许多层同时作业,装修施工时同时作业层数不超过两层,临时性用的悬挑架的同时作业层数不超过两层。
11、当作业层高出其下连墙件3.6m以上、且其上尚无连墙件时,应采取适当的临时撑拉措施。
12、各作业层之间设置可靠的防护栅栏,防止坠落物体伤人。
第九节 脚手架拆除安全技术措施
钢管落地脚手架、普通型钢悬挑脚手架
1、拆架前,全面检查拟拆脚手架,根据检查结果,拟订出作业计划,报请批准,进行技术交底后才准工作。作业计划一般包括:拆架的步骤和方法、安全措施、材料堆放地点、劳动组织安排等。
2、拆架时应划分作业区,周围设绳绑围栏或竖立警戒标志,地面应设专人指挥,禁止非作业人员进入。
3、拆架的高处作业人员应戴安全帽、系安全带、扎裹腿、穿软底防滑鞋。
4、拆架程序应遵守“由上而下,先搭后拆”的原则,即先拆拉杆、脚手板、剪刀撑、斜撑,而后拆小横杆、大横杆、立杆等,并按“一步一清”原则依次进行。严禁上下同时进行拆架作业。
5、拆立杆时,要先抱住立杆再拆开最后两个扣,拆除大横杆、斜撑、剪刀撑时,应先拆除中间扣件,然后托住中间,再解端头扣。
6、连墙杆(拉结点)应随拆除进度逐层拆除,拆抛撑时,应用临时撑支住,然后才能拆除。
7、拆除时要统一指挥,上下呼应,动作协调,当解开与另一人有关的结扣时,应先通知对方,以防坠落。
8、拆架时严禁碰撞脚手架附近电源线,以防触电事故。
9、在拆架时,不得中途换人,如必须换人时,应将拆除情况交代清楚后方可离开。
10、拆下的材料要徐徐下运,严禁抛掷。运至地面的材料应按指定地点随拆随运,分类堆放,“当天拆当天清”,拆下的扣件和铁丝要集中回收处理。
11、高层建筑脚手架拆除,应配备良好的通讯装置。
12、输送至地面的杆件,应及时按类堆放,整理保养。
13、当天离岗时,应及时加固尚未拆除部分,防止存留隐患造成复岗后的人为事故。
14、如遇强风、大雨、雪等特殊气候,不应进行脚手架的拆除,严禁夜间拆除。
15、翻掀垫铺竹笆应注意站立位置,并应自外向里翻起竖立,防止外翻将竹笆内未清除的残留物从高处坠落伤人。