
在做一个项目的设计之前,我们总会去看一些案例来激发设计灵感。
而面对一个好的设计案例,其实并不只是看它的整体氛围和色彩搭配。
那么作为设计师,应该从哪些方面分析一个空间的设计要点呢?
今天我们以 五星级酒店「 深圳蛇口海上世界希尔顿酒店 」 的标准间来分析。
(按下图编号分析)

开始之前先来熟悉一下这些 常用词 :
ST: 石材(花岗岩、大理石、玉石等)
WD: 实木、木饰面、木地板
MT: 金属饰面(铜、铁、钢、铝、铝合金)
PT: 油漆(油漆、涂料、氟碳喷涂等)
L: 隐藏式灯光
PL: 石膏线
WC: 墙面饰材(多指墙纸/墙布/喷绘/刺绣)
CP: 地毯
MO: 马赛克
UP: 皮革
RF: 窗帘、窗纱
GL: 玻璃
MR: 镜子
01. 天花

天花装修最低标高大于等于2400mm,造型一般不宜设计过于复杂,否则会造成空间压抑。

▲ 单间天花大样图
本案标准间顶面没做过多的造型,采用 1.2mm 拉丝黑钢拉槽的工艺,电视背景墙顶部设有暗藏灯带,造型简洁明了,整体采用白色乳胶漆饰面,给顾客一种安静舒适的感觉;

灯槽LED灯带采用隐藏式灯管(或结合专业灯光顾问意见和设计图纸),使得光源发射面更加柔和。
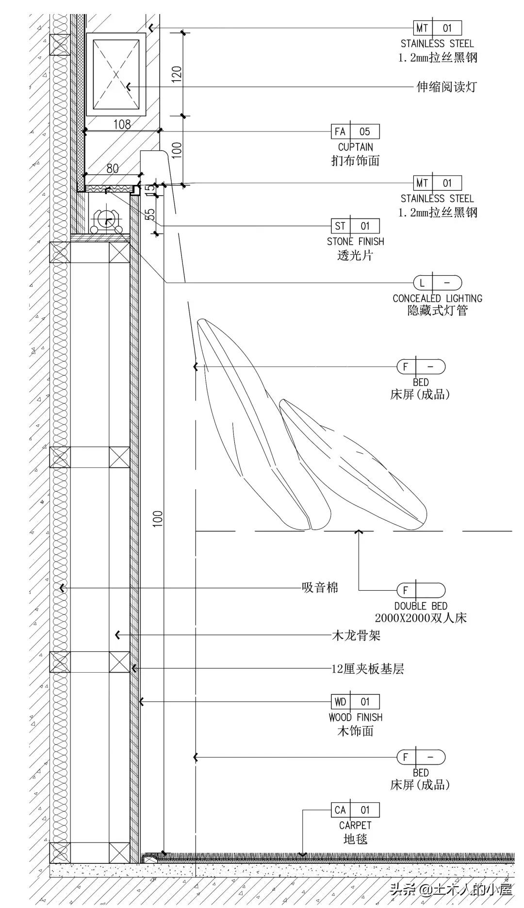
02. 床头背景①

标间床一般长宽不小于2000mm,床头背景采用棉麻硬包作为装饰背景,硬包颜色与质感的选择需与整体方案所匹配。


类似这种的造型,除了采用棉麻硬包外,还可以采用喷绘、刺绣、漆画、铁艺画、铆钉/铁钉、蜡染、绣片、钮扣或工艺交错形式呈现效果。


▲ 床头背景大样图
棉麻硬包与床背衔接处采用灯槽设计方式,内藏LED灯带,一般灯槽预留的宽度、深度为50mm,也有些项目造型情况特殊,最小尺寸可做到30mm,采用的是贴片灯带。
空间尺寸满足的情况下尽可能不低于50mm,特别是有些项目采用软管LED灯带,占用空间相对大些,一定要考虑散热处理。所有空间的LED灯带应注意布线和变压器的隐蔽处理,方便检修。
对于不带背板的床,一般我们在设计时会考虑在床背位置墙面增加软硬包造型,从舒适角度采用软包要更人性化。固定床背通常设计高度在1000mm~1200mm。
03. 床头背景②

床头扪布饰面两侧各留 255mm宽 的竖纹木饰面,收口使用 1.2mm 拉丝黑钢作为边条,再往两边就是镶嵌的 80mm 古铜蚀花条。

▲床头背景横剖面
本案采用木龙骨基层做法,木基层做法与全龙骨做法区别不仅仅是成本差异,很多时候全龙骨做法会比传统木龙骨更为快捷、省时,现在人工费用远远超过材料费用。
基层龙骨排布需要考虑床头柜机电布线,避免大面切割龙骨,机电点位在项目设计中可以做分离式、装配插接式、一体式,根据不同项目灵活运用。

在设计时我们应该考虑到床头柜的大小,是否带造型翻边,是否对机电点位有影响都要综合考虑。边柜灯可以根据设计要求采用吊灯、台灯、壁灯等设计方式,本案例采用一边吊灯一边台灯的形式,来满足顾客的需求。
有时考虑到吊灯稳固会增加与墙面连接装饰件,需注意装饰件的美观、精致。
04. 休闲区

房间休闲区需考虑空间尺度关系,避免活动家具过大、过小;需考虑沙发与窗帘盒的关系,避免与窗帘影响。

床与活动沙发之间的间距需考虑方便活动,一般不小于600mm。
需注意幕墙地台与窗帘盒、沙发、窗帘关系。
05. 窗帘

窗帘需满足自身完全遮光要求,如果是套房的话,所有与卧室连接的房间如主卫生间、客厅、更衣间等均不能向卧室内漏光, 可以考虑使用S弯轨道和卷帘槽设计。

窗帘盒宽度、高度一般控制在 200mm-250mm ,窗帘搭接口一般要重叠不小于 150mm ,且搭接口方向要与床头反向,窗帘盒遮光板应方便拆卸, 窗帘下沿可以考虑安装铅坠,且必须保证拖地,不漏光。
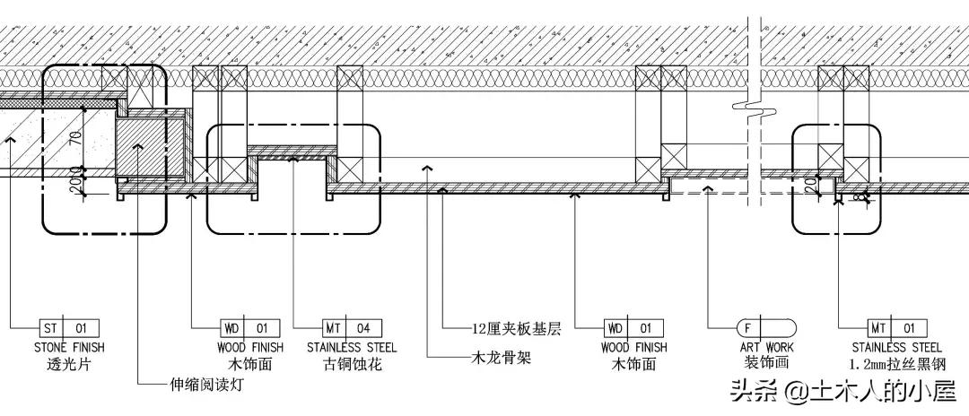
06. 电视背景墙


▲电视背景横剖面
电视背景墙采用扪布饰面硬包结合1.2mm拉丝黑钢属条装饰,壁龛需考虑TV、散热与金属收边条的关系等;
TV背后挂件需进行加固处理,电视柜需考虑与电视背景墙比例关系,电视柜内藏音响需考虑其规格及散热处理。
07. 工作区

标间工作区设计时应注意椅子与书桌的比例关系,避免椅子过大、过小,高度不协调问题产生,本案例采用的书案为长方形独立设置,规格为 1500mm*700mm。
书桌与电视柜延伸出的台面做了衔接设计,既节约了空间又增添了设计感。设置的书桌一般机电点位与柜体相结合设计,需考虑书桌与机电点位衔接美观。
常用机电点位暗藏于翻板下(避免翻板影响机电点位使用,翻板做阻灰处理),机电点位亦可设计在书桌侧面的底部,满足功能需求和美观。
如采用地插需考虑安装美观、与家具的结合关系,避免冲突影响使用。

迷你吧:
迷你吧可结合电视柜设计,满足基本的迷你吧功能性需求外(茶水壶、咖啡机、小冰箱等设备摆放),需要考虑茶水壶热气对墙面材料的影响。
台面需考虑止水、迷你吧柜体内小冰箱的规格尺寸、散热处理等,柜内设有背景光源,开门需考虑开关。
08. 地面

标间整个地面需考虑不同材质的交接关系、地面的隔声处理、回填的高度、地毯纹案的细节把控、与软装的关系等。

本案例入口走道、卫生间地面采用大理石铺设。其他区域均采用比较常见的印花地毯,也是常见的客房设计材料,也有些业主或设计师会选用木地板或者石材地面。
【图文内容来源:网络,版权归原作者所有】