
现在进门见厅的户型十分常见,伴随而来的是隐私性差和鞋柜找不到落脚地的烦恼,今天要介绍的胡先生家也是这样的情况。
但不用慌,这对专业人士来说这并不算太大的难题,本案设计师就给出了非常漂亮的解决方案,而且很有参考价值,跟着阿爽一起来学两招↓↓
基础信息
业主:胡先生 常住人口:3人
户型:三房两厅 建筑面积:138㎡
所在城市:江西 上饶
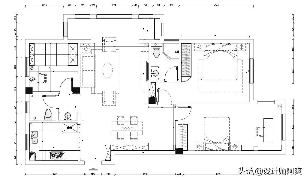
01
户型图

▲户型宽敞且采光也不错,但入户门正对客厅,私密性稍微差一点。公卫洗漱区独立出来,加上主卧也有卫生间,生活上还是很便利的。
02
玄关+餐厅
进门见厅,转角柜超强收纳

▲效果图

▲进门右手边就是餐厅,直接把墙作为背景,利用墙面转角打造玄关柜+餐边柜一体化设计,不但拥有超多储物空间,也制造了空间的视觉焦点。

▲侧面靠门的转角位置就是鞋柜,中部和底部留空,方便随手放东西和换常穿鞋。抽拉式换鞋凳不占空间,随用随拉非常方便。柜体还装了感应灯,回家也不用摸黑。

▲原木风的餐桌椅与餐边柜,质感朴素自然,增添家居温馨感。餐边柜部分设计了开放式层板,既方便放常用物品,又能作为展示区提升餐厅的颜值。

▲效果图

▲整墙餐边柜收纳力强大,白色亮面门板+柜门无把手设计,造型简洁利落,切角门板形成小三角,增加俏皮感。台面预留插座和壁挂式饮水机,还有红酒架和杯子格,平常冲泡茶饮很方便。
最左侧的柜门采用了“一门到顶”的设计,显得十分高挑,整体性很强。
03
客厅
格栅隔而不断,增强空间私密性


▲效果图

▲前面说到胡先生家的入户门正对客厅和阳台,私密性稍差,设计师在门和客厅中间增加了一道栅栏隔断,再放上一盆大绿植,营造隔而不断的美感,同时又避免客厅一览无余。

▲客厅沙发背景墙刷成了沉稳的墨绿色,与淡翠绿的沙发形成同色系搭配,一深一浅十分和谐,营造一种复古又清新的家居氛围。
沙发和茶几都选用了细脚设计,视觉上更显轻盈,而且打扫卫生也很轻松。

▲沙发背景墙已经足够亮眼,电视墙就以简洁为主,冷静的浅灰色和胡桃木色,搭配清新的绿色和热情的暖黄色,氛围静谧又不失高级感。
04
阳台
活用凹位,定制柜利用率更高

▲客厅与阳台之间放个落地置物架,可以摆放盆栽,也可以收纳喷壶等零碎物品。阳台一侧装了洗手池,清洗小件衣物、搞卫生很方便。(不过阳台柜侧边留了缝隙,容易形成卫生死角,要注意别踩坑啦)

▲另一侧阳台则嵌入了洗衣机,定制柜体完美包裹立柱,地柜既增加收纳空间,视觉上也更美观。
05
卫生间
洗漱台外移,干湿分离更实用


▲公卫将洗漱台外移,早上刷牙洗漱、上厕所不用排队争抢。浅灰色小方砖+白色美缝做背景墙,搭配高颜值的造型台上盆,非常赏心悦目。柜体底部悬空,平时清洁也很方便。

▲卫生间采用了黑白灰色系装修,简约又有高级感。墙排水+壁挂式马桶设计,整体简洁美观,排水管不与地面接触,没有卫生死角,后方的小台面刚好可以放洗浴用品。
06
厨房
原木色U型橱柜,布局高效合理

▲厨房虽然不算大但空间方正,做U型布局最为实用高效。好在采光不错,橱柜又采用原木+白的色彩搭配,大大减轻了局促感,显大不压抑。

▲效果图


▲胡先生家没有装油烟机,而是选择了集成灶,节省顶部空间,吊柜可以全用于收纳。电器也采用嵌入式设计,整体效果美观整洁。

▲水槽临窗设置,洗菜时抬头就能看窗外风景;另一边水槽内嵌洗碗机,解放双手更轻松。旁边的台面可以作为备菜区,或者放电饭煲等小厨电。
07
主卧
利用死角空间,凹位也能变废为宝


▲主卧的风格走简约路线,以米色+灰色系为主,营造温馨舒适的睡眠氛围。梳妆台的金属细腿和脏粉色窗帘,给卧室增添了几分精致感。

▲效果图

▲到顶趟门衣柜,衣物储存量不在话下,放下床头柜也不会影响柜门开关。衣柜侧面做了圆弧开放格,视觉上柔和美观,方便收纳包包、隔夜衣等。

▲卧室门后有个凹位,正好内嵌一个储物柜,增加了不少收纳空间。靠近卫生间也方便收纳纸巾等用品,保持卧室整洁不杂乱。
08
儿童房
封阳台做学习区,宽敞又明亮

▲效果图

▲卧室空间的色彩能直接影响居住者的休息状况,儿童房选用的是柔和的珊瑚粉色,原本还担心颜色太嫩,但刷出来的那一刻就俘获了女儿的芳心,这种温馨又浪漫的基调正是女儿想要的感觉。

▲衣柜同样做到顶,保证随着孩子的成长也能轻松收纳日渐增加的衣物。衣柜侧面设计成杂志架的样式,用来展示女儿的成长照,温馨有爱。


▲阳台打通纳入儿童房后,空间更显宽敞。阳台打造成学习+休闲的多功能区,光线很明亮。学习累了可以坐沙发上看看书休息一下,劳逸结合效率更高。

▲学习区并非简单放张书桌,还设计了书桌柜保证收纳性,孩子的书籍再多也能充分装下。升降椅可以根据孩子身高调整到合适的高度,养成正确坐姿。
09
榻榻米房
多功能空间,一体化设计彰显个性

(△ 效果图)

▲次卧面积不算大,设计成榻榻米房最大化利用空间,办公、休闲、睡眠和储物功能一应俱全,一房多用。
书桌台面延伸至榻榻米床上方,不但增加了三个抽屉储物,还能发挥床头柜功能。

▲书桌设置在光线最好的窗边,关上门就是独立的办公区,安静不受打扰。

▲衣柜+榻榻米一体化设计,能够充分提高空间利用率,算是小房间的最佳选择。家具靠墙设计,物品集中收纳,小空间保持干净整洁才能显得宽敞。

设计师:饶锦
“装饰美的享受是属于客户的,
创意的快乐是属于设计师的”
胡先生家没有花里胡哨的设计,而是将简约实用的原则贯彻到底。玄关柜+餐边柜一体化的转角柜、主卧凹位嵌入的收纳柜、厨房的U型布局,每一寸空间都被充分利用,都是可以照搬回家的设计细节。
你觉得这家哪一处设计最能打动你?不妨在留言区跟大家分享一下吧!