为提高钢筋管理水平,降低钢筋损耗率,增加钢筋收入,根据公司各部门宝贵经验和丰富案例汇总编制了以下内容。旨在帮助大家加深对钢筋配料、施工细节、算量技巧等知识了解的同时,抛砖引玉,引导大家充分发挥主观能动性解决过程中遇到的各项问题,从而实现项目钢筋利润的最大化。
一、物资采购控制
1、利用钢筋价格波动,来实现钢筋差价利润
钢筋每天的价格和股票一样都有波动,如现场有条件,和对市场的行情熟悉,在不影响现场施工进度及其他方面的情况下,钢筋采购也是盈利手段之一。
根据“我的钢铁网”等网站实时监控市场上钢筋价格波动,在钢筋价格较长时间处于低谷时,在上级批准后,可以适当多进钢筋,适当囤货;当钢筋价格处在高峰期时,项目的钢筋工长、物资部、商务部等相关部门要严格按照施工进度计划审核钢筋采购计划。


2、用过磅方式采购,用理论重量方式结算
根据国家标准,钢筋的直径和重量允许一定的偏差,公称直径≤20时,直径允许偏差范围为±0.40;公称直径为8~12mm时,实际重量与公称重量偏差±7%,公称直径为14~20mm时,偏差±5%。
钢筋进场后对其质量和数量认真检查验收,按标准重量进行换算,复核过磅重量。若复核重量>过磅重量,则按过磅重量接收,既在保证钢筋长度的情况下,节约了钢筋使用量;若复核重量<过磅重量,且超过规范要求,则要重新过磅或者清点核查,查找错误原因。通常市场上的钢筋实际重量低于理论重量,但盘圆钢筋时注意,往往实际重量大于理论重量,如A8的盘圆,理论重量是0.395,实际重量达到0.446,超过偏差±7%的范围,应拒收。
如此一来,仅采购环节就可盈利约3~4%点。各地市场交易方式差异导致项目钢筋在采购环节的节余率不同。
3、合理布置钢筋堆场,避免未使用先损失
钢筋进场后,应合理布置钢筋堆场,各种规格、型号钢筋不能混淆,准确清晰标识钢筋铭牌,成品和半成品分别码放,以便加工、吊装钢筋时查看、取料方便,提升工作效率,同时做好下垫上盖防护措施,避免钢筋生锈。

4、成品、半成品的保护,避免返工和钢筋浪费
成品、半成品的保护责任需落实到每一个施工班组,同时强化现场工人的成品半成品保护意识。对于已经切割好的钢筋,应按照钢筋的长度、直径等分类放置;对于已经加工好的钢筋成品,如钢筋笼、箍筋等,宜分门别类存放,存放场地应下垫上盖。远离油污,避免现场的机械用油污染钢筋成品或半成品;钢筋的成品存放区周围应设置围栏,防止现场施工机械碾压钢筋构件,导致构件变形或折断。

二、现场施工控制
1、合理翻样下料,提高钢筋使用率
(1)钢筋料表审核
① 钢筋构件钢筋型号的审查:注意钢筋型号规格、钢筋的等级(特殊或者不常见等级钢筋要引起重视)。
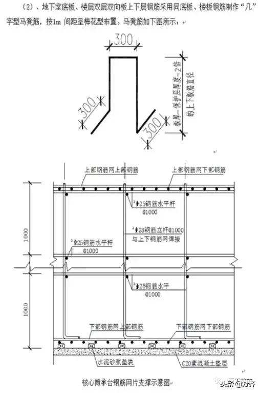
② 钢筋构件数量的审查:构件的受力钢筋、附加钢筋、洞口加强钢筋、规范规定的其他钢筋(如:双层双向钢筋的马凳筋、屋面的温度筋、有特殊规定的水电线管的保护钢筋、阳角附加钢筋、墙下无梁板底附加钢筋)等。
③ 钢筋下料尺寸的审查:注意工程抗震等级、钢筋锚固长度、搭接长度、钢筋伸长值的扣减(下料表中钢筋的长度要扣减伸长值,举几个比较常见的钢筋伸长值为例:90度的弯曲扣减值为2倍钢筋直径,45度的弯曲扣减值为0.5倍钢筋直径,135度的弯曲扣减值为2.5倍钢筋直径)等关键问题。
④ 钢筋受力断点的审查:根据图纸设计、施工规范确定钢筋的断点位置,断点要在受力最小位置。如:梁的底筋断点在边跨1/3,面筋在中跨1/3。
⑤ 钢筋重量的审查:钢筋型号分类重量的汇总。
(2)钢筋下料注意事项
钢筋的下料是整个钢筋工程的重要环节,直接影响现场钢筋的绑扎质量和钢筋工程的验收。钢筋要严格按照下料表进行制作,按照制作规范进行加工。要注意以下几个问题:
① 制作机械的选定:机械主要是桩芯的选定,多大的钢筋采用多大的桩芯,直接影响钢筋的弯曲幅度,影响钢筋制作的观感,影响制作钢筋的质量。钢筋弯曲时的特点:在钢筋弯曲处内弧缩短,外弧增长,中心长度不变。以下为钢筋弯曲内弧直径取值表:

② 钢筋大料的平直长度控制:施工图所指的钢筋长度是钢筋外轮廓尺寸,就是钢筋外皮到外皮的尺寸,这是施工中度量钢筋长度的基本依据。
③ 钢筋大料的弯钩长度控制:钢筋支座过小,不能满足钢筋的锚固长度的情况下,钢筋弯折,在制作时尺寸要准确。以免造成浪费或者不符合施工规范。如图所示:

④ 箍筋的弯钩平直长度的控制:箍筋的弯钩长度是按照平直长度计算。严格控制弯钩的长度,做到不浪费,按规范施工,这样绑扎出来的整体感官效果才好。箍筋弯钩的取值标准如图所示:

⑤ 注意弯曲调整值:钢筋在弯曲过程中会变长,这称钢筋的延伸率或伸长率,详见下表:

确保要弯曲的钢筋,除按上述内容控制钢筋的弯曲内径外,还需在翻样计算时应扣除弯曲调整值,钢筋下料长度应是已扣除了弯曲调整值后的长度。
如C25的钢筋,两端弯折90度 ,需扣除4d,即100长。根据测算,如不扣弯曲调正值,±0以上的工程浪费0.8%,如一个±0以上的工程有1000吨钢筋量就会浪费8吨。
⑥ 直螺纹钢筋车丝质量的控制:要严格控制丝头长度和完整丝扣的圈数,保证直螺纹车丝的质量,发现不合格要及时给予改正。钢筋切口要求必须使用砂轮切割机断面平整,对车丝成品要用塑料帽进行保护,防止损坏丝扣。各种型号钢筋车丝规定如下表:

(3)钢筋下料方法
项目部在对图纸和钢筋料表对照无误后,再对各种规格的钢筋总量进行材料采购,然后进行钢筋下料。在下料过程中把所有同强度等级同直径的钢筋依长度,由长到短的顺序进行一次组合排列,从中去发现一些规律,如相加下料规律、相乘下料规律、混合下料规律等等,从而节约钢材。
① 钢筋短料合理搭配下法
在钢筋制作过程中,同一种钢筋往往有多种下料尺寸。不应按下料单中的先后顺序下料,而应先截长料,所余钢筋往往能做短料,反之就会浪费钢筋。这是钢筋下料时节省钢筋的一项原则。例:某梁需用以下负弯矩筋,现场有9m长Ф25钢筋。 ①号筋 4.2m ③号筋 4.7m,如果按下料单下料的顺序分别下料,在截①号筋时会有600mm短头出现,而如果在截③号筋时,剩余4.3m钢筋,用搭配法下①筋料,只有100mm短头出现。另外在钢筋放样或计算钢筋下料时,应对短料的用处做到心中有数,例如,住宅楼的预制过梁、梁垫、烟道、管道侧面的附加筋、框架梁端头的负弯矩筋等。
② 相乘计算钢筋下料法
例:某商厦标准层主梁需用φ箍筋3000个,单个箍筋料长1.9m。在调直机普遍使用之前,盘条的调直加工一般是,用绞磨或卷杨机调直后,用大剪子截取箍筋时往往会出现大量的短头。在某商厦工程中,盘条采用卷杨机调直,正确的作法是,先计算1.9m×5=9.5(m),调直后的钢筋上截取600根9.5m长直条,然后再截取1.9m长箍筋,不会有短头出现。
③ 相加计算钢筋下料法
例:某商厦基础大梁需用以下两种长度的Ф25钢筋,其数量相近。现场有9m长钢筋。①Ф25 3.9m ②Ф25 4.9m,3.9m+4.9m=8.8m。显然,在1根9m长钢筋上可截取3.9m和4.9m长钢筋各一根,比分别截取两种钢筋,可减少短钢筋头,避免焊接。
④ 混合计算钢筋下料法
例如:某框架楼需要以下两种长度的Ф20负弯距筋,现场有12m的钢筋。①Ф20 3.8m ②Ф20 4.2m3.8×2+4.2m=11.8(m)。在一根12m长钢筋上截取2根3.8m钢筋和一根4.2m长钢筋为最佳下料方案。
在钢筋下料时,为了减少钢筋短头,需要经常采用相加法和混合法下料。这两种方法尤其适用于有多个下料尺寸的较粗钢筋的下料,是框架结构中经常采用的下料方法。
在框架结构的钢筋工程施工中,一般安排两个小组分别制作大梁的主筋。一组负责钢筋成型后的下料长度大于现场整尺长度的钢筋制作,另一组负责钢筋下料长度小于现场整尺长度的钢筋制作。后一小组在下料前应把有多个成型及下料尺寸的某一种钢筋下料单抄写在一起,然后运用加法与混合进行比对计算,设计出节省钢筋的最佳下料方案。
⑤ 上下柱结合钢筋下料法
例:某框架楼层高为4.2米,现需要对焊第二层柱筋。二层地面已留出650毫米长ф22柱筋。按一般作法柱筋截取同层高尺寸相等的长度,经对焊后在第二层、第三层顶板上均匀露出略小于650毫米长的钢筋柱头,但在常见的9米和12米整尺上截取4.2米柱筋后,均有大量的废短头和焊接出现。如果把第二层柱与第三层柱结合起来推算,这两根柱筋加起来总长为4.2米+4.2米=8.4米,如果设计第二层柱筋取4.5米(易从9米长整尺钢筋上取得),第三层柱筋取4米(易从12米钢筋上取得),则4.5米+4米=8.5(米),经过焊接后在第三层顶板上露出650毫米+100毫米-2×30毫米=690毫米长的钢筋柱头。结果既没有短头出现,也避免了短头钢筋接长的焊接。但第二层柱筋不宜设计太高,否则就会影响本层主梁钢筋的放置。
⑥ 报批代用钢筋下料法
例:某框架楼标准大梁中需用4550毫米长ф25负弯矩筋。现场有9米长钢筋。显然,若从9米长整尺钢筋上截取4.5米长钢筋,会比需用长度短5厘米。考虑此处负弯矩筋取用4.5米对结构的强度影响很小,可向设计人员提出申请代用,在征得设计人员同意后方可进行。这样可以省大量得钢筋避免焊接。
⑦ 一步到位钢筋下料法
例:某新建小区的每幢住宅楼外围均设有66根明柱,柱顶端在一层檐子底部标高为2.050米处封顶,且每根柱子配有6根ф16钢筋,现需要在基础工程中下料。
基础工程的柱子下料时,人们往往习惯于把每根柱子的柱筋甩出防潮层以上,并错开搭接在进行一层施工时再另下料接长,因为住宅楼结构图不像框架楼结构图那样出示柱子的剖面图,所以人们不太注意防潮层以上柱子的情况而按以上习惯性合作法下料。
如果认真查看柱子防潮层以上的情况就会发现,在防潮层以上甩出的较高柱筋的柱头距柱子顶部只有1.36米。所以考虑柱筋下料从基础直接到顶端,总共只有3.4米,可以一步到位。这样不仅减少了接头,而且省去了加密箍筋,预先绑扎柱骨架时一次把箍筋绑完,不仅节省人工,而且工程质量有保证。
另外,在一层标高2.400米处封顶的还有内墙构造柱GZ2、GZ3 、GZ4,其截面尺寸分别为370毫米×570毫米、370毫米×700毫米、370毫米×900毫米,主筋分别为10根ф14、10根ф14、12根ф14。其柱筋下料也可采用一步到位法。
由此可见,柱筋采取一步到位法下料,其综合经济效益非常可观。原来担心柱筋按照一步到位法下料,其绑扎成形后的骨架较高,将妨碍回填土,但实际问题不大,而且只有当两根柱子受到碰撞时才稍有变形。GZ2、GZ3 、GZ4因骨架宽大,稳定性很好。
⑧ 短尺定做钢筋下料法
有的钢筋经销处能进长短不齐但质量合格的钢筋,长度大多在7米以下,可以根据需要截到各种长度的短料,价格也不贵。进这种钢筋短料,不仅无短头,而且省去了机械切割费用,所以当工程中所需要钢筋短料时,可以根据钢筋下料单提前呈报、定做。
⑨ 废钢筋头降格使用下料法
例:某框架梁端头需用ф20负弯矩筋,料长1.88米;现场有直径ф22、长2米左右的短钢筋头。可以截取长1.88米ф22短钢筋头代替ф20钢筋使用。考虑这种做法会增大构件配筋率,为避免过量使用,具体实施时应降低一个规格使用。
⑩ 改接头钢筋下料法
住宅楼在圈梁主筋接长常常采用绑扎搭接,如果采用焊接方法接长,既节省了绑扎长度的钢筋也节省了加密箍筋。综合来看,焊接钢筋需要人工费、电费及焊条,与绑扎搭接需用的接头费用大致相抵,但可以节约箍筋。
框架楼大梁的底筋在柱子两侧往往有搭接接头。有的钢筋工按100%接头搭接率绑扎搭接,在下料时以两个柱子为一段分别截取钢筋,这样不仅会有大量的短头钢筋出现,而且大大的增加了钢筋焊接量,其损失较大。如果通长焊接,不仅避免了上述弊病,也减少了搭接接头,其综合经济效益也很可观。
⑪ 无短头起头钢筋下料法
例:某住宅基础网片为ф12钢筋绑扎搭接。现场有12米长钢筋。
施工规范规定:绑扎接头在同一截面内的百分率不大于25%,所以网片钢筋起头至少要四根相差1.3倍搭接长度的钢筋为一组,然后平排列。为避免出现短头,可以按以下方法起头:先截取长度+后余长度=12米
(1)2米+10米=12米 (2)3米+9米=12米 (3)4米+8米=12米 (4)5米+7米=12米 ,可取2组,并成一组,也可以把12米整长钢筋作为每一组的第五根。但制作时并不与每组起头捆在一起,而在布筋时单独排列。这种起头方法没有短钢筋头。
在框架楼大梁起头时,如果现场只有一种长度的整尺钢筋,可以把整尺钢筋一分为二,与整尺钢筋各50%起头。
⑫ 短头钢筋对接下料法
工地上往往堆放着一些暂时不用的短钢筋头,有时经过焊接后能作短料,但是这些钢筋头长短不齐,如果每两根进行对比,速度太慢。现在介绍一种便捷的对比方法。
先在地上划出两道平行的所需钢筋短料的尺寸线,然后把钢筋短头在地上对齐后,分别沿两道尺寸线平行摆放,再站在与钢筋垂直的一侧查看,如果两个钢筋两个端头的重叠量等于或略大于焊接预留量,可以把这两根钢筋拿出进行焊接,之后截成所需的短料。这种方法不仅快捷,而且废短头钢筋很少,但不能作为受力钢筋使用。按照混凝土结构设计规范规定,在钢筋焊接区段内,即两倍的35d(动荷载时2×45d)或2×500毫米范围内的短钢筋是不能用来连接焊接使用的。
(4)箍筋下料控制
箍筋一般都会提前下料,在钢筋管理的过程中,现场对箍筋加工量管理不足,未有效控制现场箍筋加工数量,且对楼层剩余箍筋未进行再利用,主体完工后必然存在多余箍筋。
建议做法:
①与劳务班组签订合同时约定,结余钢筋达到一定比例给予奖励,剩余或是浪费钢筋给予处罚;
②根据工程量收支台账,对箍筋钢筋用量实施实时监控,确保钢筋不领超;
③在给钢筋工的梁、柱料单后面应附一份箍筋型号以及数量的统计,在统计中将每种规格箍筋的数量适当减少,按料单的数量的95﹪给工人加工。在绑扎时箍筋不够可以再加工,如果箍筋加工多了就会有剩余。每层钢筋绑扎完可能会多一些箍筋,分规格进行整理,查看上层料单,上层能用的用到上层,上层用不了的进行切断再利用。10、12的箍筋可以切了做构造柱、圈梁植筋或插筋。8的钢筋可以切了做梁、柱拉钩。
(5)尾料控制
在钢筋制作过程中,应综合考虑料单的尺寸,根据组合排列的规律先截长料,再做短料,尽量减少尾料的产生;科学堆置尾料,合理、迅捷使用尾料,使用尾料作为部分措施筋;尾料可按不同规格,统一一头齐堆放,并在堆放处设置标尺,清晰分清各种长度,便于查找合适长度余料,或使用套筒连接,尽快利用。

2、结合图纸,合理利用规范条款
(1)钢筋安装位置规范允许偏差表
根据《混凝土结构工程施工质量验收规范GB50204-2015》,钢筋安装位置允许一定偏差,作为施工单位,要合理利用负偏差,达到节约钢筋的目的。绑扎墙柱筋时采用皮数杆,确保间距,同时钢筋验收时抽测钢筋绑扎间距,确保符合图纸和规范要求。规范允许偏差详见下表:
钢筋安装位置的允许偏差(混凝土结构工程施工质量验收规范GB50204-2015)钢筋安装一般控制项目

(2)注意新老规范钢筋间距变化
①基础筏板离基础梁边1/2板筋间距,且不大于75处,放第一根钢筋。由于老的做法是离基础梁50处放第一根钢筋的,施工班组还沿用老的做法,实际自03G101-1图集就已改成1/2板筋间距,且不大于75。
②板筋应离梁或墙边1/2板筋间距,放第一根钢筋,但施工班组还按老的做法离梁或墙边50处放第一根钢筋。

需要注意的是,实际施工时和与甲方核对时,应灵活选用有利的图集。相关内容图集见下图:

11G101-1

12G901-1
(3)注意抗震钢筋的使用,要及时确认
根据GB50666-2011《混凝土结构工程施工规范》5.2.2:对有抗震设防要求的结构,其纵向受力钢筋的性能应满足设计要求;当设计无具体要求时,对按一、二、三级抗震等级设计的框架和斜撑构件(含梯段)中的纵向受力钢筋应采用HRB335E、HRB400E、HRB500E、HRBF335E、HRBF400E或HRBF500E钢筋。
①当图纸未明确说明钢筋带“E”时,在图纸会审或是施工前发联系单明确提出具体构件纵向受力钢筋使用带“E”钢筋。
②应严格把控抗震钢筋的材料采购计划,与预算量实时对比,做出预警;施工时确保抗震钢筋用在对应部位,避免用抗震钢筋代替非抗震钢筋情况发生。


(4)明确钢筋连接方式
各个地区项目在编制施工方案时,结合图纸,在符合规范的情况下,根据当地水平,对比分析绑扎、焊接及机械连接的成本和收入,选择最优连接方式,进行施工与计量计价。为保计量计价资料完整,需在施工方案中明确范围,且施工后要在隐蔽资料和竣工图上体现出来。
①竖向钢筋连接方式从Φ≥18mm开始、水平方向钢筋从Φ≥25mm开始使用直螺纹套筒。现场可以减少钢筋搭接用量,搭接区间可减免箍筋加密数量。而直螺纹套筒又可以跟甲方单独计算费用。
②水平筋直径大于12mm要求焊接,如板筋或墙水平筋直径为14mm。二级抗震、混凝土等级C30,(LaE=40d)
(1)采用电弧焊(单面焊10d)接头长140mm;
(2)绑扎搭接长度:14×40×1.2=672mm;
每个接头多用钢筋532mm,约0.64公斤。
3、各阶段施工注意事项
(1)放线阶段要精确定位,钢筋固定牢靠
①墙、柱竖向钢筋在基础内就要精确定位、固定牢靠,可与基础钢筋焊接在一起。
②楼层模板安装好后应将轴线引测到模板面上,在梁柱交接处应按照轴线引测点用两个箍筋与柱纵向钢筋点焊固定,同时绑扎上部钢筋,在楼面以上500mm处用柱箍筋点焊固定;柱子和剪力墙等竖向构件的模板要按规范安装,且满足一定的强度、刚度、和稳定性,增强钢筋骨架的整体性确保钢筋保护层厚度。
③柱子和剪力墙等竖向构件钢筋应采用“定距框”方法控制主筋位置。“定距框”是用于限制剪力墙、暗柱和框架柱纵向主筋的工具,根据需控制部位的尺寸大小,可以预制成多种规格的拼装式“模板”,可以周转使用,根据柱截面大小竖向钢筋的数量设计间距使用Φ12~14钢筋制作定距框。
(2)基础施工阶段(包括塔吊基础)
①塔吊基础
采用5.5m×5.5m×1.5m的承台作为基础,采用构造配筋。有条件的话,尽量利用原承台,在原筏板下部增设暗梁,作为塔吊基础,或使用暗梁代替传统基础形式,从而节省钢筋,节省混凝土。
②大承台
箍筋下料长度一般很长,且大部份一根原材下料只有一只箍筋,余料非常多。可采用拼接的形式,灵活地把箍筋做成L形,U形,通过拼接来实现,减少钢筋损耗,同时向甲方和设计沟通确认,减少钢筋尾料废料的形成,还可以多算箍筋拼接的接头。

③筏板钢筋
实际施工中,常碰到错误地把筏板上部筋伸至基础梁的外侧边留保护层。注意端部无外伸的筏板上部筋锚入基础梁内≥12d,且至少伸至基础梁中线。每根钢筋两端则不会浪费一基础梁宽长度的钢筋。如基础梁宽600,每根筏板钢筋可减少浪费520mm。

(3)主体施工阶段
①地下室墙柱
基础相连的地下室一层墙柱插筋或人防墙柱插筋可考虑通长下料,不宜断开处理,从基础直接通到相邻楼层,尽量避免按照传统的施工方法,先做基础插筋,再连接通上去。
这样可减少钢筋搭接用量,且方便施工,后期结算还可以跟甲方计算钢筋搭接用量或者套筒用量。

②地下室顶板、屋面防水保护层钢筋
一般而言,地下室顶板、屋面防水保护层图纸设计为∅6 @150双向钢筋网,按照常规做法钢筋先下料,再绑扎。为了确保施工质量,施工现场采用焊接而成的半成品∅4 @150双向钢筋网,并跟业主与设计确认。既节省加工与安装的工日,节省成本,又加快施工进度。
③墙柱插筋优化
厚度较大的基础承台或筏板配筋中设置有中层网片,配筋率较大。工程为框架核心筒结构的超高层建筑,墙、柱配筋率较大,若按图纸要求施工所采用钢筋用量较大。此时可利用工程基础筏板厚度较厚,根据《11G101-3》图集P59页备注第四条,与设计沟通,优化施工方案,让墙、柱插筋伸至中层网片处弯折150mm,节省了一半底板厚度的竖向锚固钢筋。

④剪力墙纵筋搭接
按照图集11G101-1-70页,剪力墙钢筋搭接满足图集要求时,可100%搭接。但搭接长度无需乘1.6的搭接倍数,乘1.2即可。可避免现场翻样人员“按柱子纵筋在基础顶面或是楼板顶面是100%搭接,乘1.6的搭接倍数”的错误处理方式。

⑤柱插筋
当基础厚度满足图集要求时,柱插筋仅4角筋伸至底板钢筋网上,而不是插筋都到底板钢筋网片上。

⑥梁的主筋保护层
在实际下料过程中,还应考虑梁主筋放在柱最外侧纵筋内侧,所以还要多扣除柱主筋直径18~32mm,每根梁主筋至少可以节约18mm以上。
⑦板分布筋搭接
根据11G101,板分布筋自身及与受力主筋、构造钢筋的搭接长度为150mm,避免现场按“板负筋伸出支座长度一般都在600mm以上,大部分钢筋班组把负筋分布筋配长,甚至伸到支座边”的错误做法,每根分布筋可以减少450mm以上的浪费。

⑧阳台悬挑梁与框架梁
悬挑梁与框架梁之间的剪力墙长度小于2倍的钢筋锚固长度时,可以征求设计意见,将悬挑梁配筋与框架梁配筋改为相同配筋,施工时则可以将悬挑梁与框架梁拉通施工,可节约部分钢筋。

⑨梁非贯通主筋与架立筋的搭接只需150mm。

实际施工中经常发现有达到受拉搭接长度的。
需要注意的是,图纸在集中标注时加()表示架立筋,如2C20+(2C14)这2C14就是架立筋;如标注成2C20+2C14这里的2C14是通长筋。
⑩梁里双层钢筋的中间垫铁,现浇板、筏板、集水坑、承台里的马蹬筋,剪力墙的撑筋,框架柱的模板定位筋等等,都属于措施钢筋。
技术部门做施工方案时,预算部门及钢筋工长必须参加一起编制,部分要经过测算,采用哪种费用最低,如1米厚的底板措施筋采用“几”字型需要原尺寸的钢筋加工,若采用“一”字型,则可利用短料制作,这样不但利用短料,还节省了钢筋材料。施工方案中,马凳筋、梁筋垫铁、快易收口网、模板支撑定位钢筋、止水螺杆、止水钢板支撑钢筋等应方案中注明钢筋型号、类型尺寸、布置方式、布置间距等内容。与传统的方式对比,通过方案优化,可以节约钢筋材料;在方案中明确措施钢筋的信息,为后期结算提供依据,不少算、漏算。

⑪二次结构钢筋现场基本采用植筋,但是现在很多图纸和施工方案都没有明确,招标文件也没有,投标时也没有报价,导致后期结算要不到这笔费用,只能按照预埋钢筋计算。
如果图纸上明确要求二次结构需要植筋,招标文件没有明确,应在图纸会审时明确;如果没有明确,需要前期的施工组织设计中有明确的施工方案;并且施工组织设计是经过发包人、监理批准的。实际施工时应该有有效的现场签证,证明确实进行了这项施工,还应该确定施工规格、数量。
⑫基础梁箍筋方式的选用:基础梁箍筋在图纸上没有明确约定时可以选用内箍为开口箍的形式,达到节约钢筋的目的。如图所示:

图片来源网络,若有版权问题请联系我们删除