

「想要面朝大海,春暖花开的家」
现代主义建筑大师密斯·凡·德·罗说过:
“Less is more”—— 少即是多。
简单的东西往往带给人们的是更多的享受,
刻意的修饰却总是让人迷失纯粹的生活态度。
家

写在前言:
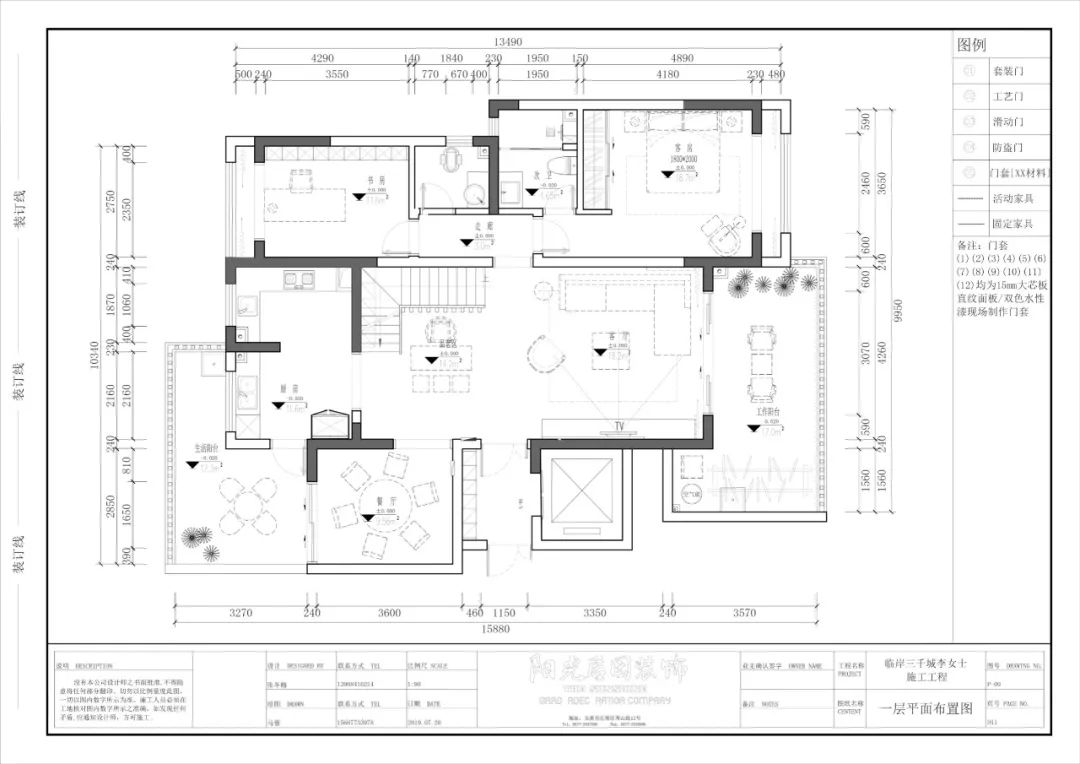
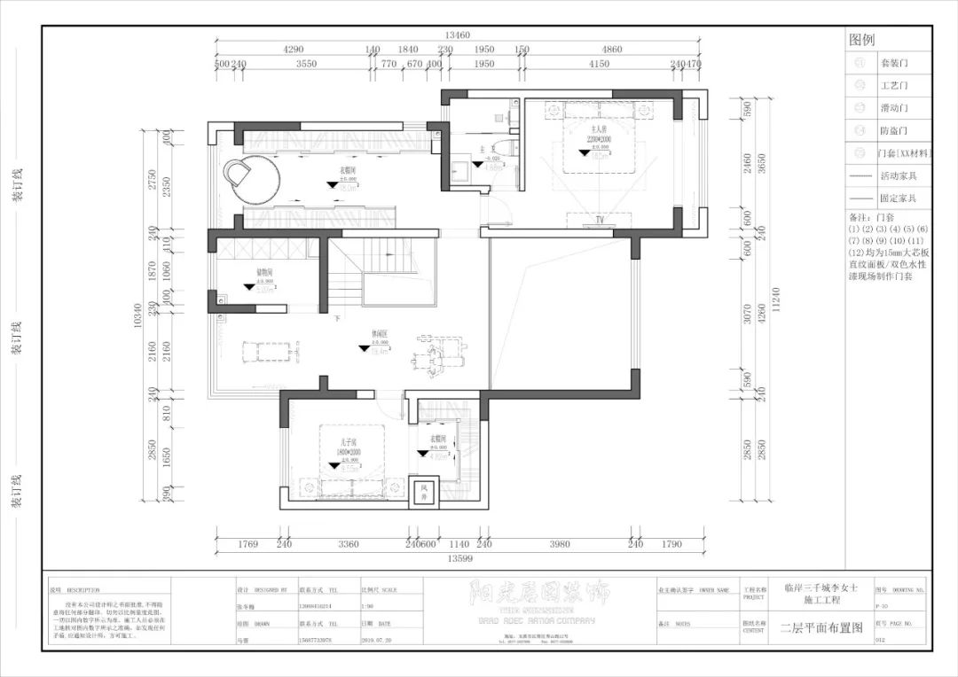
面积:286㎡
户型:6室2厅1厨3卫
项目名称:临岸三千
风格:现代简约风格
设计师:张冬梅
业主需求:
本案业主是一对年轻夫妇,注重轻松自在没有束缚的生活状态,主卧需要衣帽间,收纳空间要多。
对家的归属感,并不在于富丽堂皇的外表,而是和爱的人一起生活,温暖而幸福!
本案设计采用现代简约风格,用时尚简约的造型,打造一个简洁不失温馨的生活空间。
将居室空间布局与使用功能完美结合,在有限空间发挥最大使用效能。

平 面 布 置 图

平 面 布 置 图

平 面 效 果 图
客厅

▲白色墙壁,搭配浅灰色的简约沙发,低调沉稳大气。
电视柜没有过多的装饰,简单干净,亦如像生活一样,整体颜色素净装饰整洁。
大部分柜子采用抽屉结构,能收纳大量客厅杂物,关上柜门后,整齐干净,不影响客人对家的观感。
客厅内的茶几、矮柜等为整个空间增加吸睛亮点。
灰色地毯打破空间色彩上的单调感,燃爆视觉,征服你的感观。
客餐厅

▲简单的布艺沙发,有着棉麻的舒适感,搭配个小小的茶几,刚刚好,没有一点冗余~ 不同的角度决定不同的视野,客餐厅的完美划分,空间布局与使用功能完美结合。让人感受简约、明快的城市气质。

▲餐厅是家庭的中心,家人每天都会在这里用餐,采用圆桌让家人的交流更加方便。布艺餐椅环保又实用,与地砖和谐搭配,玻璃门方便了出入也提升了餐厅的亮度。
卧室


▲主卧室中融合了休闲、衣帽间于一体;室内造型设计简单,色调上类似于法式浪漫的味道;时尚又现代!原木家具搭配灰色系窗帘、床品,使整个房间暖暖的。简洁舒适、清新自然、非常具有生活气息。

▲次卧的整体空间线条简洁、结构明朗、饰物不冗赘体现了简约的特征,蕴含了一层自然原始的淳朴之风,浅色木质地板和墙面相呼应,是时尚与舒适的完美结合,在这样的卧室睡一觉起来一整天都是好心情。
设计理念
本案是采用现代简约风设计,满足现代都市人生活的格调与追求。这样的风格没有条条框框,隔断也很少,整体质感呈现出轻松自然的氛围,打造治愈感十足的美家!大面积暖色的原木调调,营造随和淡然的家居格调,仿佛回到家就能抛掉一切疲惫,还原最本质的初心,符合人们追求的“轻生活”。


— THE END —
格局改造 室内设计 项目施工
主材代购 家居配饰 园林设计及实施

十六年阳光专注打造生活私享家
尊享咨询热线:0877-2037995
新址:和谐大商汇家居建材城4栋104号
公司网址:www.yxygjyzs.com
我们期待您的来电!
