
张江临港综合区制造园项目位于中国(上海)自由贸易试验区临港综合区先行示范区内,作为科创中心的核心承载区——张江与主体承载区——临港两地联动的实质举措之一,该项目的建成将有力推动临港地区高端产业发展与智能制造中心建设。
中衡设计集团以严谨的产业战略定位研究为设计依据,以产业体量的模块化设计和对城市环境的积极回应为设计策略,赢得了上海张江临港投资开发有限公司的设计委托。

△ 连接城市轴线,与城市生活相呼应

△ 张江临港综合区制造园(效果图)

设计之初,在着手构思“建设什么样的先进制造园”之前,“建设支持哪些产业的先进制造园”是我们面临的核心问题。
在《中国制造2025》、《上海市制造业转型升级十三五规划》等产业战略的基础上,结合临港产业发展的需求和张江集团产业的招商优势进行产业专题研究和筛选,我们将产业园定位为“高品质、高标准中试和产业化基地”,以“中试生产”为主要引进对象和“拼装/加工,检测调试”作为生产功能延伸打造封闭研发闭环。

△高品质、高标准中试和产业化基地

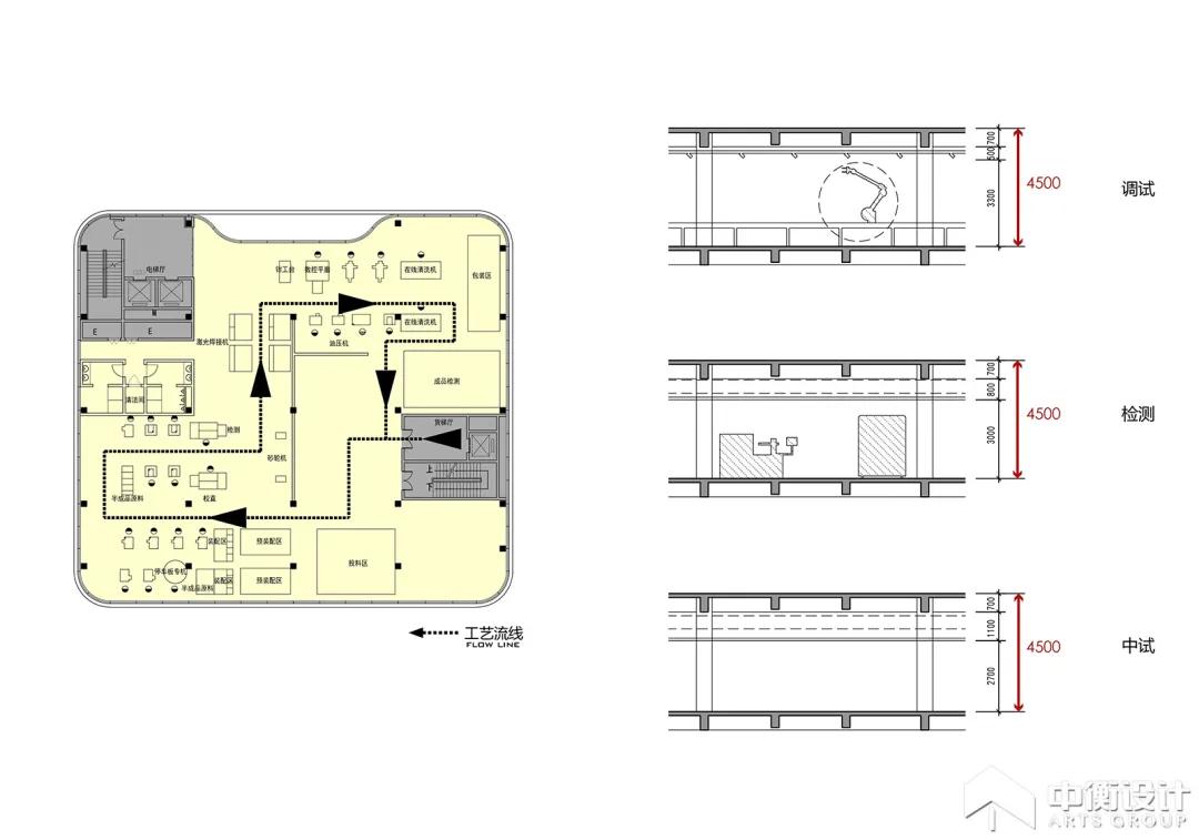
不同的生产行为对场地交通、土建条件等有着不同的要求。确定中试生产和拼装加工、检测调试作为产业园的主要功能后,我们以车间工艺布置为主题的基础研究。

△ 典型生产车间工艺布置图

在车间典型平面和产业模块体量分析的基础上,我们采取了模数化以及标准单元模块组合的设计手法进行标准厂房设计和产业园总体布局,以简洁规律的生成逻辑获得丰富空间层次,更进一步达到合理性、灵活性和经济性的统一。

△ 产业体量的模块化设计
模块化的设计策略提供了十分灵活的租售方式,这正是产业园开发的关键之处。此外,模块化的总体布局能够保证建筑群体完整性的同时,根据产业园的自身发展和功能更新的需求进行分期建设,使阶段性投入的建筑资金获得最大的效益。

△产业园开发的关键之处:灵活的租售策略


△ 产业体量模块效果图

在临港的上位规划和城市设计中,一条东西向步行主轴线恰需横穿场地。在项目中,我们积极利用了这一优势,将产业园向城区开放,实现公共空间最大价值。

△上位规划要求

△城市肌理分析
产业园总体布局与这条城市公共步行轴线呼应,园区内部结合步行轴线优化空间结构,鼓励公众参与,打造一个活力开放的产业园形象。

△方案生成:将产业园区向城市开放

△ 张江临港综合区制造园(整体效果图)
目前,本项目正在施工中。






△ 园区内部公共空间效果图
工程档案:
项目地点:临港区综合先行区,上海
业主:上海张江临港投资开发有限公司
设计时间:2017-2019
设计负责人:高霖
设计团队:赵海峰 乔梁 何晓宇 曹丽婷
用地面积:26444.35㎡
地上建筑面积:43890.43㎡
地下建筑面积:19310.10㎡
综合容积率:1.66
建筑密度:48.55%
文案编辑:陈婷
版式设计:邢可
文章及图片版权:中衡设计集团
本文转载自:中衡设计集团,已授权