
武汉友谊国际酒店是按照国家五星级饭店标准建造,位于武汉市核心地段,两桥中心区域、沙湖公园旁。总营业面积28000平方米,拥有298间豪华客房,停车位近550个;拥有专业的会议服务团队,全程量身打造会议策划方案,配备有多功能会场,主会议中心先进的影音系统及升降旋转舞台唯武汉友谊国际酒店独有;酒店设有可容纳1000人的宴会大厅、豪华私密的中餐厅包房、雅典风格的西餐厅,是举行各类会议、贸易展览、高端宴会和国际电话视频会议等活动的理想之地。
武汉友谊国际酒店娱乐、康体设施齐全、五星级SPA水会和KTV俱乐部、室内恒温游泳池、健身房、兵乓球室、棋牌室让宾客焕发活力、放松身心。还提供24小时客房送餐服务、行政楼层及行政酒廊服务、女士专享楼层服务、贴身管家服务等。周边各类资源丰厚,楚河汉街及各类综合购物中心环佈酒店四周,交通购物消费十分便利。
武汉友谊国际酒店集环境优美、功能设施、交通便利等优势于一身,为您缔造时尚优雅的休闲差旅环境,让您的繁忙商旅变得更加便捷、轻松!
大堂吧
酒店大堂吧内部装潢奢华典雅,尊贵内敛。舒适的沙发,盛开的鲜花,真诚的笑脸,温馨氛围,真诚的笑脸,让风尘仆仆的您感到亲切与宁静。

丰富的水果,精致的甜点,尽享午后闲暇时光。

自助餐厅
优质的服务,舒适的环境雅典装饰风格的西餐厅/自助餐厅
集零点和自助餐于一体,提供会议自助餐、自助式婚宴、西餐零点、客房送餐服务


中餐包厢
武汉友谊国际酒店菜系燕鲍翅等高端名菜为主,集粤、鄂、川等地方菜之精华,为广大顾客奉献美味佳肴。


主题宴会

友谊国际宴会厅
配备完善的会议设施,专业的宴会销售队伍是举办各类国际性研讨会、新闻发布会、客户答谢会,更是举办完美婚礼的首选场所。


会议室 & 会议设施设备
专业会议管家团队,为您提供优质会议服务,免除您会议后顾之忧

剧院式

超高12米挑高会场;3D全新投影;450°旋转升降舞台;超清LED电子屏;Wifi全场覆盖;星光大道T台;大型仪式交接台;电视电话会议设备;可视会议设备;嵌入式投影仪和屏幕;LCD液晶电视、DVD*放播**器;可调控灯光系统;音频扩声系统、卡拉OK系统;演讲台、无线及有线网络、无线及有线麦克风。

课桌式(大)


岛屿式


课桌式(小)


董事会/讨论式


休息室/会客式


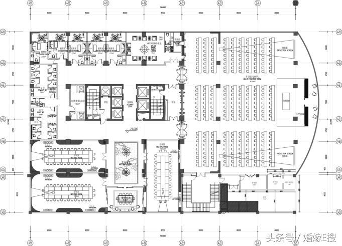
五楼多功能厅平面图(851平米)


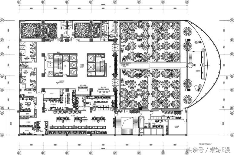
三楼宴会厅平面图(960平米)


会议设施

客房介绍
298间高贵、奢华、雅致的客房,30%房间临湖,沙湖美景尽收眼底。


客房设施
酒店客房和行政套房提供的不仅仅是五星标准的设备…四十四英寸液晶电视;卫星频道 传真机及物联网办公措施;智能灯光系统;免费无线网络;全景落地玻璃。


游泳池


健身房


康体娱乐
以亲水生活为主题,亚健康调理为目标,保健养身为深刻内涵,给来宾以全新的感受。


亲子主题游泳池


酒店地理区位& 周边景点

在新的一年,武汉友谊国际酒店不忘初心 努力前行,发展自身优势,更加诚挚贴心的为客户服务,继续打造武汉超一流的五星级企业。