在上海安静而富有文化气息的静安街道,清清一家三口购置了一套使用面积只有33㎡的复式公寓,在寸土寸金的位置买房只能舍却大面积,但是将迷你小屋设计好,同样能住大住出品质。



写在开头,关于买房
我们买的这套房位于静安区的中心地段,当时主要考虑到孩子上学方便,而且这里步行到梅龙镇广场、艺海剧院十分钟,周围环境、文化氛围都非常好。买房是在2016年初,这套房子产证面积48㎡,层高4.2米是双层的复式结构,只算一层面积,买完没多久房价大涨了近50%,现在看来还是很明智的选择。

找装修公司—— 一站式购物更省心
多年前装修就一直在红星买家具,这次装修之前也是特意到红星卖场逛逛找点设计灵感,正好进了家倍得,这是红星自营的装修公司,跟设计师张艳华沟通下来,我想要地中海风格,感觉她的设计理念跟我很合拍,报价性价比比较高。

这是设计师最初出的效果图,蓝白的地中海丰富的储物功能,我一看就很喜欢。
另外我们本来也就要在红星买建材家具,而家倍得提供建材代购服务,能获得联盟商户特供商品及优惠服务,并且他们跟服务商长期合作更有经验,质量也更有保障,所以就选了他们。


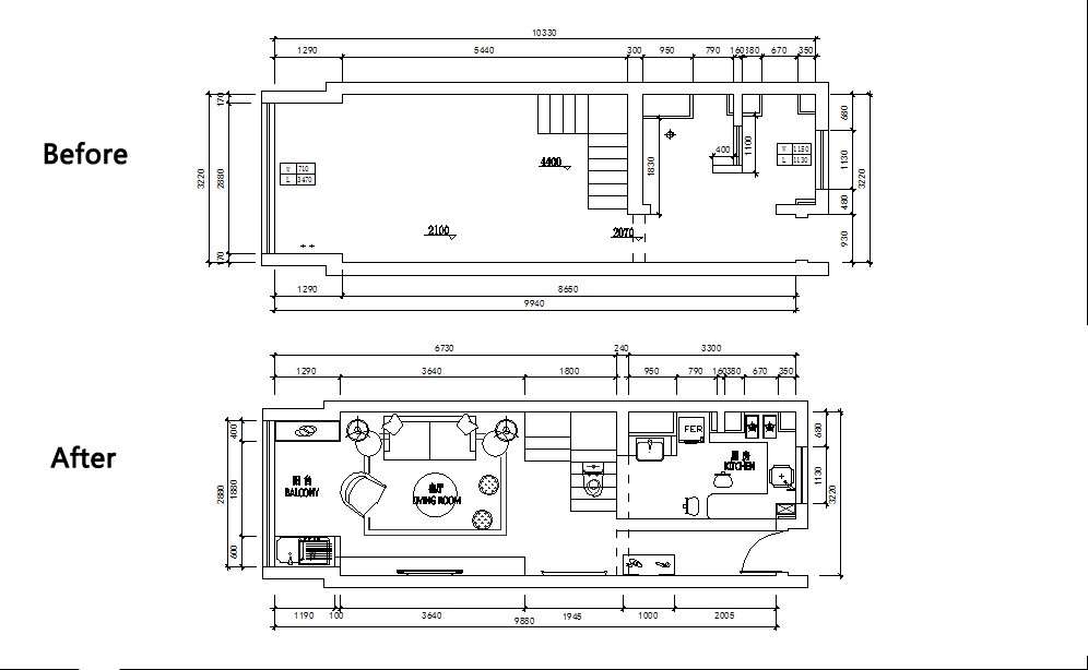
改结构:空间利用得好就等于赚到啦!
我们这个小家是复式结构,原来进门处厨房和卫生间是两个封闭空间,比较压抑,二楼没有卫生间,并且主卧是敞开的空间。设计师做了几个关键的改造:

1、一楼 厨房拓宽做成开放式,卫生间做了干湿分离,利用楼梯下角落做了个迷你卫生间,有效利用了犄角空间,又让格局宽敞大气。

看,这是实景效果。
厨房的花砖也是非常满意的地方,这个搭配复古又时髦。家里瓷砖选的是诺贝尔的塞纳印象复古砖,为耐脏易清洁选择了美缝。

卫生间的门,最后用了这种有点谷仓门的效果。

2、楼梯做了拓宽,二楼新增搭建增设卫浴空间,主卧改封闭更私密。

这里就是因为楼梯上方新增的搭建,才有了如今二楼干湿分离的浴室,家人一般生活在二楼,把一楼的淋浴空间移到二楼更实用,同时主卧也改为封闭式空间。


3、儿童房的外部新增了一块搭建,底部是设备存放区,上方改出了一个小型榻榻米茶座,两边更有丰富储物功能。
这样一来,原本一层33 ㎡的套内面积经过改造,已经扩出77 ㎡的使用面积,房子当初买的时候8 万的单价,现在要十几万了吧,感觉赚翻了有木有?!
收纳及功能型设计超丰富!
还有一个另外非常满意的地方,是家里设置了大量的储物空间,背景墙、电视墙、阳台、儿童房、主卧大衣柜,你想得到的地方都能放东西。
阳台

增加了洗衣区储物柜和水槽,另一侧简单的边柜存放零碎杂物。
主卧



隐藏房型缺陷,储物两不误 电视背景墙增加了柜子、展示架,并且通过柜体深度深浅变化,有效掩饰了房子原本的缺陷,原来这面墙有几个难看的矩形垛子,被巧妙隐藏在柜子里。
儿童房


满满一墙的储物空间,抽屉、柜子、书桌、展示架功能一应俱全。
最满意的是软装
以前我装修都是自己配的家具软装毕竟不专业,这一次我们请了设计师还真的不一样,整体的搭配更有整体性和协调感,设计师总是会提前想到方案征求我的意见,几次沟通下来我觉得她眼光很好,也就完全放心交给她了。软装搭配其实是我最满意的地方,儿童房的壁纸和床上布艺饰品,都是海军风,孩子也特别喜欢。


海洋风的饰品和空间特别配,孩*弹子**琴、玩耍都有专属的区域。


主卧床头和过道的这两款壁纸,意境特别好,就是那种海滨小城的感觉,有令我们向往的生活。
经验分享

Q :家里使用下来最值得推荐的东西是什么?
A :想要重点推荐两样东西,第一是厨房买了一款方太水槽式洗碗机,它使用起来省空间、省力省时间,而且洗得非常干净,可以一次洗6-8个碗及6-8个碟子,耗时二十多分钟,虽然小贵但是用下来真心觉得很方便。
第二是一种循环热水泵,家里有多处水龙头并且分别排布在厨房、两层楼的洗手台干区、阳台等几处,平时想要用热水管路太长出水时间久,用小厨宝的也要加好几个很不方便,所以特地选择了林内的一款新热水器,增加了循环热泵,它使管道里的水循环并且保持恒温,随处随时都能出热水,这个真心方便。
房型图展示


最后附上一些材料清单,仅供参考
