
姚远
山东临沂回到从前餐饮管理有限公司
设计总监
北京方象空间设计有限公司合伙人

项 目 简 介
项目名称:临沂上岛咖啡欧蕾餐厅改造
项目性质:餐饮空间
项目地址:山东临沂
项目面积:500平方米
主要建材:木地板、铁方管、墙纸、石材
主创设计:姚远
参与设计:初文,房增杰

姚远 | 临沂上岛咖啡欧蕾餐厅改造

一座城市往往会留给长年生活于其中的人很多若有若无的记忆。不用刻意去记起,它却能深深扎根在心里。就算多年后你再次不经意地遇见,会发现它仍然在那里等你——或许,它随着时间推移变得满目沧桑;或许,它反而愈显历久弥新。这种记忆可能是一条路、一条小河、一座街边球场,也可能是一家餐厅。

上岛咖啡欧蕾餐厅正是这样的一家餐厅。历经十多年的岁月更替,它磨砺出自己独特的积淀与味道,也积累了为数众多的忠实拥趸,但同时也不可避免日显旧态。经营者希望在保留其骨子里的文化精髓前提下,让其焕发出全新的风采。思维再三,“摩登复古”成为设计师对其改造设计的定位。

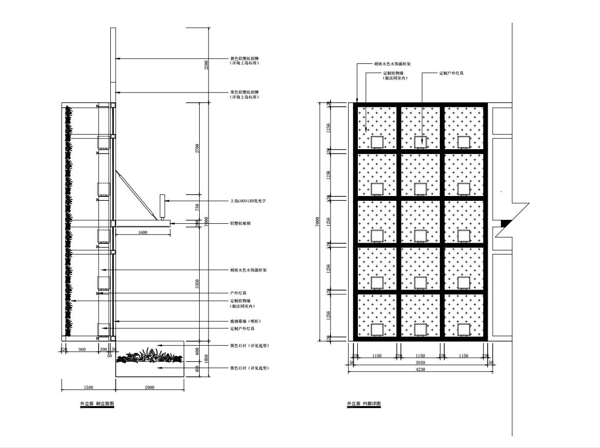
由于餐厅的地理位置在城市支路上,且纵深很长,设计师希望通过对外立面的改造使其尽可能醒目的同时能引入更多的自然光,让顾客有舒心的就餐体验。新外立面采用整体外挑的铝合金框加全透明玻璃形式,而入口旁边的一幅高大的植物墙加大尺度木框架和重复台灯的组合打破了平衡感和程式化,令其产生了极具现代意味的变化,像一篇华丽乐章的开端,让人不自觉地想深入一探究竟。

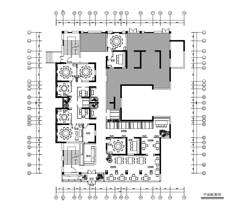
餐厅楼上是一座高层住宅,所以内部结构错综复杂,众多柱体和剪力墙横亘其中,对空间的合理重构造成了不小的影响。设计师在综合考虑空间氛围和主体客户群的消费心理基础上,将室内分成了开阔的散座区域、半私密的卡座区域、较为私密的高隔断独立餐区和封闭的包间区域,而后三者在保持相对分隔的同时又互相交错其中,构成了丰富的空间层次。

入口前厅和散座区域的装饰形态就为整个餐厅的“摩登复古”风格定下了坚实的基调。烟灰色的原始结构顶面、深灰色铁方管纵横交错的弧面造型以及由此演变的酒水柜和墙面基础图案、仿旧木地板的主体墙面和序列感极强的黑白两色石材地面构成了餐厅的主体氛围,简洁有力的现代语言重塑了那个久远的黄金年代投影在人心中的记忆。

开敞的散座区域正对外立面的长幅植物墙在空间上打破了暗色调笼罩的沉闷感,同时又呼应了外观的高幅植物墙,营造出轻松愉悦的就餐环境。设计师在原有三根柱体的基础上又增加了两根同样尺寸的假柱,并将这五根柱子做成了兼具装饰和备餐功能于一体的陈列柜,增强空间进深序列感的同时强化了靠窗处双人餐区的私密性。

半私密的卡座区域是餐厅自然光最弱处,相对幽静的同时却又过于阴暗,设计师采用了大幅的红色壁画来提亮此区域,另外安置了一组木色廊架在其中,上面布满低垂的绿植,让人宛如置身午后花园中就餐。高隔断独立餐区介于卡座和包间之间,隔断的方式和卡座一脉相承,延续了廊架这一符号,只是更强化了私密性,同时在狭窄的空间内显得并不闭塞。

上岛施工图-公共空间
包间区域更多是为主体客户群营造的独立空间,装饰上主要延续了大厅的整体元素,让空间语言贯穿进来。包间的装饰另外增加了其他空间所没有的材质和色彩组合,如爱马仕橙皮革镶嵌铜钉的硬包折屏造型,配以设计感极强的灯具和壁饰,塑造了温暖而又富有激情的调性,为顾客创造出独特的就餐体验。

上岛施工图-包间及外立面-01

上岛施工图-包间及外立面-02
主要作品
山东观唐温泉度假村会所及汤屋套房等
芭缇雅量贩式KTV沂水店
芭缇雅量贩式KTV菏*东泽**方红店
澜小馆临沂兰山路店
回到从前高碑店店
回到从前白沟店
回到从前临沂店
回到从前平邑店等
如果您有什么想法,可以在下方给我们留言评论↓↓↓
[我们尊重原创。文字美图素材,版权属于原作者。部分文章推送时因种种原因未能与原作者联系上,若涉及版权问题,敬请原作者联系我们,立即处理]
精 致 推 荐

