复工复产以来
憋坏了的你是不是已经把各大商场都逛了一个遍呢
掰着手指头数了又数
不是万象城、万达广场
就是恒隆广场、和谐广场
还真是激发不起逛GAI的欲望
今天我们一起来看看
接下来要把你的花呗透支到底的魔鬼有哪些吧
龙湖奥体天街

济南龙湖奥体天街项目是龙湖商业在济南的第一个商业项目,位于济南CBD片区,3公里生活圈辐射整个东部片区,依托地铁3号线和6号线*轨双**接驳。

龙湖奥体天街定位“轻质生活优选地”,众多品牌首入济南,引进山东首家永辉超市、东部第二家CGV影城、孩子王、星聚会KTV、海底捞等主力品牌,另有星巴克、徽州小镇、谭家弄堂、韩宫宴、圣巴罗、蛙来哒等品牌店强势入驻。
位置:礼耕路西首
开业时间:2020年12月

济南文旅城融创茂

济南文旅城占地面积238万平米,建筑面积550万平米,涵盖融创茂、冰篮馆、海世界、水世界、体育世界、融创乐园,酒吧街、星级酒店群、滨河公园、大型秀场等。

济南融创茂占地20公顷,总建筑面积约26.8万平米,是传统MALL的2-3倍大,是山东省体量最大的商业综合体之一。

济南融创茂涵盖室内海世界、水世界、体育世界、购物中心等新型业态

济南融创茂室内乐园总建筑面积2.0万平方米,共三层,为融创首个实现海洋乐园、水乐园和体育乐园及商业茂之间“三园互动、街区融合”的案例。
乐园通过开放的海洋球池区与海洋乐园互相渗透,互借互用,资源共享。体育乐园自身项目丰富多样,围绕冒险世界、天空之城、运动竞技、运动达人和运动俱乐部五大主题区,设置了近50项创新型娱乐项目,快乐健康、新颖刺激。
位置:位于历城区,北至经十路、南到旅游路、西起莲花山、东近绕城高速
开业时间:2021年5月
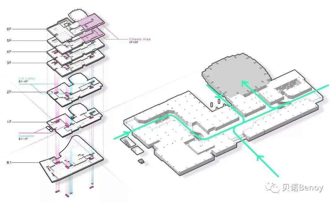
山东IFC国金中心绿地大馆

绿地·大馆商业MALL、大馆里低密商业街区、情景化主题街区、社区风情商业街区,围合城市级商业中心,汇集一线大牌、时尚家居、世界美食、品牌餐饮、娱乐天地、文化休闲等众多引领型业态,对标北京三里屯、上海新天地,打造24小时城市活力消费都心,形成具有济南人文内涵的城市新景观,吸引本地人及游客光顾。

绿地·大馆邀请世界著名建筑设计公司——贝诺(Benoy)进行室内设计。Benoy根据业主研究和梳理后设定的主打消费人群为时尚潮流青年领袖和中产阶级家庭,目标打造一处聚集城市新贵们的人文时尚目的地。由此针对未来招商希望引入各品类顶尖品牌,面向对生活有追求的消费者,用重体验形的购物理念颠覆传统商业,对抗电商对实体商业带来的冲击。

山东绿地大馆的建筑面积超过60,000平方米,随着项目的顺利推进,即时必将重领济南这座山东省会城市的商业新风向标。

位置:济南山东IFC国际金融中心裙楼商业
开业时间:预计2022年

济南远大购物广场
济南远大购物广场地处西客站片区中轴线核心位置,由三个地块组成,项目总用地面积16.9万平方米,距离济南西客站(高铁站)直线距离3公里,连接地铁6号线、1号线双地铁。建筑规模超100万平方米,其中南区主楼高达202米。

济南远大购物广场,联动西部新城的三馆一院、宜家、迪卡侬等等,以自身约3万平米的中央绿谷景观,自持的五星级酒店、光合写字楼、大型购物中心、高端菁英公寓、文化主题商街等五大业态。

济南远大购物广场由美国JERDE公司设计,该公司曾为日本设计了著名城市综合体——难波公园。JERDE笔下的远大购物广场整体规划高度从两侧到中间逐渐跌落,呈现了一处3D立体沉浸式生态绿谷型的城市综合体。

位置:济南西客站片区,南至日照路,北邻威海路,西至潍坊路,东邻滨洲路
开业时间:预计2021年年底
济南长清世茂广场

长清世茂广场项目是世茂在济南投资的第三个大型商业综合体项目,占地约270亩,项目总建筑面积约60万平方米,总投资约50亿元,将着力打造商业购物中心、休闲文旅商业街、宜居宜业示范区为一体的大型综合体项目。


该项目位于长清老城核心区,规划了风情街区、品质住宅、精品公寓、shoppingmall四大业态。世茂还带来了我们期待已久的的长清宽厚里,在这里可以体验到长清的历史气息,文化、建筑与商业格调达到统一。

位置:济南长清区文昌路与宾谷街交汇处
开业时间:预计2021年
济南大悦城

日前,中粮济南大悦城项目举行了开工奠基仪式。大悦城去年9月竞得位于济钢西侧的约318亩土地,共7个地块,包括6宗住宅用地和1宗商业用地,后者面积约61亩。
大悦城竞得的商业地块A11在工业北路与钢化路交叉口的西北角,公开信息显示,济南的大悦城项目计容总建筑面积54.32万平方米,其中大悦城商业综合体10.29万平方米,住宅40万平方米,总部办公楼4万平方米。项目分四期开发。

印象城2店

济南印象城首店——洪家楼印象城

济南望岳中心位于市中区南北康片区省道103西侧,分水岭路以南;用地面积4.02公顷,规划建筑面积46万平方米;项目毗邻顺河高架南延线,规划的M2号线站点位于项目东侧。
项目计划引入印力、泊寓、万创汇三大商务及生活配套,定位打造金融、总部、科技三大类的产业聚集,计划招商科创、银行金融、企业总部三大行业。
项目建设5栋塔楼和1座购物中心,其中TI塔楼规划为54层、300米超高层甲级写字间,单体建筑面积11万平方木,由市中控股集团回购,自持运营。
项目购物中心板块建成后有望成为印象城2店,与隔壁的贵和购物中心领秀城店和绿地瑞丽城隔街相望,项目预计2025年投入运营。
CCPARK2店

济南CCPARK首店——文化西路CCPARK

轨道交通R2线腊山站上盖开发项目规划建设南北两栋塔楼、商业裙房、地下车库及其他配套设施。届时,2号线腊山站外便是商业地带,将实现上盖TOD模式开发。
该项目位于张庄路与经十路西北角,主要建设南北两栋塔楼、商业裙房、地下车库及其他配套设施。该项目规划建设用地面积15105.09平方米,包括南侧塔楼地上16层,北侧塔楼地上24层,商业裙房地上4层,地下车库地下3层。其中,规划建设商业面积27868.27平方米,北侧塔楼面积为32903.15平方米,南侧塔楼面积为12917.92平方米。项目商业裙房建成后有望成为CCPARK2店。
环宇城2店—中海华山环宇城

济南环宇城首店——中海环宇城

环宇城项目即华山片区二环东路东侧E-1地块建设工程规划许可公示牌显示,该项目建设用地面积10.94万平方米,总建筑面积51.56万平方米。其中,地上建筑面积33.6万平方米,地上商务办公建筑面积19.23万平方米,商业建筑面积14.19万平方米;地下商业建筑面积1.64万平方米。项目建筑面积约16万平方米,商业可租赁面积6万平方米,是济南北城最大商业综合体
公示显示,该项目分为一期、二期建设。一期规划为4层至6层的商业综合体项目和一座23层的酒店,二期为6栋11至32层的办公写字楼。项目预计2022年对外营业。