现在农村里盖房可不像从前那么随便,一顿饭一包烟的请个包工头来家里拿纸笔,看看谁家的房子好看花个草图拷贝一份就开始建。现在的人生活水平高了,盖房的要求自然也提高了。都很讲究细节,希望自家房子别具一格又漂亮时尚。今天小编分享三款农村二层民宅设计图,在农村就十分受欢迎。
款式一:农村二层别墅设计图,占地110平米,外观对称设计
图纸介绍:这款二层别墅占地110平左右,外观简洁,对称设计,户型方正,米白色和砖红色搭配精美的外墙,采用涂料材质,施工方便简捷,而且降低了整体成本,却又不失整体档次,超强的现代感和层次感,简单大方的造型符合80后、90后年轻人的审美,入户门厅设立成外飘形式,增加建筑的造型感,丰富立面。后门入户形式,设有上下台阶,阳台和屋檐细节,每一处设计得都很细腻。
占地面积:11.4m*10.32m,108.98平方米左右;
建筑层高:二层;
建筑高度:9.56米(含屋顶);
设计功能:
一层户型:玄关、客厅、厨房、餐厅、阳光房、卫生间;
二层户型:活动空间、卧室(带卫生间)、卧室x2、卫生间、阳台;



二层别墅设计图
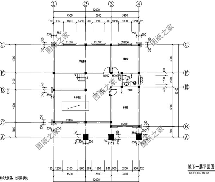
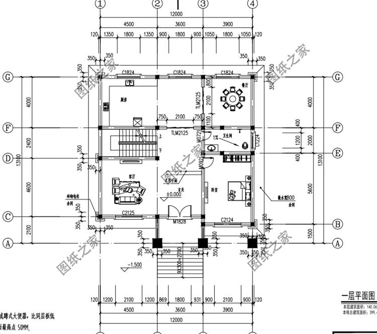
款式二:农村二层自建别墅设计图,带地下室设计,外观大气
图纸介绍:这款二层自建别墅占地140平米左右,带地下室设计,外观明亮温暖,下有地下室,上有大露台,最大化开发房子的空间功能,全方位满足业主的居住需求,提供舒适的高品质生活。这套户型,不仅在空间上进行了拓展,而且室内布局同样精细实用。
占地面积:12.00m*13.10m,140平方米左右;
建筑层高:二层;
建筑高度:10.08米(含屋顶);
设计功能:
地下一层户型:家庭影院、棋牌室、乒乓球室、储物间、卫生间;
一层户型:玄关、客厅、餐厅、厨房 、卧室、卫生间;
二层户型:卧室x4、卫生间、休息室、露台x3;





二层别墅设计图
款式三:农村二层自建别墅设计图,占地121平米,外观精致好看
图纸介绍:本户型占地120平米左右,户型精美,外观造型耐看又实用,经典永流传,别墅采用人字形屋顶造型,外墙采用灰色涂料作为装饰,最底层用文化石作为装饰,让整个房子造型更加的有活力。多窗设计满足室内采光,南北通透,玻璃装饰露台让整体房子看起来更加的灵动耐看。占地面积:11.16m*10.76m,121.48平方米左右;建筑层高:二层;建筑高度:9.745米(含屋顶);设计功能: 一层户型:客厅、中西厨房、餐厅、卧室(带卫生间)、棋牌室、卫生间;二层户型:书房、卧室(带卫生间)、卧室x3、卫生间、阳台;



二层别墅设计图
这三款户型不知道大家喜欢哪一款?欢迎下方评论留言。本文由图纸之家官网原创,欢迎关注,带你一起长知识!