新春降至,在各地工作、创业的您,或许将收拾行囊,踏上归家之路,您一定想给家人一份最珍贵的礼物,那您是否考虑回家置业这份惊喜?
为什么选择回家置业?
一碗热干面、一份周黑鸭,是远在他乡的您心中家的味道,因为您懂这里,所以您应该更懂这个城市的价值所在。
作为中国新一线城市代表,武汉近年来的表现相当亮眼。在2018年全球城市经济竞争力排名中,武汉位列第40位,荣升第三梯队"世界城市";
2018年,经济日报联合华顿经济研究院发布《2018中国城市综合实力排行榜》,武汉市排位仅次于北上广深,成为"中国第五城"!

▲华顿经济研究院、经济日报联合发布
在"2018自然指数-科研城市"中,武汉位于全球第19位,全国第4位,超过了广州等中国一线城市;
作为国家中心城市和一带一路长江经济带支点城市,武汉以"复兴大武汉"为核心,相继提出"长江主轴"、"长江新城"、"辉煌七公里"等城市规划,打造世界亮点,将提升武汉国际影响力的目标落到实处。

▲城市航拍实景图
武汉城市影响力与日俱增,意味着武汉未来的巨大潜力,也佐证了武汉房产的投资价值。
自住优选/理想生活高地
众所周知, 汉口是武汉的经济、商业中心,可谓得汉口者,得武汉;
而江汉区是武汉中心城区GDP领头羊,武汉最核心的主城区,见证着武汉一平方公里之极;

在这里,可以轻松享受事业、生活、社交版图的合而为一,步行即享都心顶配资源。
建设大道金融街,集聚全省50%以上金融资源,300多家企业总部,华中金融之心,享有武汉华尔街之美誉;
百年中山公园,集合自然生态系统,在窗边即可感受公园的春夏秋冬之景;

▲中山公园实景图
国广商圈,华中片区最具影响力高奢商业,汇聚世界一线奢侈品,武汉高端圈层的出入之所;
花园道,金融街上最轻奢的美食休闲街区;万松园,武汉传统美食第一街;即能满足工作上的商务宴席,也能满足亲友间的日常小聚;
同济医院、协和医院,全国知名三甲医院,顶级的医疗资源,为您和家人的健康保驾护航;
地铁2号线、7号线,双地铁交汇,满足家人绿色出行;长江大道快速往返三镇,城市航站楼往返世界,立体交通网络,畅享塔尖人群出行模式;

在汉口核心贵脉,聚集了城市金融中心,都心公园、一线商圈,鼎级医疗的一平方公里之极上,有且仅有一座中海·万松九里。
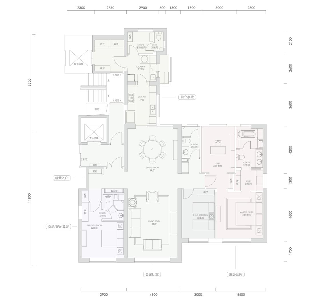
中海·万松九里,开创武汉先河,设计唯一230㎡户型,保证业主圈层的纯粹性。从智慧门禁,到南北双入户电梯,主宾通道和服务通道完全分开,享受极致私密不被打扰。精心打造四进大堂、三重安防、智能化系统等……中海·万松九里从细节处为塔尖圈层呈现安全私密、静赏繁华的生活方式,打造真正匹配塔尖圈层人物的舒居大宅。

在户型设计上,尊重每一个家庭成员的生活尺度。主卧与双亲房、儿童房保持距离,三代同堂却各有空间;家政间、洗衣房、厨房等服务区,与客、餐厅、卧室等生活区互不干扰;超50㎡ 客餐一体化,5A写字楼同款双层中空全落地玻璃,明净利落,视野无敌,繁华推窗可及。

置业中海万松九里 即享新春四重大礼
惊喜一:春节到访即享中海万松九里定制精美台历一份
惊喜二:推荐朋友来访可获精美礼包一份,后期成交可获1万元奖励(含税)
惊喜三:中海全国业主(不含武汉市项目)到访,即可获得精美礼包一份
惊喜四:中海全国业主自购,可赠送5000元物业管理费
中海·万松九里地址:江汉区万松园路217号(万松园路小学旁)
投资首选/城市发展高地
光谷发展三十年,成武汉城市发展核心引擎,以30%GDP占比,挺近"万亿俱乐部"。

循迹光谷三十年,从光谷广场、关山沿线、光谷中心城,东扩是光谷发展的重中之重,而葛店位于光谷向东扩张的第一站,承担着光谷产业升级、转移的重要角色。葛店已成为光谷东扩的价值最高地,不仅是鄂州的葛店,更是东湖高新的葛店。

中海·锦城国际,位于光谷东扩桥头堡之地,全面收获一座城的价值红利。
地铁出武汉,葛店第一站:武汉地铁11号线葛店段,由左岭站至葛店南站,与2号线延长线光谷火车站地铁站相连,通达武汉三镇。葛店段预计今年正式开工建设,明年建成。葛店段为第一个出武汉市的地铁线路,建成后将极大的加速葛店开发区与武汉市的融合发展。
*轨双**出行 坐享半小时都市生活圈:武黄/武鄂城铁全天12趟城际列车,16分钟直抵武汉火车站,30分钟可达武汉青山、徐东片区;地铁11号线,15分钟可达未来科技城,25分钟可达高新管委会,30分钟可达光谷同济医院。
奥特莱斯 武东医院 顶级配套环绕:意大利名品佛罗伦萨奥特莱斯小镇,全国仅6家,汇集了超200家欧美国际品牌以及亚洲知名品牌;湖北省中医院武东医院,国内首批获建设部批准的三级甲等医院,建成后将辐射周边40万人的就医需求,目前一期已建成。

"一核、二环、三轴、四厅、六园" 打造"三享"生活理想家园
尊享五重归家礼仪:礼仪入口、中轴景观、景观会客厅、宅间花园、礼仪门厅
乐享共融社区全龄生活:青年、儿童、父母、邻里、访客、宠物全龄化、全功能园林分区;近2万方区域目前最大自主活力商业街,集购物、餐饮、休闲娱乐、配套服务于一体,打造一站式邻里生活中心。
共享资源,创造和谐邻里生活:区域唯一共享社区,打造"超市、图书、商务、快递"五大共享功能,拓展生活功能空间,足不出园就能享受到各项服务
抢占光谷东 置业中海锦城国际 享新春四重大礼
一重到访礼:春节到访营销中心即享年货大礼包一份;到访光谷天地、光谷家乐福外展点即享新春福袋一份
二重返乡礼:凭返乡火车票,到访营销中心或外展点,即可换取精美礼品一份
三重归家礼:春节期间,葛店南站配专车接送,至营销中心领取年货大礼包后,免费送至葛店老城区
四重专享礼:中海全国业主到访售楼部,即可获赠专享大礼包一份;中海全国业主自购可赠送2000元物业管理费
营销中心地址:葛店开发区高新大道与发展大道交汇处,葛店招商展示中心旁
城市展厅地址:光谷天地沃尔玛东侧一楼
中海万松九里项目及中海锦城国际项目,在春节期间均不打烊,欢迎到访了解。