
“形体不应只是对自然的模仿,而是应该服从于心灵的力量,符合心灵运动的轨迹,一个门把手在未产生之前,抓握的动作就已经在那里了,一段阶梯未产生之前,人上升和下降的运动趋势就已经在那里了”。
——鲁道夫.斯坦纳


关于“居住”
当代居住生活方式正在发生翻天覆地的变化,而承载我们生活的容器——“家”也随着生活方式的改变而呈现出多姿多彩的形态。


本案设计在脱离表面装饰的束缚后,更加注重“居住”的本质,更加注重如何建立空间与“居住者”的链接,更加注重“身体”在空间中的感知,如同亚洲建筑大师杰弗里巴瓦在自宅中那样,没有任何形式的束缚,让身体在空间中自由游走。动线,尺度,光线,氛围带来与人的亲近感更让人感动。






本案业主的生活由:跑步,瑜伽,健身,户外,旅行,石头,古玩,旧物,茶与狗...组成。
什么样的家可以承载这样的五彩生活?
设计师希望赋予这个空间优雅,包容,简约,自由的气质,用空间美感承载其居住者丰富的生活姿态。




动线重组
在本案中设计师重组了空间动线,让回家进门后的第一个动作变得有探寻的期待与仪式感。设计师有意拉长进入的通道,让身体置身与一种包裹中,在前方隐约光线的引导下,不自觉的会望向二层的中空,眼前豁然开朗,而“桥”的点缀让回家变得生动有趣,随意散落墙角的是主人游走于世界的痕迹。




二层多功能区的开敞带来空间的再次延展,向下与门厅上空互望,向上与阳光天井链接,这里是动态的,是多变的,这里既可以是运动场所,也可演变为第二客房,更是兼顾了储存与收纳,多重功能的叠加让空间利用率大大加强,让居住空间的体验感变得层次分明。




光与生活
在改变原结构的楼梯行走方式后,得到一个有顶光的楼梯空间,光线自由进入到了负一层及夹层,每一层的中间部分被点亮,让原本长条无光的结构得到解放,围绕楼梯,串联起了负一层通道,一层客厅餐厅以及二层多功能房与三层主卧,几处空间互通共融,共享阳光的眷顾。









业主一家生活丰富多彩,马拉松是女主人的常态,目前已经完成75个全马的她可以在负一层的休闲区招待运动好友,举行分享会和酒会也十分合适。




而宽敞的空间除了摆放男女主人的一些旧物收藏外,更方便利用空间的高度做出夹层,上下分别留有采光顶窗,与中部楼梯天井呼应并为负一层的空间带来光线,这里是男女主人与朋友品茗与聚会的地方,空间蜿蜒有趣,随着每天阳光射入的角度而充满韵律感。



情感的安放
丰富多变的生活如何在家里自然的发生和生长,需要对空间凝练的归纳,不需要刻意去做诠释,反而是简单和平凡更能呈现出本质的灵魂。

光线是最普通的,平日我们不会感受到光线赋予我们的意义。但是在空间中,形状,光影,颜色,温度,内心感受,都和光线息息相关。

本案伴随着空间的层层递进形成的光影,勾勒出有型的物理空间中的第二层“空间”,这个“空间”随时都在,但也随时在变,无法固定,也不可捕捉。这也似乎印证着我们的生活,日子日复一日,看似平淡无奇,但只要认真对待,又时刻充满着惊喜和未知的风景。


屋子里大部分旧家具已经跟随业主10-20年,业主一家热情,动感与亲切念旧的个性在空间中得到延展。倚光而行,倚光而居,犹如身处自然,随时与自然拥抱,也如活在一屋子慢慢的回忆中,时光便与内心的宁静相连,情感有了安放之处。



空间必须被体验,场域的美感往往会消散在生活的琐碎中,而有趣的空间转换,让身体在其中游走,伴着或暗或亮的光。当一切放松下来,只需跟随内心对美的认知,对生活的感悟,让身体与内心都愉悦起来。
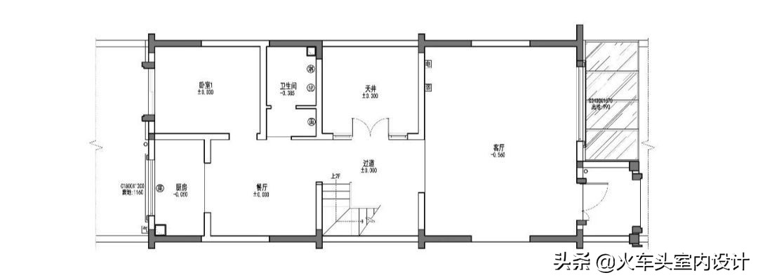
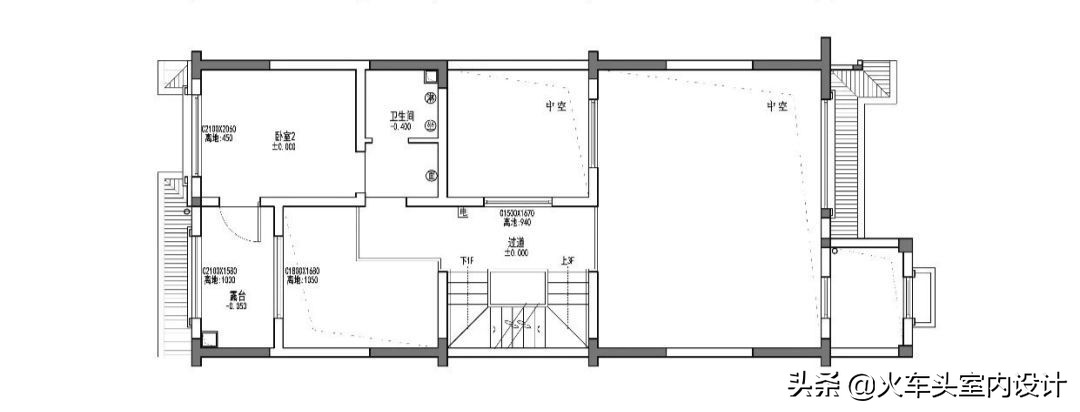
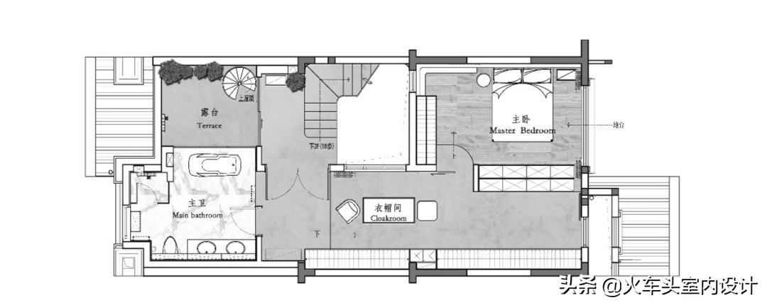
图纸呈现▼


△-1F改造前后平面图


△1F改造前后平面图


△2F改造前后平面图


△3F改造前后平面图
项目信息
项目地址:成都
面积:室内500㎡
设计单位:成都ACE谢辉室内设计服务机构
服务方式:设计服务,主材代购服务,软装呈现服务
设计团队:谢辉,王琦琅,胡梦娇
主要合作商家:时欧定制,朗臣暖通,金鹰艾格地板,博洛尼厨房,西顿照明,贝朗卫浴
摄影师:金选民/贺川