济南最受关注的商业项目有哪些?
唐冶片区的首创奥特莱斯、西客站宜家家居、麦德龙是其中三个。
本周,西客站麦德龙项目正式拿到了工程规划许可。媒体报道,这个项目已经动工了。唐冶的首创奥特莱斯也开始进行土地规划公示了,估计很快也会具备开工条件。
另外,本周还有多个项目拿到建设工程规划许可,包括:
春江郦城三期、万象新天B7地块、明湖白鹭郡四期、温泉花园、春江悦茗E地块、恒大御峰调整规划、黄金山水郡九期。
有3个项目进行建设工程规划批前公示,分别是:绿地CBD新地块、绿地国际城新地块、万科海晏门。
另有3个项目进行建设用地规划许可批前公示,分别是:万科龙湖城市之光、首创奥特莱斯、荣盛时代首府。
建设工程规划许可批后公示
一、西客站片区麦德龙
济南的麦德龙越来越近了。位置在经十路南侧,*党**杨路西侧。虽然刚刚进行建设工程规划许可,但媒体报道,它在去年底已经开工了。

二、万象新天B7地块
这是去年6月份推出的土地,天鸿以土地熟化人的身份底价摘得,楼面地价1100多元。新东站开通后,位置还算不错。

三、温泉花园
位置在青银高速以北,临港经济开发区内,距离机场5公里左右。
开发商是济南温泉空港置业,由济南华鑫房地产控股,后者是一家注册地位于济阳的自然人控股企业。

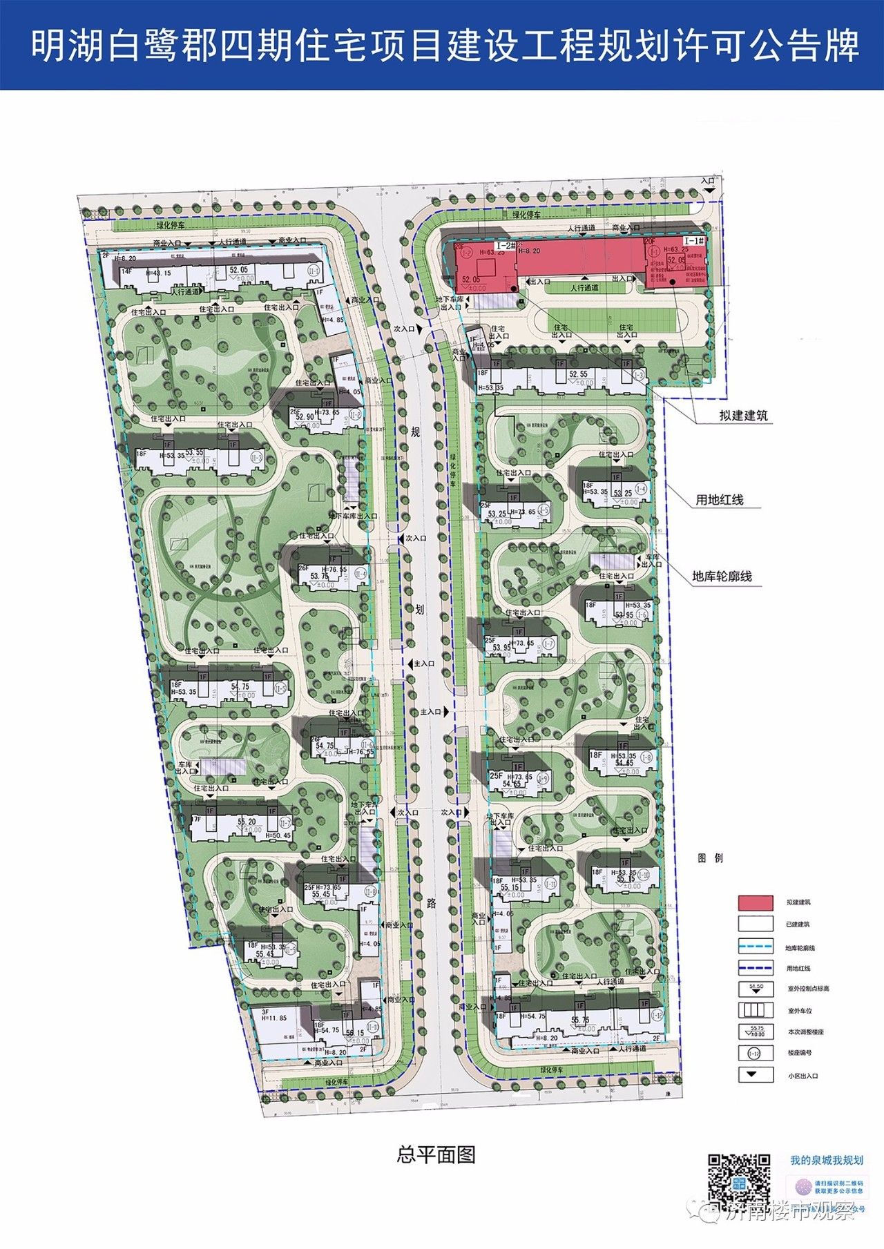
四、明湖白鹭郡四期
这是明湖白鹭郡1、2号楼规划调整公示。由原来4梯10户改为12户,位置在高新区沁园大街康虹路交叉口。
看着像一个公寓,实际是住宅哦。

五、春江悦茗E地块
位于唐冶片区,这是配套商业,住宅用地的工程规划许可也已经获批了。可能在今年年中入市。

六、春江郦城三期
龙湖春江郦城三期,在雪山片区,韩仓河以东、东绕城高速以西。三期产品靠近世纪大道。

七、恒大御峰调整
西客站片区恒大御峰,南侧的10号楼、11号楼降低高度了,分别从32层、31层,下调到了29层。

八、黄金山水郡九期
位于二环东路以东,旅游路以南。只有一栋楼,略显孤单。

九、绿城玉蘭花园B8地块
这个地块已经基本售完,工程规划许可也早已获批,只是刚刚公布。

建设工程规划许可批前公示
一、绿地CBD住宅B9地块
在规划CBD核心区内,绿地CBD又一块住宅用地来了,B9地块,只有2栋住宅,每栋18层。3.4的容积率。

二、绿地国际城B10地块
绿地国际城位于济南南大门,总体规划很宏大,只是周期会比较长。

三、万科海晏门项目
万科海晏门项目 ,在历山路以西,经一路北侧。规划4栋住宅。位置不错,地块有点小。

建设用地规划批后公示
本周无
建设用地规划批前公示
一、万科龙湖城市之光
万科的又一个新项目,在飞跃大道以北,鲍山花园以东。这是雪山片区飞跃大道以北第一个商品房项目。

二、首创奥特莱斯
在唐冶片区,世纪大道以北、唐冶东路以西。
唐冶的入住率越来越高,进驻大型商业的时机逐渐成熟了。

三、荣盛时代首府
荣盛在全福立交桥西北角新拿的土地开始走规划手续了。这是921土拍中荣盛拿的高价地,楼面地价7800多元,而且要配建较多安置房。加上安置房成本,估计楼面地价要到9000元左右。

四、中垠广场
中垠广场,在中银雅苑的北边,是商业商务产品,高度未定。

——全文完——
原创产品,请勿侵权,侵权必究
粉丝QQ群号:218447760;
关注本微信公众号,请长按下图,或搜索“济南楼市观察”。