

平面方案对空间的重要性不用我说大家都知道吧,不论是家装还是工装,平面方案的布置都是最基础也是最重要的一步。

工装的规模普遍要比家装大,类型也是多种多样,在平面方案的布置上也就更复杂,今天我们就来说说三个工装空间的平面布置。

文末附 工装空间平面布置方案合集
01
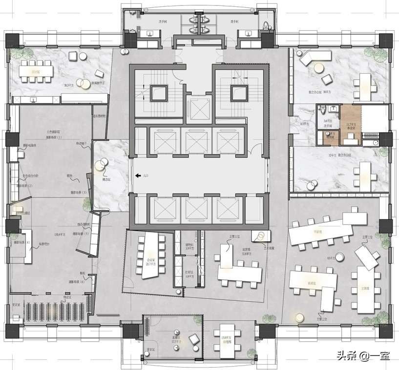
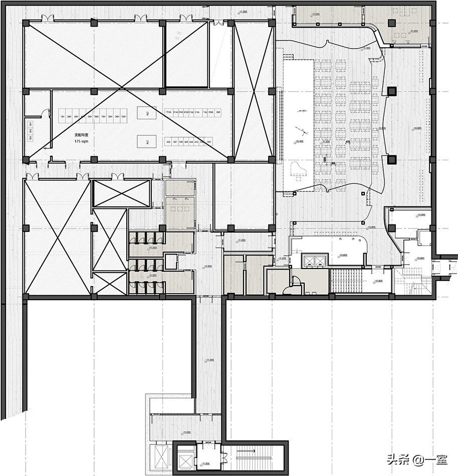
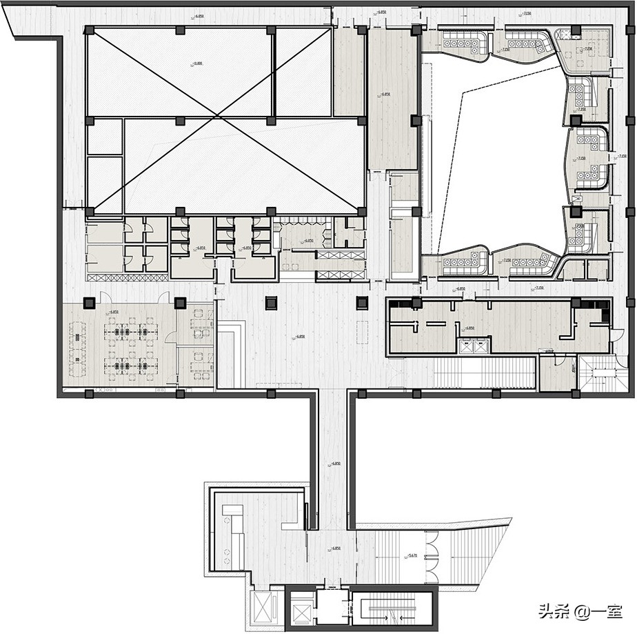
办公空间

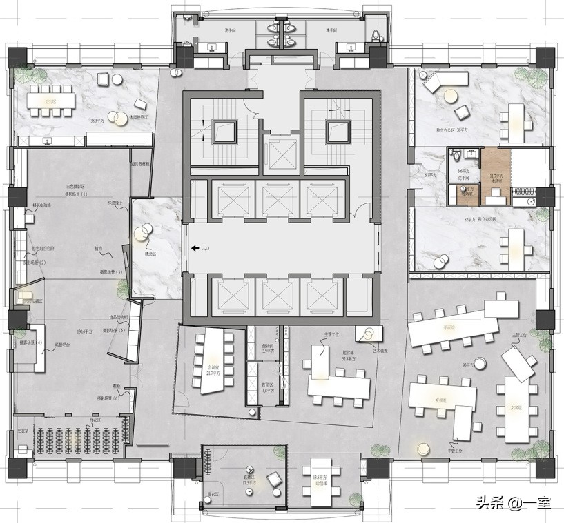
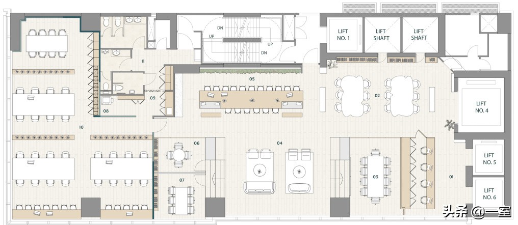
办公空间在平面上需要进行合理的功能区划分,不同的企业会有不同功能空间的需求。一般办公空间有前台接待、工作、会议以及独立办公室等基础功能区域,灵活多元的区域及其他辅助功能区根据性质,设置在合适的位置。


除了一些因建筑形状或是有特殊需求的办公空间,在办公空间的家具布置上,大多是按水平垂直方式布置的,要保证其设计安排符合人体工程学。


02
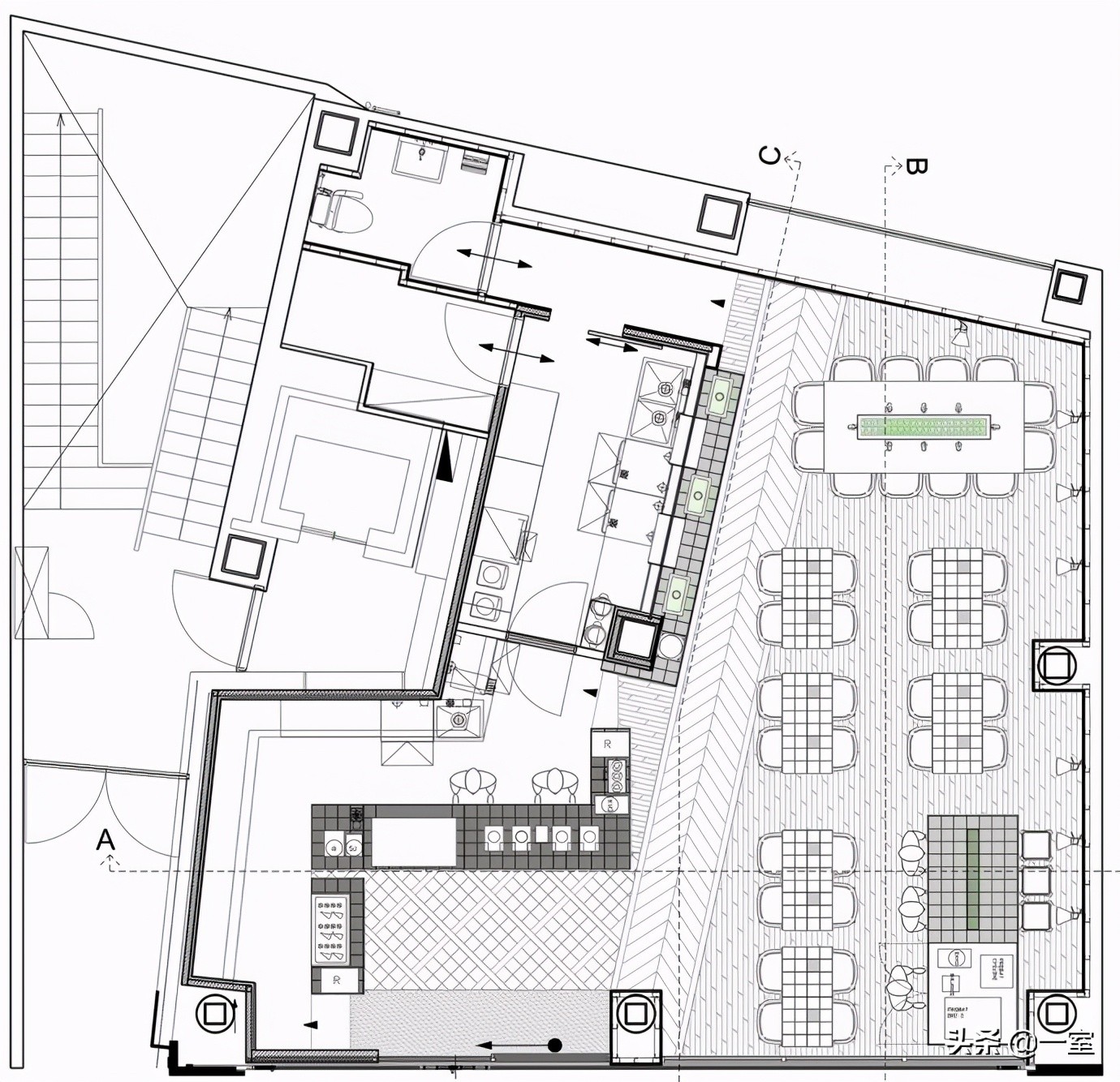
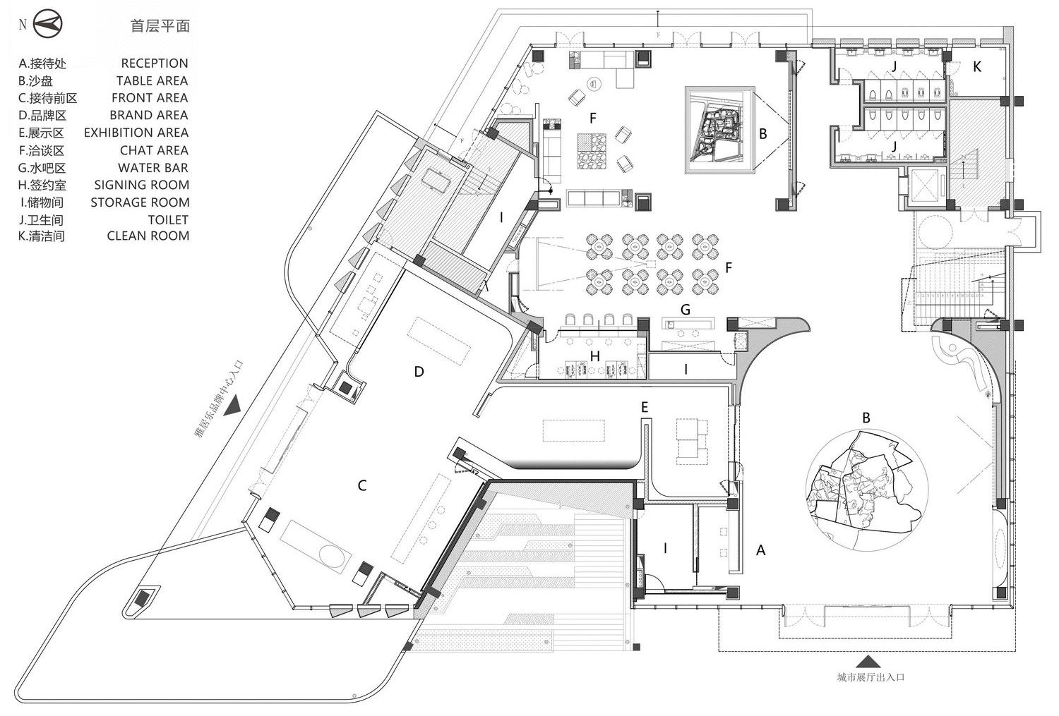
售楼处

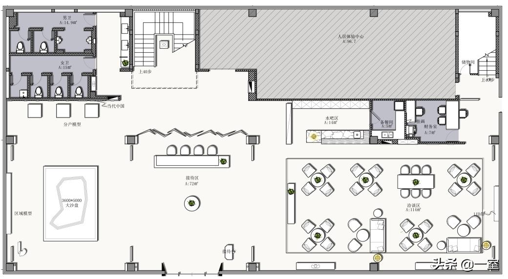
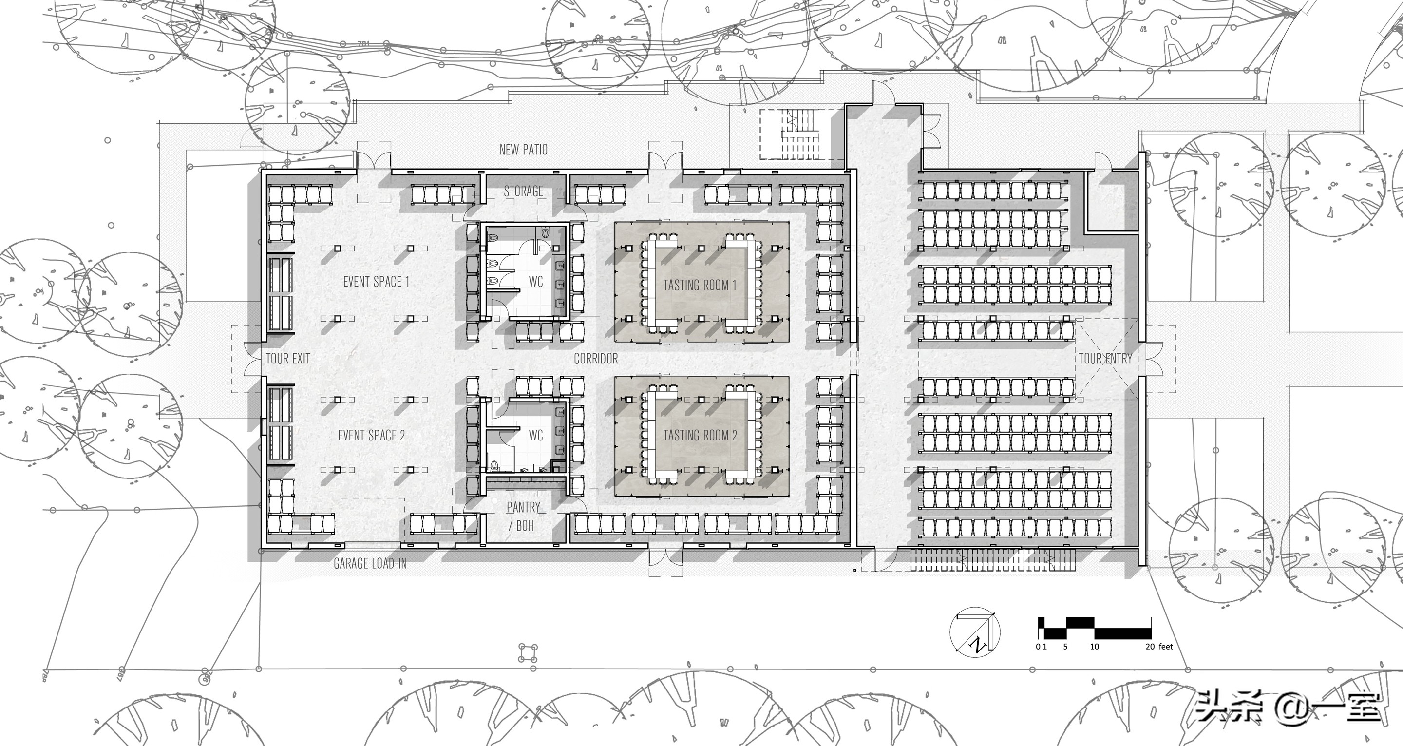
现在的售楼处可不同于以往了,不再一味追求金碧辉煌,而是更注重体验感。一般都有接待区、展示区、洽谈区、办公区等基本功能区,更加大型或高端的还会加上儿童活动区、休闲区、会所等辅助功能区。


整体空间布局合理,流线顺畅是非常必要的,将客户相关活动区域适当集中,让客户从进入到参观再到洽谈整个流程都是顺畅的。


03
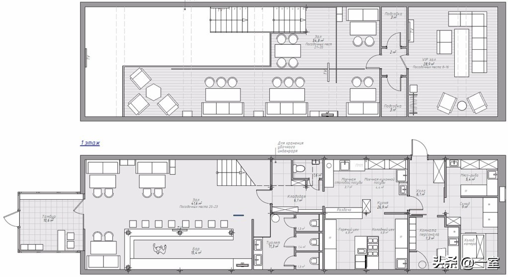
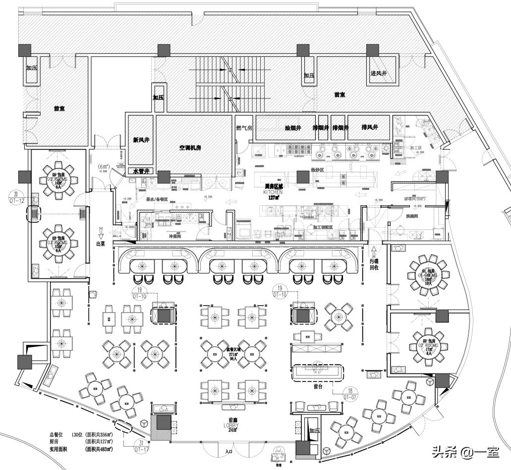
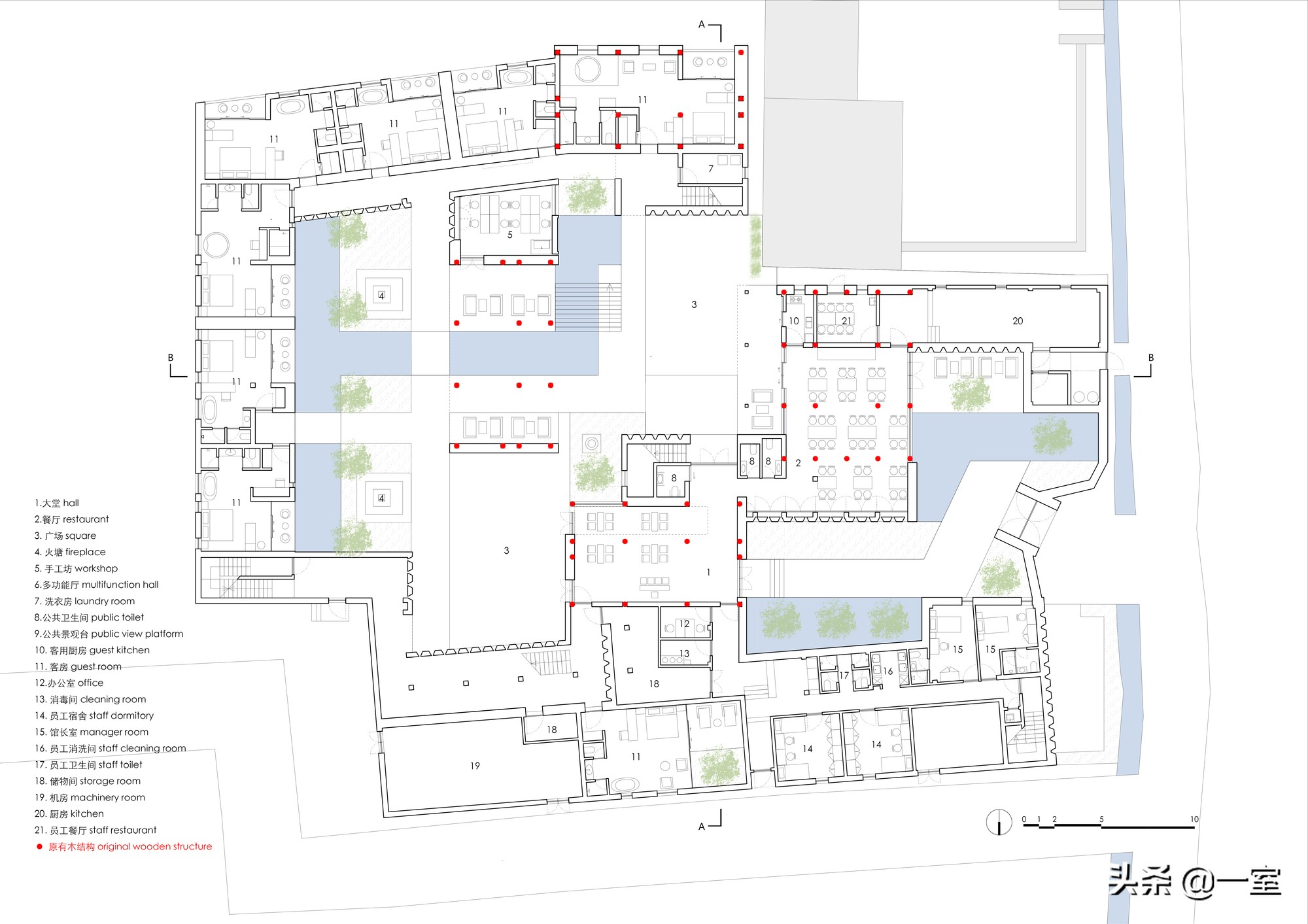
酒店

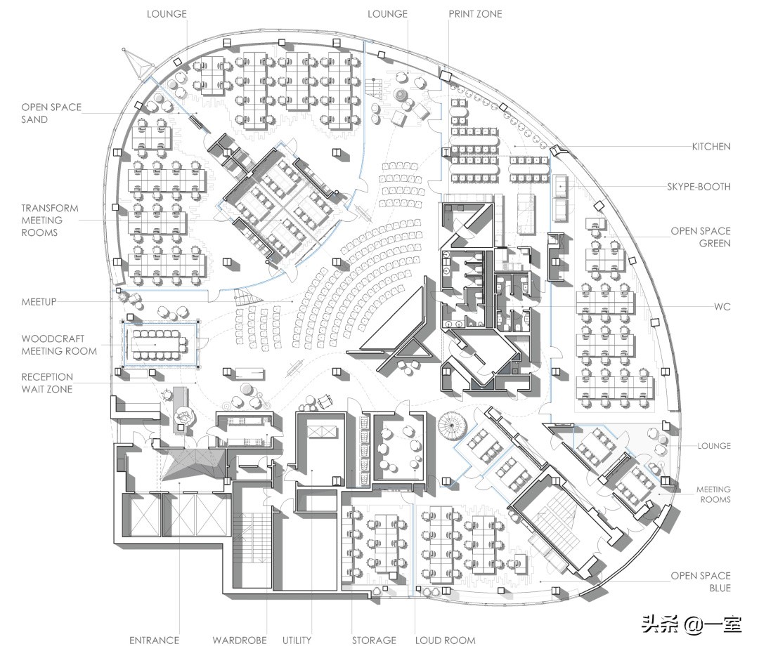
酒店一般规模较大,平面布局复杂且尤为重要。首先是功能区的划分以及功能区之间的联系,一般来说酒店有基本功能与延伸功能,基本功能比如大堂、接待、客房等,延伸功能比如餐厅、会议室等。


而与功能布局息息相关的就是流线了,酒店的流线主要是客人流线和服务流线,合理的功能流线设计是酒店成功运营的基础。客人流线主要涉及住宿、餐饮、休闲娱乐等,要清晰明了;服务流线主要涉及行政办公、后勤等,要保证服务工作高效快捷。

▲ 酒店整体功能分区及流线示意图


像酒店这类较大型的工装,在平面方案上需要考虑的也更多。这里小编为你准备了工装空间平面布置方案合集,包含9大工装空间的平面布置方案,带你了解不同空间的平面表达形式及功能空间划分,让你不再为不同工装空间的平面布置而发愁。
工装空间平面布置方案合集
资料总预览
【01】办公空间1000张
【02】餐厅1400张
【03】服装店255张
【04】会所230张
【05】酒店640张
【06】咖啡甜品店280张
【07】民宿客栈120张
【08】售楼处340张
【09】展厅80张
展示一:办公空间











展示二:餐厅








展示三:服装店




展示四:会所








展示五:酒店





展示六:咖啡甜品店





展示七:民宿客栈




展示八:售楼处






展示九:展厅




▲以上仅为部分展示
【免费领取】关注+转发 然后私信“素材”
版权声明:我们尊重原创。文字美图素材,版权属于原作者。部分文章推送时因种种原因未能与原作者联系上,若涉及版权问题,敬请原作者联系我们,立即处理。