#旅游##韩国##民宿##别墅设计##装修#
夏季即将渐褪,我们对理想生活的期待,好像只有在远方才能实现。其实无所谓远方与当下,重要的是出发!韩国济州岛民宿,让你尽情与海相拥~与日初的赤裸相见,与黄昏对酒当歌~理想的种种,或许是支撑我们相信时间美好的动力吧~
韩国济州岛民民宿项目设计为爱好旅游度假、喜欢海边运动或与家人朋友享受海边度假的人群量身定做,该项目借力其丰富的济州岛优越的地理位置,其天然海景资源加深思熟虑的设计和低调放纵的氛围使客人沉浸在极度的放松之中,并通过自然有机简约的材质加以诠释。

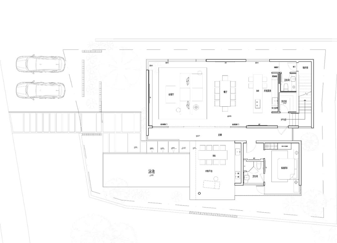
此建筑包括卧室、餐厅、厨房、餐厅和泳池、停车区以及丰富的户外活动区。总面积约252㎡。场地设置在一个深深的海边地块中,交织着丰富的植物和凉爽的水景,向田园诗般的沙滩延伸。
灵感来源 | 以水为源,
拥抱整片阳光和海岸
━
整体设计概念围绕运用一个强大的水元素,一层泳池、户外海景–贯穿整个建筑群,在建筑之间,将各种青翠的户外空间聚集在一起,令海湾别墅置于蓝色自然中。设计团队将设计根植于当地,以空间为纽带,让自然与生活结合再创作,匠心独运地成就设计作品与心灵的高度融合。

项目材料 | 温暖、质感、流畅
━
建筑以朴质的现代简约木条、石材为主要的外观材料,大面积的落地玻璃窗引入户外的海景,模糊室内外的界限。在别墅的前面,是富有节奏感的大理石台阶,向海边延伸,达至广阔的海滩。

开放、舒适的建筑外观
━
住宅最大的特色是凭借大量的落地窗,增加室内外的互动以及为室内提供足够的通风和采光。同时天花采用自然木质让人在踏入的那一刻,身心足够放松下来。外立面采用坚固且富有肌理质感的石材,外加发泡陶瓷,不仅防潮性能高,而且令整体建筑保持通透感,不经意间与不远处的风景同窗。


开放通透 | 客厅
━
在这个区域,采用了开放式的空间布局,使空间得到延伸,也满足了当下多元娱乐的生活方式。在内部,设计师利用大面积暖棕色调和多种极简风格的家具,营造出舒适惬意的休闲氛围。进入空间,温润的质感扑面而来;线条纯粹高级,肌理细密的木材令空间有着海风吹拂却无潮湿感受。浅色布艺沙发与大理石色调呼应,闪烁的光影,种种细节构成整个空间情境的重要一章。木与水在属性上天然相通,温润而自然,定下空间的氛围基调。


自然休闲 | 餐厅
━
设计师结合当地生活习惯,在空间内设开放式厨房,告别传统油烟厨卫,岛台式厨房用来做饭同时,也能与亲朋在此围聚把酒言欢。大理石在灯光的渲染下,呈现明亮自然的视觉感受。从开放的感官体验的角度来说,在书房中也许时间长了会禁锢人们的思维,这时候不妨搬来岛台上办公学习,让美食与优雅的力量提高办公效率。


私密明朗 | 卧室
━
空间纯粹直白,人就可以更多地感受空间的涌动、光的照拂,美妙意境直达内心。空间墙面多采用明亮感的材质,如大理石、浅色艺术涂漆墙面,搭配柔软亲肤软包、细腻优雅织物,听着海浪拍打,梦回床榻一隅。隐藏的电视屏、长虹玻璃、满足美观同时保证了私密性的需求...除此之外,自然光、灯光合理编排使用,为您带来视觉的享受和心灵的震撼,为空间润色。


现代优雅 | 卫浴间
━
从沐浴区到洗手台,灵巧的结构让功能互不干扰,合理地使用私密性强的长虹玻璃作为分界,达到干湿分离的目的。大理石花纹如翻开的卷轴,贯穿在整体空间中。点缀入墙式五金和圆形壁灯,散发出现代优雅的空间魅力。

超然物外 | 观景露台
━
露台承载了大家对生活的各种美好想象。设计团队将室内与室外空间通过大面通透玻璃连接,开阔的视野让这里成为了天然观景台,这一用心设计,大大提升您生活中的幸福感。在清晨的阳光下,在变幻的灯光中,亦或在繁星点点的陪伴下,与亲朋享受这难得的人生风景。


━
行走于现代美学意境,感受自然温度,历经时间沉淀,重塑人与时空之间的情感交流,将自然融于设计,将设计赋予生活,这便是我们本次项目的精神内蕴。
项目信息——
项目名称:韩国济州岛民宿
项目地点:济州岛
设计公司:HDGHOME
设计面积:252平方米
项目总监:柳承甫
主持设计:高涛 x 马一鸣 x 李佳

一层

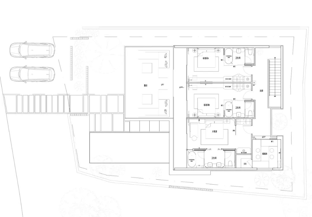
二层