阿基米德说,给我一个支点,我能撬动地球。
很多置业者跟房叔说,我首付40万,想买江北中心区四居的学区房。
这真的不是开玩笑吗?

正如近日,一家五口的W先生,因孩子准备读小学,计划在江北购买学区房,咨询房叔,是否有优质四房推荐,首付预算40万。
房叔简单整理了W先生的“一点点”需求:
地段好,发展要成熟
交通便利,最好家门口就有公交车
配套要全,学校、商场、公园不能少
要四房,一步到位
....
还有,妻子挑剔,不要旧楼!!!
如果一套四房正常按120平计算,那么满足W先生需求的新房单价大约1.1万/平。
楼市回暖,备案价屡屡创高
江北中心区还能重返1.1万/平?即使是当下受疫情影响,市场经济环境下行,答案很显然是不可能的。
近期,深圳市场明显回暖,不少二手业主加价出售,部分一手楼盘更是一房难求。例如4月5日,招商蛇口太子湾·湾玺迎来年后第三次开盘,历时三个半小时全部售罄。

丨销控表
而在惠州,自去年以来,惠城金山湖、江北,惠州南站片区,大亚湾西区等片区备案价都有明显的上涨。
其中金山湖、惠州南站片区、大亚湾西区更有一手房源突破2万/平,但相比这些片区,江北的配套更为成熟,突破2万/平或许只是时间问题。
近日,房叔在江北实踩某盘时,就有销售称首付需要70万以上,折算下来或许要2万/平。所以,当W先生提到仅有40万想买四房,还得是学区房,房叔觉得在江北几乎是不可能实现的。

丨江北中心区
中洲华昕府,唯一的选择
是的,首付40万买四房,几乎都离江北中心区较远,更不要说优质学区房了。
如此情况,房叔苦思冥想,最终决定整理出江北中心区新盘四房首付数据,为W先生选取最合适的项目,这种方法,建议各位置业者收好。
令人惊喜的是,江北中心区还真有上车的机会。近期,中洲华昕府推出了首付40万/平起的政策,而且能买四房。
江北中心区四房产品价格项目产品整体均价首付中洲华昕府108平1.6万/平约40万起
蓝光雍锦世家240平1.7万/平约122.4万嘉和盛世142平1.55万/平约66万鼎峰公园豪庭178平1.46万/平约78万出品:深惠房叔 统计时间:2020/4/16
更值得一提的是,中洲华昕府还是双学区房,划分至南坛小学鼎峰分校以及惠台学校,全龄教育名校就在家门口,助力孩子赢在起跑线上。这简直是为W先生量身定制的项目。
众所周知,南坛小学创建于1986年,早在1996年就被评为惠州市首批一级学校,1999年被评为“广东省绿色学校”,是惠州最好的小学之一。
此外,南坛小学鼎峰分校创办于2014年,配置36个标准班,结构合理,育人氛围浓郁,设施设备完善,堪称惠城区一流学校,将办成广东省规范化优质公立学校。

丨来源:惠州市南坛小学鼎峰分校
恰逢最好的买房窗口
相信很多人与W先生有同样的疑问,受大环境影响,现在是入手中洲华昕府的好时机吗?答案当然是。
其一,央妈放水,降息是大趋势。
昨日(4月15日)上午,中国央行开展了1年期MLF操作1000亿元,操作利率2.95%,此前为3.15%。
这意味着,今天一年期MLF下调20个基点,也意味着4月20日公布的LPR必定下调,尤其是给实体经济注资的一年期LPR,基本上也会下调20个基点。
无论是对于实体经济、股市,还是楼市都是利好。

其二,江北中心区房价倒挂明显。
目前该片区住宅在售均价低至1.46万/平,而一些豪宅项目二手挂牌均价已经高达2.3万/平,该片区一、二手房发生严重倒挂现象。
来看一组数据最为直观,次新房普遍二手价格约1.6万/平以上,而与中洲华昕府类似的豪宅如城市花园二手房均价约2.1万/平,华贸铂金府要到2.3万/平。
而目前作为双学区房的中洲华昕府一手价格约1.6万/平,且首付仅要40万起便能入手四房,这也意味着买到即是赚到。

丨数据来源:乐有家
其三,买学区房,总没错。
首先,有些楼盘交房都已经很长时间,但现在孩子却到了上小学的年龄,规划的学校到现在还是平地,所以投入使用的学校应该优先考虑。
此外,房叔整理了一些学区房二手挂牌价格,有二手学区房不到三年间飞涨约1.8万/平,有业主开价到3.2万/平。
楼盘2017年6月报价2020年4月报价湖景花园16036元/平31700元/平滨江苑7907元/平11344元/平丽日花园15016元/平19437元/平南湖花园12989元/平20995元/平巴黎广场15644元/平24875元/平教师村9673元/平16505元/平万象江山12232元/平30897元/平数据来源:安居客
此外,大部分优质学区房或许都像教师村一样比较旧,步梯,环境较差。
那么,3.2万/平真的贵吗?其实,站在父母的角度来看,教育的重要性再怎么强调都不过分。但在教育水平相近的学区里,父母自然会选房价较低、环境较好的学区房。
所以选择江北CBD豪宅中洲华昕府,不仅能让孩子就读优质学校,还能享受到优越的环境和配套,四房也只需要40万起便能上车,性价比极高。

丨中洲华昕府
绝版户型,卖一套少一套
到底,中洲华昕府是如何让购房者用首付40万起撬动四房的?
熟悉中洲的朋友或许知道,中洲在户型设计与空间有着独特的理解,项目周末将要加推的4栋户型就是建面约97/108/144平的三至四房。
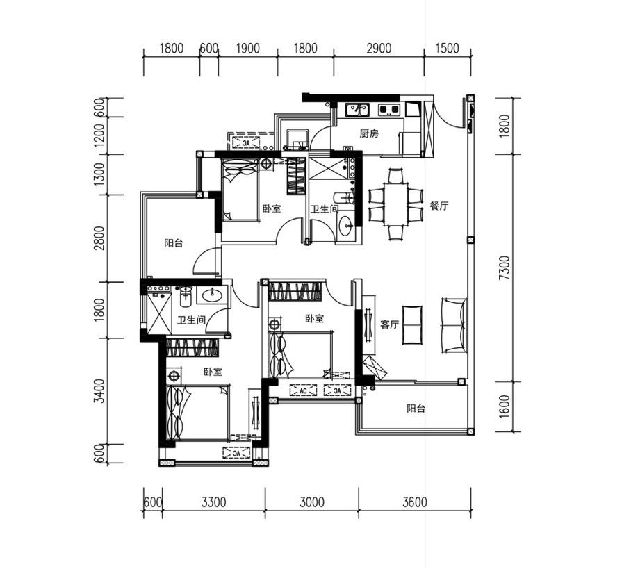
没错,这个难能可贵的宝藏就是建面约108平的户型,产品匠心独到,做到了四房二厅二卫,超高使用率,小户型享大面积。

丨108平户型图
100%开阔视野,收获最美风景
在这里,餐厅连接客厅,客厅连通阳台,连景入室,丝毫不用为采光和通风而烦恼。
此外,就算在餐厅,抬头便能望尽江北CBD一城繁华,视野无敌开阔。
试想,傍晚归来,躺在阳台的摇椅上休憩,清风拂面,晚霞当空,这是何等美妙的神仙生活。

丨样板房
南向飘窗,空间尺度尊享大气
两个卧室赠送南向飘窗,相当于房间增加了4平的魔法空间。
飘窗位放置收纳柜,打造阅读天地,甚至安置榻榻米,为自己留出清净的思考空间……同时还能饱览江北CBD繁华、东江美景,何乐而不为?

丨样板房
鬼斧神工,绝版空间
值得一提的是,该户型的生活阳台相当于多出来的小房间,可改造为婴儿房、书房、影音室、阳光游戏房等,满足家庭成员不同时期的成长之需。
这也是该户型能做到四房的奥秘所在。需要注意的是,自新政实施后,108平做四房已经属于绝版,后续无法复制,也不会再有。

丨样板房
你可能没有发现的是,中洲华昕府不仅建面约108平的户型是绝版,其建面约97平三房户型也是绝版。为何?
江北中心区在售房源基本以改善的大户型为主,而97平三房户型目前仅有中洲华昕府有少量货量推售,卖一套少一套,可以说是“手快有,手慢无”。
交通便利,商圈触手可及
中洲华昕府在上车价格、学区房、户型统统都满足了W先生的需求,交通、商圈、公园等配套自然也不会让W先生失望。
项目楼下便是新沥路北公交站,500米内的还有惠台学站、天怡广场站、云山派出所站等公交车站,公交市内出行便捷性让人省心。
如果需要到其他城市,项目距离莞惠轻轨云山站约1.8公里,驾车约7分钟即可到达。此外,距离惠州北站(建设中)直线距离约12公里,不管是要去深圳、东莞,甚至是赣州等地,通达性都极高。

有如此便捷的交通,什么顶级配套不是唾手可得?
毕竟,佳兆业中心商圈、华贸中心商圈、新湖公园、市民乐园、体育公园等都在项目半径约2.5公里范围以内。到新湖公园散步,到佳兆业中心购物,步行约15分钟都即可实现。
居住在中洲华昕府这座梦幻CBD豪宅中,生活的一切都能被妥善照顾。

是不是很心动?要知道在江北中心区,40万起撬动四房的机会也仅有这次机会了!
据悉,项目将在本周末推出4栋,其中就包含97/108平绝版户型。昨晚,W先生已经连夜赶往项目做诚意登记,你还在犹豫些什么?赶紧行动起来吧!