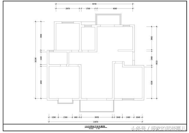
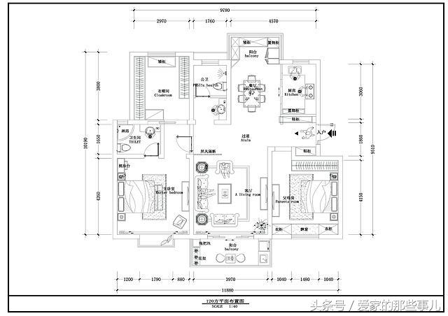
2016年5月开工!面积120平,三室两厅两卫,装修预算20万。清包。
本来想找装修公司,但由于看到小区里其他喊装修公司的装的不好,真正好的装修公司又比较贵,所以就打消了这个念头。决定自己装修了!于是在网上找了一个口碑不错的装修设计店,但是我觉得主要还是自己的想法,毕竟设计师没有见到实际的房子,也就是大概的出个图纸和效果图,跟实际施工还是相差很多的! 量房是亲爱的老公量的,他是做土建的。我们家基本没人有时间盯着,所以找的师傅都是当地口碑比较好的,都是晚上下班以后去检查一下,礼拜天再去跟师傅吹会儿牛!好在师傅人都很好,沟通也算顺利!文章写的比较琐碎,比较杂乱,请见谅!
一边装修一边更新!!!




开始拆墙建墙!








这里,失策,大面积用马赛克一点都不好看,干区瓷砖都贴完了,被我一气之下扒了,重来!!!











晚上拍的,不是很清晰。

全屋格力风管机



我家全屋抛釉砖,本来打算用仿古砖,后来看到一篇帖子以后就立马转成抛釉砖了。二来婆婆喜欢抛釉砖,也算尊重她老人家,毕竟是她出钱

勤劳且细心的老公


木工吊顶









木工打的柜子,板材用的千年舟杉木芯免漆板!


多乐士NP-25Y26

网购的群推荐的踢脚线,便宜又好




橱柜安装中

插座选的罗格朗仕典雅白,很好看,是几个品牌中无边框性价比最高的



橱柜基本算是装完了


地板也是网购的,这价格实在美好


衣柜,老公的手机拍的像素太渣了

定制的穿衣镜挂上了


这里建议鞋柜定制,门板和柜体色差太明显了



定制的2x2.2米的床,可以在上面任意翻滚了!


沙发背景,实木线条
我来更新了
9.20
百密一疏啊,千算万算忘了这茬,这边入户,我想装一盏钻石灯的,就是凯乔家爆款

就是介个灯,实物也很美啊,我想着一打开门就能看到一个美美的灯是有多开心,然并卵,然而,现实好残酷,不对,是我的错

现实情况 是这样滴。。。。。装了那个灯,左边的门就打不开,左边那扇是什么门呢,是一扇很大的门,门里面有电箱还有鞋柜。。。然后就只能这样了

这像素,,,,,一看就是我老公的手机
本来阳台我给他安置了一个29块的吸顶灯,就是这种

现在只能把钻石灯装在阳台了,可惜了,,,,便宜阳台了,,,
好吧,下面欣赏一下主卧和衣帽间之间的那盏灯

也是爆款,,,菠萝灯
次卧我想装罗马帘,这是我PS上去的,是不是毫无痕迹,罗马帘还挺贵的呢。

昨个订了张床,是这样滴,放在次卧,便宜到你们不敢想象!

对了,忘记晒下我美美的梳妆台了,早就做好了等着我领回家呢,定制的80公分的

卫生间,厨房,都用的最简洁的集成吊顶

我家阳台敞亮吧,除了2楼自带落地窗,我是四楼,落地窗自己改的,阳台长4.1米,没法装伸缩衣架了,有利有弊。


装的史密斯的燃气热水器,后来才知道燃气要买林内,电热要买史密斯,不过售后还可以,还帮我套了盒子防尘

美美哒灯带,本来不打算装灯带的,木工给我做了灯带槽就装一个吧

古玛家买的卫浴挂件,买了一套黑色,一套古铜色,很重,实在,报群号打85折


颜值控的我,买的拖把池,挺好看的呢

本屌丝买不起toto,科勒这些,只能在网上找一些性价比高的,还好经过群里大神鉴定了可以

镜前灯质感很棒


大神推荐的埃美柯角阀

抽拉水龙头,方便洗头

昨个晚上随手拍了几张,家里的光源总算亮啦!




入户右边那扇大门里面是这样的,为了抠点空间不容易啊!

次卧衣柜的拉手也装上了

我老公好二啊、、、
浴室柜到了,在车库,搬不动。。。

门。我的门。大忽悠啊。。。。说好送来的,又没送。。。。。



打
门终于装好了,,,终于。。。。。然而还在等护墙板。。。。
家具各种催发货 只能先打扫一间出来放我的加大床,真的好大。



米拉家的饰品很棒。戳链接。。

附上娃娃美照一张。


粗略的搞了一遍卫生,美美哒,有点样子了!
11.3好久没更新了,最近双十一忙的不行











这个记录装修过程的帖子,到底就要划上句号了。在之后,软装等全部弄好以后,我还会另外写一篇毕业贴,有兴趣的请持续关注!谢谢!
请关注爱家那些事儿微信公众号:pyds66001596
我们每天都会在微信上推送更多户主家装分享趣闻和经验~!让你从以后家装在无忧