复古、优雅、朋克、浪漫、轻奢....大众给予了美式太多的修饰。然而,家本是无拘无束的场合,不论何种修饰,都该透露着温馨的本质。《人生一串》中说,没了烟火气,人生就是一段孤独的旅行。历经时代的洗礼,美式早就褪去了繁杂的外壳,成为这都市中不羁的存在。 ---关于美式

作品信息
户型:复式住宅
面积:240㎡
设计风格:美式
设计团队:飞墨设计组
施工单位:合肥飞墨设计
项目地址:合肥 - 滨湖蓝鼎假日金榈园
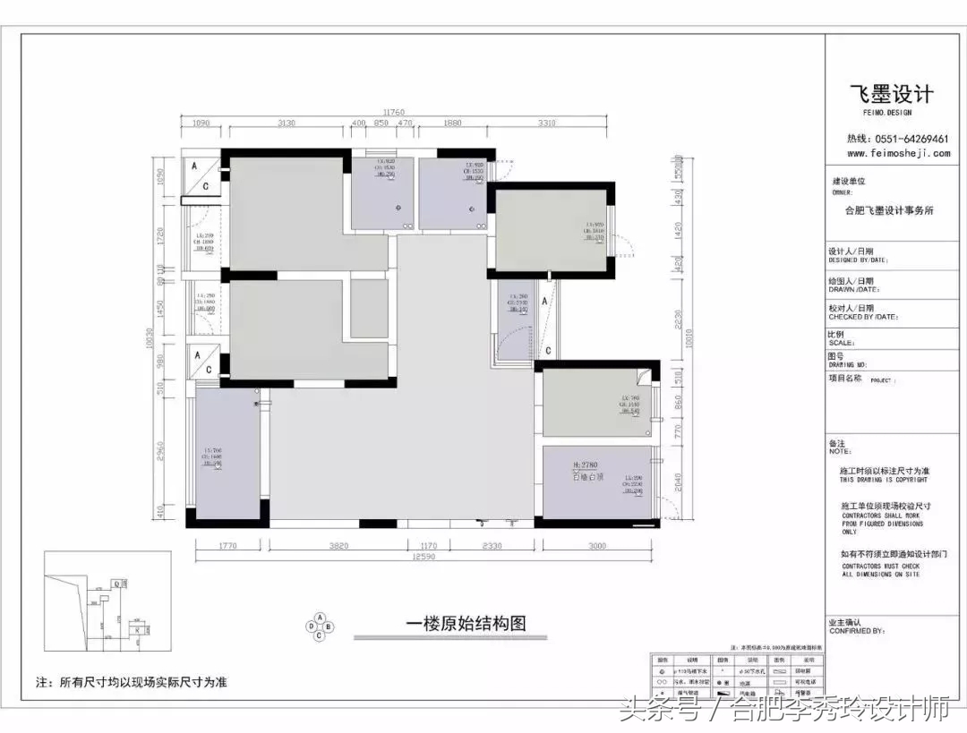
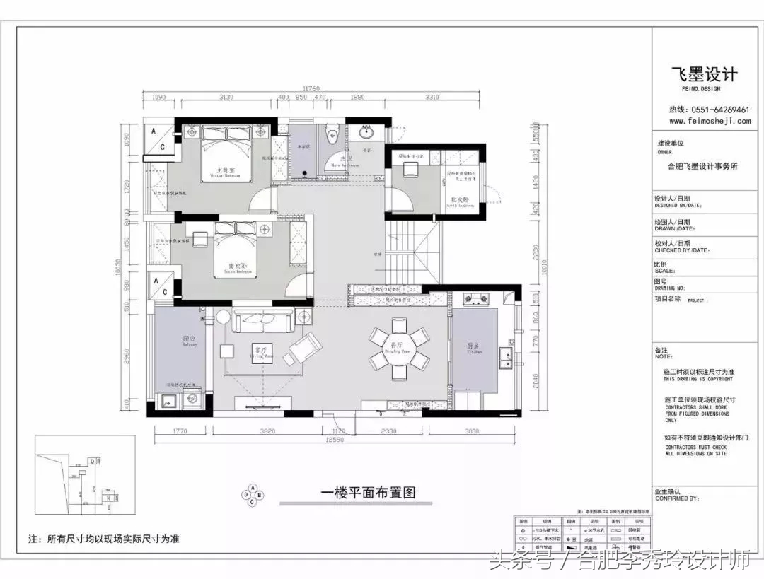
一层设计对比图


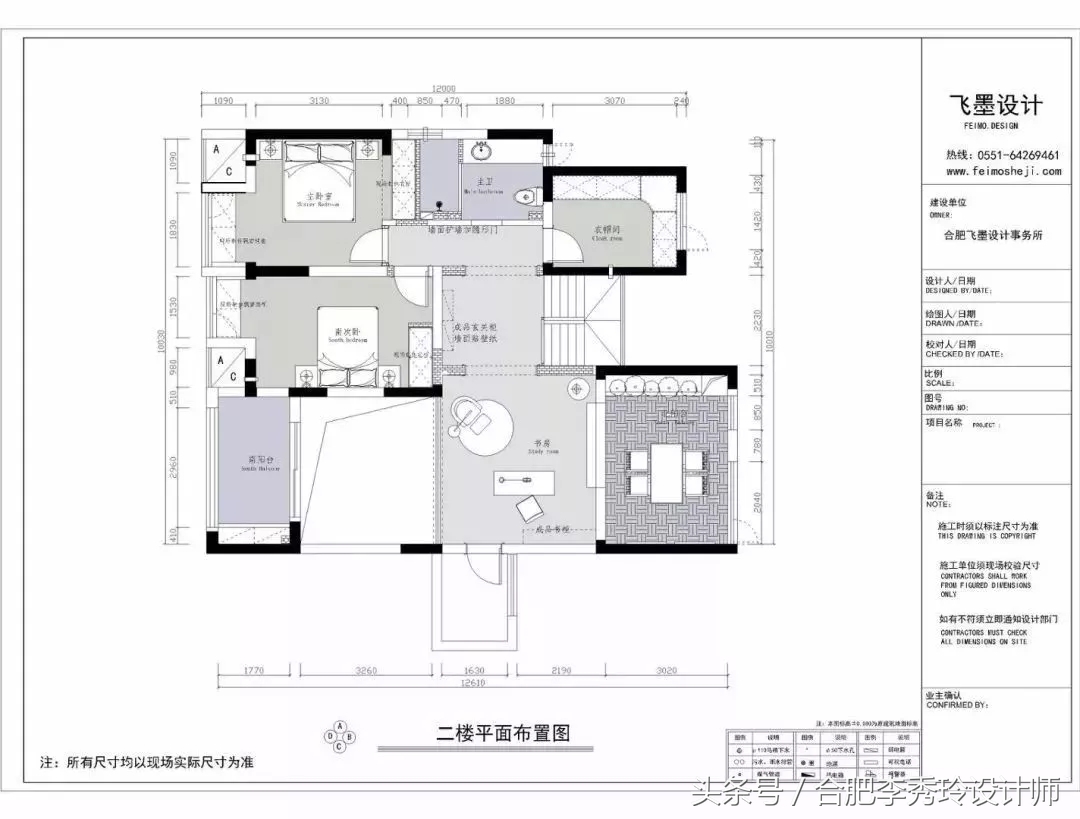
二层设计对比图


设计说明
业主首次来咨询的时候,就表示喜欢美式,但不是传统美式的浓郁也不是现代美式的轻奢,所以,在设计中,我们用了大量的素色来表达雅的效果。效果图出来后,业主夫妇表示“嗯,这个颜色看着挺舒服的,没想到是这样的”。然后,跟设计师确定地板、门.....一场关于240㎡的复式住宅,愉快的合作开始了。
设计解析
人生很多时候需要做减法,舍即是得。原始户型上下有4个卫生间,且空间不大有些鸡肋。征得业主同意,设计师把一楼的卫生间改成了干湿分离,多出的面积扩入主卧做成衣帽间,既能满足如厕需求,又增加了储物空间。二楼也同样留下一个卫生间,其他的面积扩入卧室,同时用了隐形门增强整体性。
>>>客厅<<<

设计无非是把理想变为现实,考虑到设计感和舒适性,设计师把一楼的餐厨区打通,与客厅形成一个大的空间,动线合理。整个空间以素雅为主,低调的如同这夏日里的晚风,走近它,感知它,触觉,嗅觉,味觉,一同迸发出美妙的凉爽的基调。

客餐厅的地板把两个空间悄悄的相互融合,隔而不断。简约的家具布置给空间更多的留白,不用刻意的渲染,只一束花,一碗盏,一吊灯,就足以撩动生活的情趣。
>>>餐厅<<<

餐边柜与玄关柜对称而立,收纳自不必说。设计师特意选了沉静的蓝色,散发着优雅且神秘的气息。似一汪清澈的溪水,缓缓流动,倾泻、荡漾在柴米油盐之中,暧昧的连空气中都满是幸福。
>>>走廊<<<

原始楼梯洞口在过道中间,不仅不好利用,而且影响颜值。考虑封住,改造后的楼梯位置靠边重开且依墙做了收纳柜,这样整个过道就宽敞了许多,并利用空间二楼多出一间楼梯厅,最大限度的发挥了空间面积。
>>>楼梯厅<<<

软装方案




