近期,泉州多个纯新盘将入市
均位于核心地段
一起了解一下
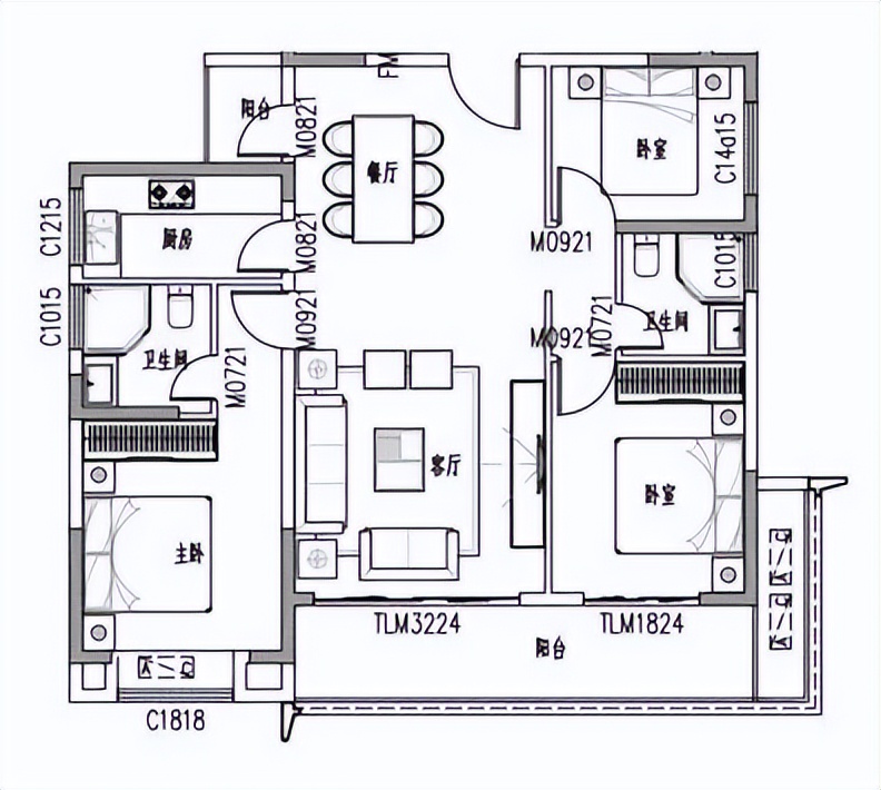
鲤城江南-城建江南里
2022年6月6日,泉州一建以总价77900万元竞得茂诚皇江御景南侧的鲤2022-2号地块,住宅最高销售均价14752元/㎡(毛坯)。

如今,项目已入市,案名为城建·江南里。相关规划及户型图曝光。
项目择址江南新区繁荣片区,金鲤大桥旁。总用地面积约60亩,总建筑面积约14.6万㎡,规划 6栋24-26F高层住宅 ,1栋商业综合体及9班幼儿园。

户型为110-140㎡的三至四房:






泉州西湖旁—西湖小院
2022年10月3日,经公开竞价,在京东网拍平台,泉州丰泽区新华北路东侧,城西环路北侧一宗国有出让商住用地使用权以2181.4万元成功出让。

11月8日,根据福建省投资项目在线审批监管平台公示的信息,项目已完成备案,拟备案名 盛品·西湖小院 ,项目(法人)单位为泉州市盛品房地产开发有限公司。

据悉,该地块东至泉州中旅运输车队、西至中国银行泉州分行宿舍区、南至泉州商业运输公司宿舍楼、北至三远花园,土地面积约2253.7㎡,现状为空地,土地用途为批发零售用地(可分割)、住宅用地。
根据《关于下达2005-18号拍卖地块规划设计条件的通知》(泉规[2005]719号),所建地上建筑物规划最大建筑高度19米(建筑檐口高度),建筑层数6层以下,容积率1.4以下,建筑密度30%以下,绿地率25%以上,建筑间距1:1H,停车场(库)按小汽车0.75车位/户和自行车2车位/户以上标准配置。
项目位于泉州市丰泽区新华北路东侧,城西环路北侧,周边有开元盛世广场、西湖公园、泉州开元寺、培元中学、泉州市通政中心小学等生活配套服务设施。

晋江SM旁—晋兴御峯
2021年11月30日,福建晋兴集团有限公司以11900万元竞得晋江市P2021-30号地块,地块建成后毛坯商品住宅最高销售均价13772元/㎡。
11月9日,根据福建省投资项目在线审批监管平台公示的信息,项目已完成备案,拟备案名 晋兴御峯 ,项目(法人)单位为福建晋兴集团有限公司。

根据出让信息,该地块建成后业主子女可就读的幼儿园是周边普惠性幼儿园,小学是福埔小学,中学是罗山中学。(招生政策如有变化应以晋江市人民政府当年的招生文件为准)
地块位于晋江市罗山街道福埔社区,周边有SM广场、晋江市医院新院、福埔小学、罗山中学等,生活、教育配套设施齐全。

晋江滨江商务区-滨江华庭
2022年8月19日,国企南水投资以2.6亿元加竞配建4500㎡摘得滨江商务区P2022-33号地块,住宅最高销售均价14853元/㎡(毛坯)。
2022年9月,项目完成备案,案名为 南水滨江华庭 。
据悉,南水滨江华庭占地面积约25亩,总建约5.73万㎡,整个小区规划三排23-26层高层住宅;每排楼栋设置两梯两户、两梯三户;户型面积段为99-132㎡三至五房。


项目位于滨江商务区总部大楼斜对面,对面即是滨江商务区中央公园,地段佳且交通便捷,周边配套相对成熟完善。
根据出让文件,该项目被纳入晋江第五实验小学(江浦校区)、晋江一中晋东校区(规划中)招生范围(招生政策如有变化应以晋江市人民政府当年的招生文件为准),有学区又有江景的房源,有一定的价值属性。

晋江高铁-城建梧垵新苑
10月14日,晋江市房屋建设开发有限公司以总价10400万元+竞代购总价300万元竞得位于高铁板块P2019-48号地块,毛坯限价14517元/㎡。
近日,泉州公共资源交易信息网发布《 城建·梧垵新苑 勘察设计招标》。
项目总用地面积约62998㎡,用地性质为居住用地、商业服务业用地,总建筑面积约257912㎡,其中:地上建筑面积约188848㎡,地下建筑面积约69064㎡,1.0<容积率<3.01,10%<建筑密度<35%,绿地率≥25%,共24幢楼,地上13-17层,地下一层。

高铁新区核心区位于永和镇坂头村,以高铁站(即泉州南站)为辐射原点的区域,面积约10平方公里,将建设成为一个宜居、宜业、宜商的“城市中心拓展区、产城融合示范区”。
据悉,福厦高铁泉州境内泉港站、新泉州东站、泉州南站3个站目前也正全力推进项目建设,计划今年12月底达到静态验收条件。
