
© Dirk Weiblen
想象一下:在灯红酒绿的香港闹市,熙攘的蜿蜒窄巷商铺,餐馆和流动商贩在街头林立。相似的老式闸门、堆满商品的货架,乍一看,这家店似乎很不起眼。但下一眼,二层的穿孔不锈钢立面、LED灯……出人意料的极简设计挑拨起路人的好奇心,邀其入内。

淘宝、Ins、朋友圈……如今,当商品和生活方式都搬到线上,消费者追求便利的同时,也需要新的体验。如何在电商之外,打造出让现代消费者喜欢的实体店,对于品牌而言是一个全新的挑战。2017年,AIM为线上美妆销售平台HARMAY话梅在上海安福路设计了第一家仓储风格实体店。如今,AIM继续为HARMAY香港线下零售市场助力,在设计的视觉呈现上又有了新的创新和突破。

以老香港的药铺为设计蓝本,AIM创造了这座两层楼的新零售空间,让消费者重新找回购物的乐趣,同时,还能体验到数字时代的便利。

一楼,店铺的两面墙上布置琳琅栉比的不锈钢储物柜,让人联想到药房里的抓药柜,为空间赋予秩序。如今,当购物只需要滑动鼠标、轻轻点击时,对于线下店而言,重要的是让消费者发掘探索的乐趣。


在HARMAY香港店,所有的商品都隐藏在这些铝制抽屉柜里,强调寻宝的乐趣。其实顾客仍可以瞥到每个柜子底部的品类标识,发现线索。



通往二楼的楼梯保留了毛坯的状态。粗粝、原始的感官冲击,让顾客重新体验传统购物的感觉。


二楼,储物柜式货架从天花板悬垂而下,侧面的镜面式不锈钢板反射出周围环境,仿佛在隐藏自己的存在。储物货架的橡胶内垫和开架的陈列空间,又拉近了顾客与商品的距离,让好商品触手可及。


在寸土寸金的香港,这间两层楼的店铺面积不大,但裸露的砖墙、水泥天花和水磨石地板,都给人以意料之外的宽敞错觉。盥洗室的设计也呼应了这一点。一整面玻璃拉门,引人窥探其用途。但两面尺寸适宜的挂帘,又打消了对于私密性的疑虑。

线上购物的好处在于:你可以直奔主题,想买什么,只需要动动手指就行。HARMAY香港线下店弥补了线上购物缺失的环节:它激发了用户的好奇心、重新找到购物的“参与感”。当路人抱着对实体店的成见走进店里,他会发现,自己已经闯入了一个想象之外、理想之中的世界。

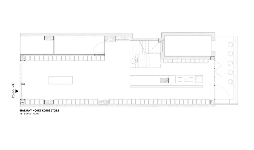
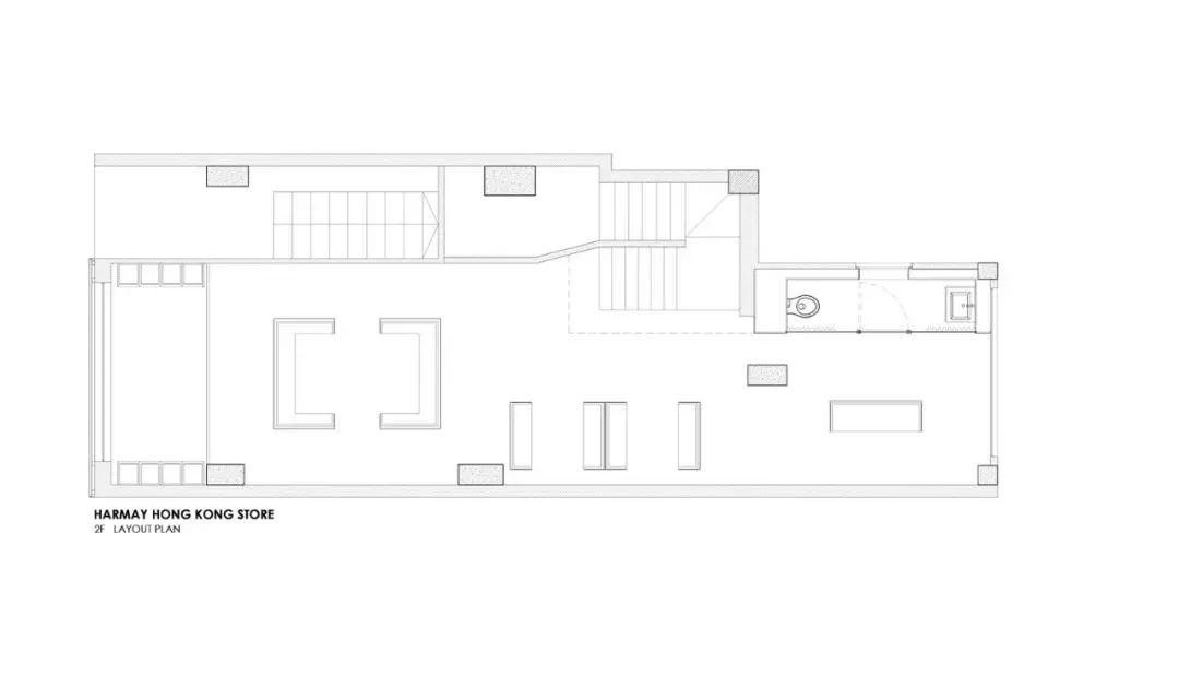
项目图纸

首层平面图

二层平面图
项目信息
地址:上环歌赋街11号,香港
建筑面积:141.0 平方米
项目年份:2019
摄影师:Dirk Weiblen