
01.
重庆居民楼改造“月河对影“
朝天门
老人们讲,两江交汇之处是一个城市的丹田所在,对于这样一个无论盖什么都会引来非议的地方,最稳健的决策就是不做任何建设。然而,重庆却做出了更具勇气的选择,在长江、嘉陵江交汇的朝天门,个性张扬的“来福士”正在拔地而起,傲视两江。

远眺
而在它的对岸,无数的江景民宿已打扮妥当,争相在这“朝天扬帆”的盛景前合影:不同的装修与摄影风格,不变的是窗外“来福士”那魔幻的施工现场,它们都是“Airbnb”上最夺目的定妆照。

二号房楼梯

远眺
小区
本项目位于一处临江小区的25楼,面向朝天门有极佳的观赏角度。从外部观看,小区的房间有局部跃层的处理,形成通高六米的开放式阳台,物业对建筑外立面并不加以控制,这给了住户很大的发挥空间。

二号房楼梯

楼梯休息平台

二号房楼梯二楼视角

二号房楼梯

二号房楼梯二楼视角
这里既有设计师的奇思妙想,也有住户的随心所欲:有的封闭起阳台,有的添置了夹层,有的改造成花园... 不同的结构形式、材料与色彩争奇斗艳,整个小区似乎重现了柯布西耶的阿尔及尔市OBUS规划,是一个可容纳多样化表达和二次设计的基础结构。

一号客房榻榻米

三号客房
改造
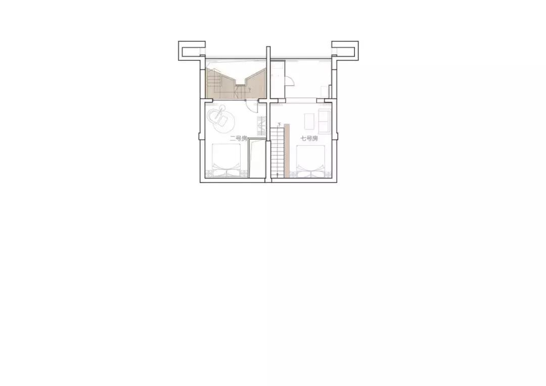
小区的户型是一梯两户共233平方米,每户三室两厅两卫,其中客厅部分通高六米。业主买下整个25层用于民宿经营,综合考虑现有的管线位置和房间面积,将除餐厅外的部分改造为七间客房(其中一间为跃层)。
得益于江景房的先天优势,这里既有面宽12米的转角落地窗,也有通高六米的临江阳台,景观资源可以用“横轴”和“竖轴”的方式被引入,设计师需要做的仅是拆除多余的隔墙来充分发挥这一优势。

改造后一层平面图

改造后二层平面图
为了提升民宿的入户体验,设计师选择仅保留一个入户门,将两间餐厅打通形成一个近40平米的公区,置入吧台和早餐厅的功能,并在公区正中间设置一条长桌,以避免入户后漫无目的的流线,引导住客绕场一周后再进入自己的房间,以期能够在尺寸间创造出节奏上的变化。

酒吧及餐厅

酒吧及餐厅
网红
身处城市小区,决定了它很难具备精品民宿的品质;而坐拥两江盛景,又使其不甘沦为商务快捷酒店,用“网红民宿”来描述其定位十分恰当。
网红经济是一个值得探讨的现象,居伊·德波曾在《景观社会》中预测了一种十分悲观的生存状态:整个社会生活显示为巨大的幻象的堆积,少数人演出,多数人被动观看,依靠幻象而活,无论是商品还是明星都是被多数人观看的幻象。

二号房浴室

五号房

五号房浴室
但现在看来,这一趋势似乎发生了扭转,随着微信微博、直播平台的兴起,普通人的平凡生活开始变成观看对象,于是人人都可以是表演者,大家互相观看。
而面对一个个网红打卡点,人们先是被戏剧化的真实所吸引,但随后就会去进行切身体验,并拿起手机化身为新的表演者,被动观看的生活状态也随之瓦解,一种新的生活常态被建立。