
提起法国,首先想到的便是浪漫。塞纳河畔悠闲漫步,香榭丽舍林荫处徘徊低吟,埃菲尔铁塔下的绚丽夜景......萌芽于此处的法式风格也因此成为优雅、高端、时尚的代名词。
本案屋主品位高雅,对于法式风格情有独钟。希望家化身浪漫的心灵栖居之地。
于我们而言,比起创造处处被“法式风格”束缚的家,我们更愿意结合屋主的生活习惯,将居住元素与法式精髓相融合。一个以生活场景构建的浪漫空间也由此诞生。
华发外滩首府
[ 项目简介
地址 |Address:华发外滩首府
面积 |Square Meters:187㎡
风格 |Style:现代法式
户型 |Apartment:四室两厅一厨两卫
设计 |Designer:诗享家设计
施工 | Construction:诗享家施工
软装 |Soft Decor:诗享家宅配 咨询 | 诗享家咨询预约入口
[ 客户需求
屋主对于浪漫有着独到的理解,把家装成浪漫之都,除了要赋予空间精致之外,还希望家与自己的生活有更多的契合之处。喜欢逛街购物,所以希望能有一个大大的衣帽间,对睡眠质量有很高的要求,所以希望卧室能够大气舒适,营造适睡氛围。
[ 功能设计


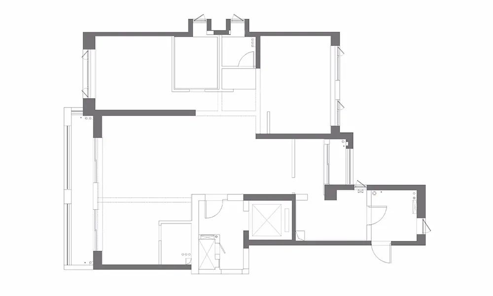
↔️ 左右滑动查看原始平面图
// 重组空间,居室更加契合生活
- 两房合为一房,并与阳台打通,设计出更加宽敞大气的用餐空间;
- 阳台一分为二,部分纳入客厅,拓展公共区域面积,居室更显朗阔;
- 女儿房利用部分阳台区域做开门,增加女儿房使用面积,让孩子拥有更自在的生活空间;
- 主卧为大套房设计,内套卫生间干湿分离,并将干区外置,方便生活。同时干区也成为卧室端景,空间更添趣味;
// 巧设储物柜,悄然提升生活品质
- 电梯厅布置储物柜,增加收纳空间,同时也避免灰尘入户,减少打扫负担;
- 为了满足屋主大衣帽间的需求,借用次卧部分空间,主卧设计出步入式衣帽间,屋主的衣服、包包从此有了归处;
[ 视觉设计

· 客厅主照明选择一盏轻奢吊灯,开灯之后,灯光晕染下,玻璃流光闪耀,黄铜点缀其间,悄然营造复古轻奢氛围,浪漫优雅,不言自明。顶部环绕轨道灯和灯带,让客厅光线层次更为丰富,围合的轨道和灯带线条自成一景,成为顶部装饰。


· 阳台一分为二,部分纳入客厅,拓展公共区域面积,空间尽显大气通透。电视背景墙融入弧形元素,顺势延伸至阳台,弱化锐角,同时引导视线,金箔材质独有的斑驳纹理,让空间更具想象力。
· 客卫从女儿房独立出来,并借用女儿房部分空间,做干湿分离设计。从客厅看客卫,艺术砖与氛围灯烘托下,干区与电视背景墙融为一体,带来更为丰富的视觉体验。

· 围合形态沙发作为空间视觉枢纽,暗含屋主对于温馨家庭氛围的期待。高级灰的选色,低调不失优雅,沉淀出空间的稳重气质。一盏花瓣状落地灯,俯身照亮沙发一角,闲坐此处看书品茶,再没有背光烦恼。
· 圆形分层小几小巧雅致,与上方吊灯隐隐呼应。黄铜材质经阳台引入自然光的晕染,复古精致之外,更有别样韵味。


· 黑白纹理地砖隐形划分客餐厅,两个空间彼此独立又有贯通之感。精致小几放上艺术摆件,搭配上方吊灯,入户收获火树银花,空间文艺气质复兴。

· 隔墙全部打通,餐厅视线开敞无阻,用餐不觉压抑。餐岛一体化的设计,节省空间,同时也赋予餐厅更多功能。岛台可做饭后闲饮小酌处,也可做西厨处理冷食。
· 餐厅整体用色大气不失优雅,水泥灰与奶油白分饰两侧墙面,搭配墙上的PU线条,空间尽显大气优雅。阳台引入自然光为餐厅镀上温柔滤镜,温柔与庄重,浪漫与简约,在此处完美融合。


· 餐桌选用白色大理石花纹岩板,与黑色的岛台形成对照,二者一体式设计,又彼此保持独立。丝绒、复古绿、复古黄铜材质,打造出贵族气息满溢的餐椅。墙面开凿壁龛,做分层置物架,可做餐边柜,搭载灯光系统,放上心爱的收藏,成为优雅一景。另一侧做出悬空置物柜,上方以金属搭出通透展示架,收纳上墙,又不会造成空间拥堵。

· 主卧背景墙以PU线条和法式角花装饰,隐藏灯带见光不见灯,光线烘托下,墙面愈发精致浪漫。复古吊灯以其繁复造型装点空间,法式氛围顺手拈来。

· 主卫空间重新规划,做便捷干湿分离设计,并把干区外置于主卧入门处,大气台盆外围以金属材质包裹,做出弧形,上方两面复古轻奢镜子,主卫干区化身空间端景,卧室趣味横生。
[ 我们的荣誉
- 2020广州设计周 40UNDER40中国(湖北)设计杰出青年奖
- 2020HDA她设计奖年度最佳设计
- 2020幸福家设计大赛全国亚军
- 2020Hi-Design室内设计大赛公寓组金奖、优秀奖
- 2019金堂奖年度优秀住宅公寓设计、年度优秀办公室空间设计
- 2019年第三届华中区室内设计新势力奖
- 2019年好好住营造家奖年度最佳大户型设计Top20
- 2018年度达人设计总评榜全国百强
- 2018Hi-Design第六届室内设计大赛优秀奖
- 2018年度得意家专业设计引领品牌
- 2018广州设计周 40UNDER40中国(湖北)设计杰出青年奖
- 2017中国空间设计大赛“鹏鼎奖”十佳豪宅空间奖、十佳公寓空间奖
- 2016国际空间设计大奖“艾特奖” 最佳陈设艺术设计奖
- 2016Hi-Design第四届室内设计大赛优秀奖
- 2016湖北室内设计总评榜住宅空间优秀奖
- 2016第七届“筑巢奖”优秀作品
- 2016得意生活最受网友欢迎装饰/设计品牌
- 2015年青年文化创意奖
- 2012-2013中国国际建筑装饰及设计博览会年度50强商业规划及空间设计师
- 2011广州设计周金堂奖
- 2011“亨特窗饰杯”首届软装100设计盛典优秀作品奖
- 2008年武汉十大设计师优秀奖
- 2007威能杯设计师大赛武汉赛区银奖
- 发表的设计作品也被国内各大杂志采用,如《瑞丽家居》、《精品家居》、《南方周刊》、《BOSS》、《顶尖样板房》、《装潢世界》、《名石、名师、名宅》等,武汉的《第1生活》、《幸福》、《易网湖北》《腾讯大楚网》等等