室内设计平面布置图户型 (户型优化教程)

「户型优化」如何才能做好室内设计的平面方案?

壹品曹(top_interiordesign)

本文版权为原作者所有,内容仅用于学习交流

室内设计师在工作中往往是“ 越老越吃香 ”,越是年龄大,经验丰富就越容易取得客户的信赖,但是有些从业多年的设计师拿到一个原始户型仍不知该从何下手,想要做出最出色的方案以吸引客户,可是又无法 打破常规

有关 户型方案 ,设计师们都有哪些苦恼呢?

1 做出来的都太常规有创意的做不出

2 过分追求表象忽视空间实用性

3 方正户型设计无亮点异形方案又毫无头绪

4 总想快速签单但又不能准确捕捉客户需求点

平面布置图 是设计方案的第一步,也是最重要的一步。

通常一张好的平面图不需要做得如何的炫酷和多么的有创意,而是要考虑得全面和系统,让每一个空间都符合人性化设计,每一个空间的使用度都发挥到极致,不浪费也不拥挤。

如何才能做好室内设计平面方案?

一.方案落地性及动线布局

方案的落地性,一个不能落地的方案,除了能感动自己之外也许只能放进垃圾桶了。不做飞机稿。不做无用功看一个方案是好是坏要从总体分析,看整个方案的 动线 是否均匀 ,有没有过于拥挤和浪费。

室内设计平面优化小户型,户型优化教程

最好的动线是路径包围功能,路径灵活多变空间层次分明。动线不能与功能冲突 ,必须符合人体的一些常规使用尺寸。

室内设计平面优化小户型,户型优化教程

室内设计平面优化小户型,户型优化教程

二.立面造型

看平面图如果拉伸出成立体三维空间的时候。有没有美感 ,审美的考虑很重要因为立面造型更多是拿来观赏的。满足人性心理的一些需求。

也就是精神需求,很少承载一些功能上的需求立面的造型不宜过于繁杂 ,也不能过于单调。这正是考验设计师功力的地方。

室内设计平面优化小户型,户型优化教程

三.家具的摆法

首先第一步是看家具摆的是否合理所谓合理就是大小和朝向是否合理动线是否合理有句话叫设计做到老 ,家具不见得能摆好。

室内设计平面优化小户型,户型优化教程

摆家具也是一种艺术同一个空间家具的摆法不同也代表生活方式的不同。

室内设计平面优化小户型,户型优化教程

四.空间布局、空间风水、空间分配

看空间的各个属性是否明确 ,一个空间与另一小空间是否有独立性 ,有没有有互动。空间与空间该私密就得私密,该放开就放开,该暧昧就得暧昧 。需要注意的是方案中是否存在风水禁忌门冲 、穿膛各种会产生煞气的空间造型和结构,等等 。特别是卫生间的位置与门开启的方向尤为重要。

每个独立空间的大小在整个平面图中所分配的空间大小是否均匀比如不能出现厨房比餐厅大 ,餐厅又比客厅大这种不合理的分配

室内设计平面优化小户型,户型优化教程

五.整体

回到整体, 看看空间是否全面统一,元素风格形式造型和谐统一等等...平面概念方案有没有考虑到与立面的一些呼应 ,立面是否又与顶面有所呼应 ,顶面和地面有没有一些关联每个空间都应该具备他独有的气质,根据居住者的生活需求不同, 空间营造的氛围也就不相同这需要设计师去反复推敲和研究。

室内设计平面优化小户型,户型优化教程

经过上面的分析是否对平面方案有了初步的理解呢?

我们再学习下 壹品曹 老师的平面方案

室内设计平面优化小户型,户型优化教程

室内设计平面优化小户型,户型优化教程

室内设计平面优化小户型,户型优化教程

室内设计平面优化小户型,户型优化教程

室内设计平面优化小户型,户型优化教程

室内设计平面优化小户型,户型优化教程

室内设计平面优化小户型,户型优化教程

室内设计平面优化小户型,户型优化教程

室内设计平面优化小户型,户型优化教程

室内设计平面优化小户型,户型优化教程

户型优化 de “九个高颜值细节”

室内设计平面优化小户型,户型优化教程

【颜值一手法】

贴墙收纳展示柜

室内设计平面优化小户型,户型优化教程

室内设计平面优化小户型,户型优化教程

室内设计平面优化小户型,户型优化教程

室内设计平面优化小户型,户型优化教程

【颜值二手法】

社交厨房

室内设计平面优化小户型,户型优化教程

室内设计平面优化小户型,户型优化教程

室内设计平面优化小户型,户型优化教程

【颜值三手法】

艺术过廊

让通道散发艺术气息

室内设计平面优化小户型,户型优化教程

室内设计平面优化小户型,户型优化教程

【颜值四手法】

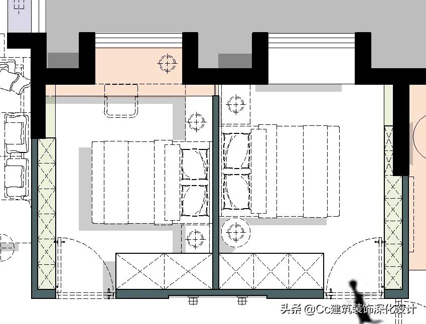
卧室门洞中间走

室内设计平面优化小户型,户型优化教程

室内设计平面优化小户型,户型优化教程

室内设计平面优化小户型,户型优化教程

【颜值五手法】

飘窗多功能挖掘

室内设计平面优化小户型,户型优化教程

室内设计平面优化小户型,户型优化教程

室内设计平面优化小户型,户型优化教程

室内设计平面优化小户型,户型优化教程

室内设计平面优化小户型,户型优化教程

【颜值六手法】

半私密空间突破视线

室内设计平面优化小户型,户型优化教程

室内设计平面优化小户型,户型优化教程

【颜值七手法】

功能叠加

室内设计平面优化小户型,户型优化教程

室内设计平面优化小户型,户型优化教程

室内设计平面优化小户型,户型优化教程

【颜值八手法】

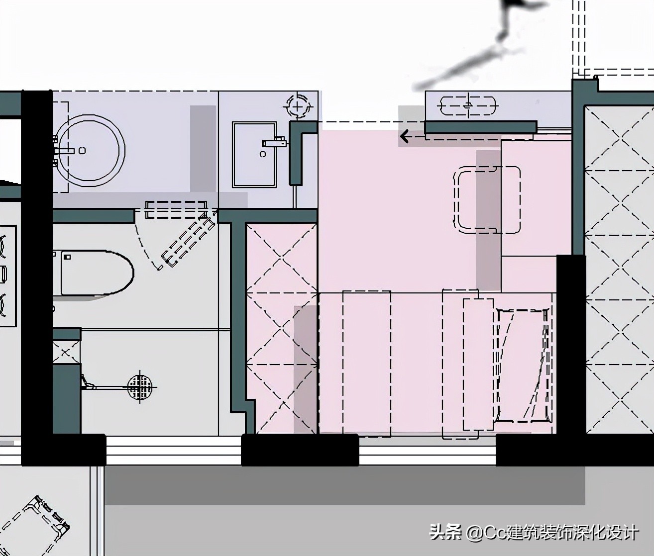
主卧套房释放卫生间局部视线

室内设计平面优化小户型,户型优化教程

室内设计平面优化小户型,户型优化教程

室内设计平面优化小户型,户型优化教程

室内设计平面优化小户型,户型优化教程

【颜值九手法】

休闲阳台+绿植层板+茶桌

室内设计平面优化小户型,户型优化教程

室内设计平面优化小户型,户型优化教程

壹品曹(top_interiordesign)

本文版权为原作者所有,内容仅用于学习交流