河北47万欧式别墅车库方便,还有茶室活动房,这才是农村的养老房

河北47万欧式别墅车库方便,还有茶室活动房,这才是农村的养老房
项目名称:河北廊坊吴家欧式别墅
项目地点:河北省廊坊市
建筑面积:315㎡
基地面积:748㎡
建筑尺寸:16m×12m
占地面积:164㎡
图纸编号:620
户型概况:4室2厅3卫1厨1活动1健身1书房1茶室
建筑结构:砖混结构
主创建筑师:钱帅
土建参考造价:47万元(不包含室内装修费用)
项目概况

河北47万欧式别墅车库方便,还有茶室活动房,这才是农村的养老房
△总平面示意图
项目位于河北,建筑占地160平米左右,基地西侧为村内主路,南侧小路与主路相连,东、北两侧是邻居家住宅。该项目的基地面积比较大,邻居住宅对业主家的建筑不会造成遮挡和影响。
图纸设计

河北47万欧式别墅车库方便,还有茶室活动房,这才是农村的养老房
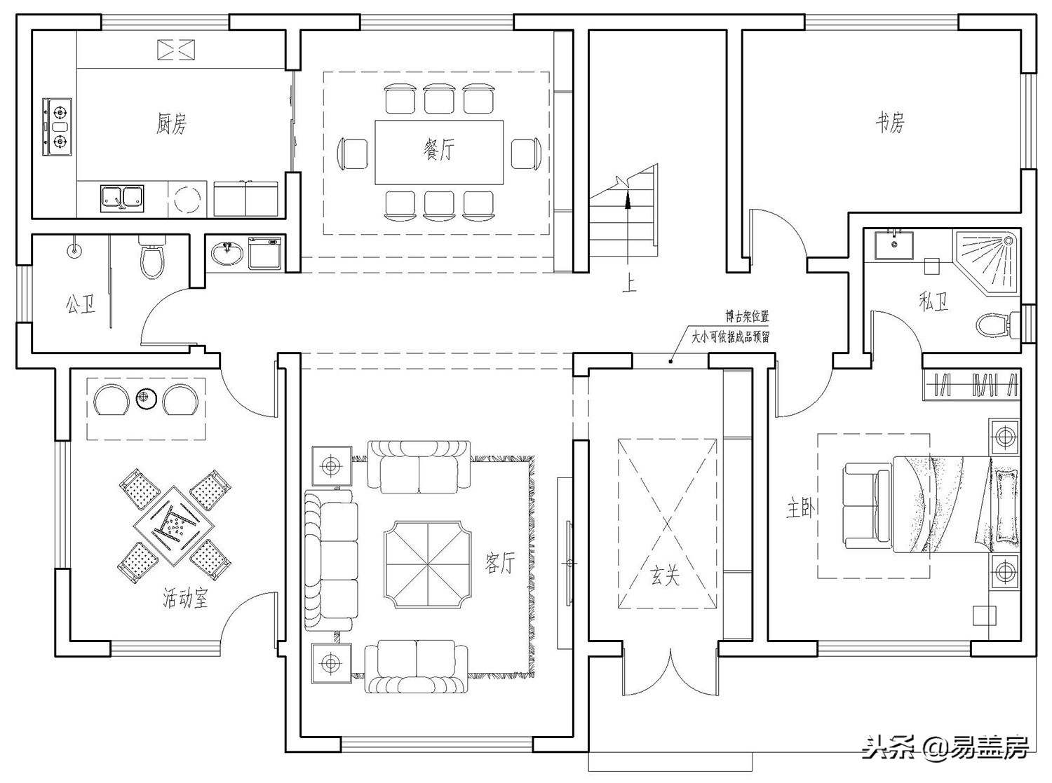
△一层平面图
一层入户设计有玄关,后方楼梯间与玄关通过博古架进行空间上的沟通。主卧位于东南角,带有独立卫生间。书房位于北侧,通过两侧采光为室内提供工作学习的优质环境。客厅与餐厅正对,南北通透的设计让室内更加开阔通透。厨房和公卫位于西北角,活动室与室外直接连通,室外极大的休息平台是对活动室的一种补充。

河北47万欧式别墅车库方便,还有茶室活动房,这才是农村的养老房
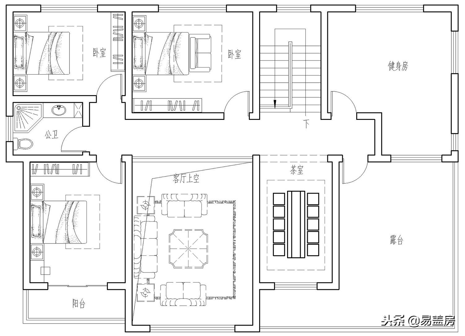
△二层平面图
二层主要提供起居功能,客厅为通高空间,卧室位于西侧和北侧,茶室正对楼梯间,选用开放式设计。一层主卧位置对应二层露台,露台由两个矩形拼接,使得健身房具有南侧采光。
造型设计

河北47万欧式别墅车库方便,还有茶室活动房,这才是农村的养老房
△鸟瞰图
建筑整体为欧式风格,配色上选用素雅的浅白色作为主色,搭配局部文化石形成干净和优雅的整体效果。文化石仅在客厅位置使用,强调室内重点,也让颜色上有所转换。

河北47万欧式别墅车库方便,还有茶室活动房,这才是农村的养老房
△鸟瞰图
边框选用深色处理,与素雅主色对比,让门窗位置得到自然突出,深色边框配上经典欧式线脚给人精致美感。客厅处用精美花纹分隔空间,一气呵成的处理手法让视觉上十分大气磅礴。

河北47万欧式别墅车库方便,还有茶室活动房,这才是农村的养老房
△鸟瞰图
入户雨棚作为二层阳台配合主卧空间形成露台,增加露台面积的同时让露台处有空间变化,进退得宜的设计给予室内更多光照,也赋予建筑极好的观景视角和室外活动空间。

河北47万欧式别墅车库方便,还有茶室活动房,这才是农村的养老房
△西南侧效果图

河北47万欧式别墅车库方便,还有茶室活动房,这才是农村的养老房
△南侧效果图
院门位于东南角,车库正对院门,选用欧式柱式和木廊架结合的形式, 与建筑风格呼应的同时又具有慵懒田园感。

河北47万欧式别墅车库方便,还有茶室活动房,这才是农村的养老房
△庭院效果图
西北侧庭院作为烧烤区,带有躺椅和室外桌椅,此处空间与活动室相连木质平台较近,出入室内十分方便。西南侧为水景围成的相对封闭的室外空间,明确的界线划分营造出十分适合密友闲谈的氛围。

河北47万欧式别墅车库方便,还有茶室活动房,这才是农村的养老房
△东立面图

河北47万欧式别墅车库方便,还有茶室活动房,这才是农村的养老房
△西立面图

河北47万欧式别墅车库方便,还有茶室活动房,这才是农村的养老房
△南立面图

河北47万欧式别墅车库方便,还有茶室活动房,这才是农村的养老房
△北立面图
1、您作为设计师,在这个项目中有遇到什么困难么?
答:业主对建筑设计有较深的了解,因此业主和我们很快建立起信任。在最初设计沟通时,针对项目构思我们和业主达成共识。业主提供的参考资料让我们对设计把控更为精准,因此项目没有遇到困难,进行得十分顺利。
2、这个项目的设计周期是多久呢?
答:21天左右。
3、您是否有自己非常满意的设计建议未被业主接受的情况?您觉得是什么原因呢?
答:业主对我们十分信任,因为业主自身对建筑设计有一定了解,因此我们提出的建议业主在思考后都接纳了,整个项目没有未被接受的设计建议。
4、您认为业主对最终方案最满意的地方是哪里?
答:平面方案展现的功能十分齐全,兼顾了业主日常需求和家人的兴趣爱好。室内和室外的联系也是平面设计的一个亮点,露台位置异形处理让整体层次感十分丰富。因此业主对平面方案最为满意。